504 13th Avenue NW Kasson, MN 55944
For Sale MLS# 6767613
5 beds 3 baths 2,827 sq ft Single Family
Details for 504 13th Avenue NW
MLS# 6767613
Description for 504 13th Avenue NW, Kasson, MN, 55944
Welcome Home to Kasson Living!Fall in love with this inviting 5-bedroom, 3-bath home perfectly tucked into a mature Kasson neighborhood, just steps from city parks, the community pool, scenic walking/bike trails, shopping, and schools. From the moment you walk in, you’ll feel the warmth of a home that’s been freshly painted and thoughtfully cared for—complete with a brand-new roof and A/C for peace of mind. The main floor offers a bright, welcoming layout with a handy half bath in the mudroom off the garage. Downstairs, you’ll find three comfortable bedrooms, a spacious family room for movie nights or game days, and a full bath. The flat backyard is perfect for play, with beautiful landscaping and an extra storage shed for all your gear. This is more than a house—it’s a place where new memories are ready to be made.
Listing Information
Property Type: Residential, Single Family
Status: Active
Bedrooms: 5
Bathrooms: 3
Lot Size: 0.20 Acres
Square Feet: 2,827 sq ft
Year Built: 2000
Foundation: 1,452 sq ft
Garage: Yes
Stories: 1 Story
Subdivision: Bigelow-Voigt 3rd Sub
County: Dodge
Days On Market: 143
Construction Status: Previously Owned
School Information
District: Kasson-Mantorville
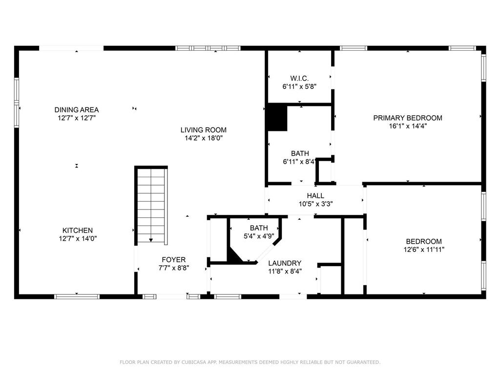
Room Information
Main Floor
Bedroom 1: 16.1x14.4
Bedroom 2: 12.6x11.11
Dining Room: 12.7x12.7
Kitchen: 14x13
Laundry: 11.8x8.4
Living Room: 14.2x18
Walk-In Closet: 6.11x5.8
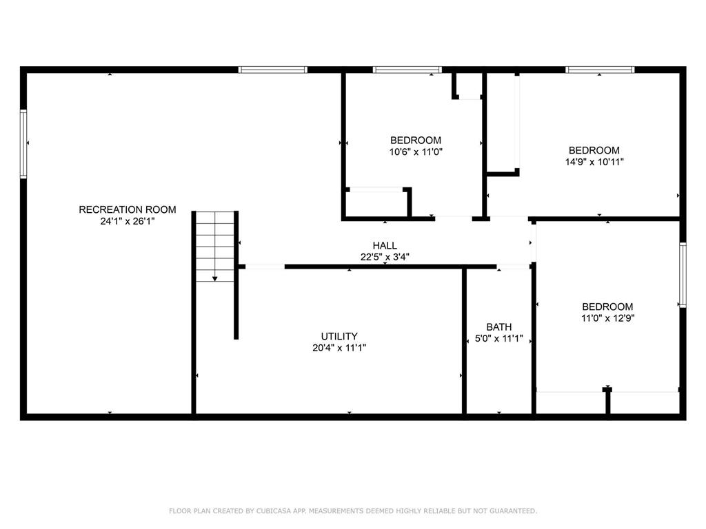
Lower Floor
Bedroom 3: 11x12.9
Bedroom 4: 14.9x10.11
Bedroom 5: 10.6x11
Family Room: 24x26
Utility Room: 20.4x11.1
Bathrooms
Full Baths: 2
1/2 Baths: 1
Additonal Room Information
Family: Lower Level
Dining: Eat In Kitchen,Living/Dining Room
Laundry: Lower Level
Bath Description: Full Basement,Main Floor 1/2 Bath,Main Floor Full Bath,Walk Thru
Interior Features
Square Footage above: 1,452 sq ft
Square Footage below: 1,375 sq ft
Appliances: Gas Water Heater, Range, Refrigerator, Water Softener - Owned, Dishwasher, Exhaust Fan/Hood, Microwave
Basement: Drain Tiled, Poured Concrete, Sump Pump
Additional Interior Features: Ceiling Fan(s), Kitchen Window, Vaulted Ceiling(s), Kitchen Center Island, Paneled Doors, Main Floor Laundry, 3 BR on One Level, All Living Facilities on One Level, Main Floor Bedroom
Utilities
Water: City Water/Connected
Sewer: City Sewer/Connected
Cooling: Central
Heating: Natural Gas, Forced Air
Exterior / Lot Features
Attached Garage: Attached Garage
Garage Spaces: 2
Parking Description: Garage Door Opener, Attached Garage, Driveway - Concrete, Garage Sq Ft - 576.0
Exterior: Vinyl
Roof: Age 8 Years or Less
Lot Dimensions: 74 x 120
Zoning: Residential-Single Family
Additional Exterior/Lot Features: Porch, Deck, Tree Coverage - Light, Public Transit (w/in 6 blks), Road Frontage - Paved Streets, City
Out Buildings: Shed - Storage
Driving Directions
From Hwy 14: north on Hwy 57 to County 34 west on County 34 to 13th Ave NW. From Mantorville: Cross bridge on Hwy 57, west on County 12 (go 1/4 mile) then south on County 21 to 8th St NW, west on 8th St NW, then south on 13th Ave.
Financial Considerations
Tax/Property ID: 241180111
Tax Amount: 4670
Tax Year: 2025
HomeStead Description: Homesteaded
A broker reciprocity listing courtesy: Re/Max Results
The data relating to real estate for sale on this web site comes in part from the Broker Reciprocity℠ Program of the Regional Multiple Listing Service of Minnesota, Inc. Real estate listings held by brokerage firms other than Edina Realty, Inc. are marked with the Broker Reciprocity℠ logo or the Broker Reciprocity℠ thumbnail and detailed information about them includes the name of the listing brokers. Edina Realty, Inc. is not a Multiple Listing Service (MLS), nor does it offer MLS access. This website is a service of Edina Realty, Inc., a broker Participant of the Regional Multiple Listing Service of Minnesota, Inc. IDX information is provided exclusively for consumers personal, non-commercial use and may not be used for any purpose other than to identify prospective properties consumers may be interested in purchasing. Open House information is subject to change without notice. Information deemed reliable but not guaranteed.
Copyright 2025 Regional Multiple Listing Service of Minnesota, Inc. All Rights Reserved.
Payment Calculator
Interest rate and annual percentage rate (APR) are based on current market conditions, are for informational purposes only, are subject to change without notice and may be subject to pricing add-ons related to property type, loan amount, loan-to-value, credit score and other variables. Estimated closing costs used in the APR calculation are assumed to be paid by the borrower at closing. If the closing costs are financed, the loan, APR and payment amounts will be higher. If the down payment is less than 20%, mortgage insurance may be required and could increase the monthly payment and APR. Contact us for details. Additional loan programs may be available. Accuracy is not guaranteed, and all products may not be available in all borrower's geographical areas and are based on their individual situation. This is not a credit decision or a commitment to lend.
Sales History & Tax Summary for 504 13th Avenue NW
Sales History
| Date | Price | Change |
|---|---|---|
| Currently not available. | ||
Tax Summary
| Tax Year | Estimated Market Value | Total Tax |
|---|---|---|
| Currently not available. | ||
Data powered by ATTOM Data Solutions. Copyright© 2025. Information deemed reliable but not guaranteed.
Schools
Schools nearby 504 13th Avenue NW
| Schools in attendance boundaries | Grades | Distance | Rating |
|---|---|---|---|
| Loading... | |||
| Schools nearby | Grades | Distance | Rating |
|---|---|---|---|
| Loading... | |||
Data powered by ATTOM Data Solutions. Copyright© 2025. Information deemed reliable but not guaranteed.
The schools shown represent both the assigned schools and schools by distance based on local school and district attendance boundaries. Attendance boundaries change based on various factors and proximity does not guarantee enrollment eligibility. Please consult your real estate agent and/or the school district to confirm the schools this property is zoned to attend. Information is deemed reliable but not guaranteed.
SchoolDigger ® Rating
The SchoolDigger rating system is a 1-5 scale with 5 as the highest rating. SchoolDigger ranks schools based on test scores supplied by each state's Department of Education. They calculate an average standard score by normalizing and averaging each school's test scores across all tests and grades.
Coming soon properties will soon be on the market, but are not yet available for showings.