$4,900,000
0 Ayers Road Brooksville, FL 34604
For Sale MLS# TB8450498
Commercial
Details for 0 Ayers Road
MLS# TB8450498
Description for 0 Ayers Road, Brooksville, FL, 34604
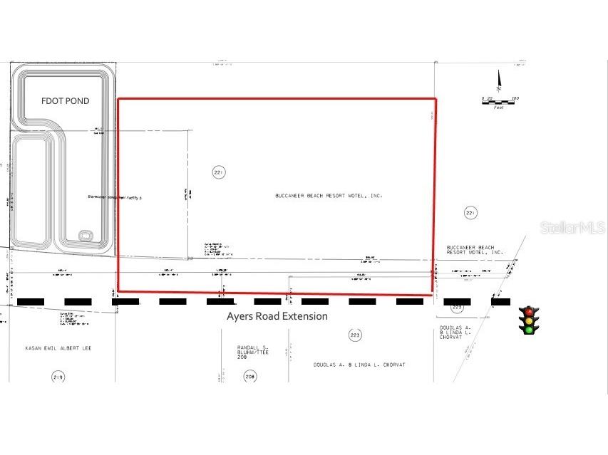
Prime 13.6± Acre Development Site in Brooksville’s Growth Corridor. Exceptional development opportunity located just 8 miles from downtown Brooksville, 2 miles from the Suncoast Parkway, and immediately south of the Hernando County Airport. Ideally positioned just north of Tampa and in close proximity to the rapidly growing Moffitt Cancer Center Pasco campus, the property is situated within one of the region’s most dynamic and fast-developing areas. Featuring over 950 feet of frontage on Ayers Road, the site includes an existing curb cut on Ayers Road, with a strong potential for additional access points. This location is ideal for a big-box retailer such as Walmart, Lowe’s, or Home Depot, as well as outparcel development or multi-family mixed use projects. Significant economic investment in the area with multiple new subdivisions planned along US-41 corridor just north and west of this property. Currently zoned Agricultural and located within the Airport PDD, the property will require rezoning for commercial or PDP (Planned Development Project) uses. Seller is willing to cooperate with Buyer through the entitlement and rezoning process.
Listing Information
Property Type: Commercial
Status: Active
Lot Size: 13.60 Acres
Subdivision: Garden Grove Farm
Current Use: Commercial
County: Hernando
Utilities
Water: Public
Sewer: Public Sewer
Other Utilities: Municipal Utilities
Exterior / Lot Features
Lot Dimensions: 962x620
Driving Directions
From US 41 Head West on Ayers Road. Property is located on the north side of Ayers Road, about 300 feet west of US 41. From County Line Road and Suncoast Parkway, head east on County Line Road, then follow to Ayers Road. Property is located on the north side of the road, just west of U.S. Highway 41.
Financial Considerations
Terms: Cash,Conventional
Tax/Property ID: R25-423-18-0000-0080-0000
Tax Amount: 2377.76
Tax Year: 2024
A broker reciprocity listing courtesy: INTEGRITY REAL ESTATE ADVISORS
Based on information provided by Stellar MLS as distributed by the MLS GRID. Information from the Internet Data Exchange is provided exclusively for consumers’ personal, non-commercial use, and such information may not be used for any purpose other than to identify prospective properties consumers may be interested in purchasing. This data is deemed reliable but is not guaranteed to be accurate by Edina Realty, Inc., or by the MLS. Edina Realty, Inc., is not a multiple listing service (MLS), nor does it offer MLS access.
Copyright 2025 Stellar MLS as distributed by the MLS GRID. All Rights Reserved.
Payment Calculator
Interest rate and annual percentage rate (APR) are based on current market conditions, are for informational purposes only, are subject to change without notice and may be subject to pricing add-ons related to property type, loan amount, loan-to-value, credit score and other variables. Estimated closing costs used in the APR calculation are assumed to be paid by the borrower at closing. If the closing costs are financed, the loan, APR and payment amounts will be higher. If the down payment is less than 20%, mortgage insurance may be required and could increase the monthly payment and APR. Contact us for details. Additional loan programs may be available. Accuracy is not guaranteed, and all products may not be available in all borrower's geographical areas and are based on their individual situation. This is not a credit decision or a commitment to lend.
Sales History & Tax Summary for 0 Ayers Road
Sales History
| Date | Price | Change |
|---|---|---|
| Currently not available. | ||
Tax Summary
| Tax Year | Estimated Market Value | Total Tax |
|---|---|---|
| Currently not available. | ||
Data powered by ATTOM Data Solutions. Copyright© 2025. Information deemed reliable but not guaranteed.
Schools
Schools nearby 0 Ayers Road
| Schools in attendance boundaries | Grades | Distance | Rating |
|---|---|---|---|
| Loading... | |||
| Schools nearby | Grades | Distance | Rating |
|---|---|---|---|
| Loading... | |||
Data powered by ATTOM Data Solutions. Copyright© 2025. Information deemed reliable but not guaranteed.
The schools shown represent both the assigned schools and schools by distance based on local school and district attendance boundaries. Attendance boundaries change based on various factors and proximity does not guarantee enrollment eligibility. Please consult your real estate agent and/or the school district to confirm the schools this property is zoned to attend. Information is deemed reliable but not guaranteed.
SchoolDigger ® Rating
The SchoolDigger rating system is a 1-5 scale with 5 as the highest rating. SchoolDigger ranks schools based on test scores supplied by each state's Department of Education. They calculate an average standard score by normalizing and averaging each school's test scores across all tests and grades.
Coming soon properties will soon be on the market, but are not yet available for showings.