0 Drexel Road Land O Lakes, FL 34639
For Sale MLS# TB8312431
Commercial
Details for 0 Drexel Road
MLS# TB8312431
Description for 0 Drexel Road, Land O Lakes, FL, 34639
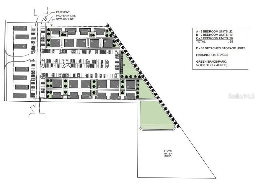
Pre-Construction. To be built. Permitted and ready. Welcome to this prime vacant land parcel ready for infill on this 6.7 acre lot, with ZONING: MFR2 (18 units each acre); FLOOD ZONE X. Surrounded by development, what could be stylish and beautifully modern 69-unit Condominium on Drexel Rd. This proposed 2 story Multi-Family product will be built around luscious greenspaces. Just minutes from restaurants, retail and schools. Conveniently located in the heart of Land O' Lakes, near the intersection of Lake Patience Rd. and Land O' Lakes Blvd (U.S. Hwy. 41).
Listing Information
Property Type: Commercial, Mixed Use
Status: Active
Lot Size: 6.71 Acres
Year Built: 2025
Construction: Wood Siding
Construction Display: New Construction
Foundation: Slab
County: Pasco
Utilities
Cooling: Zoned
Driving Directions
Land O Lakes Blvd North; left on Lake Patience, right of Drexel, property on right.
Financial Considerations
Tax/Property ID: 18-26-13-0000-04300-0020
Tax Amount: 4838
Tax Year: 2023
A broker reciprocity listing courtesy: RUSSELL ADAMS REALTY INC
Based on information provided by Stellar MLS as distributed by the MLS GRID. Information from the Internet Data Exchange is provided exclusively for consumers’ personal, non-commercial use, and such information may not be used for any purpose other than to identify prospective properties consumers may be interested in purchasing. This data is deemed reliable but is not guaranteed to be accurate by Edina Realty, Inc., or by the MLS. Edina Realty, Inc., is not a multiple listing service (MLS), nor does it offer MLS access.
Copyright 2025 Stellar MLS as distributed by the MLS GRID. All Rights Reserved.
Payment Calculator
Interest rate and annual percentage rate (APR) are based on current market conditions, are for informational purposes only, are subject to change without notice and may be subject to pricing add-ons related to property type, loan amount, loan-to-value, credit score and other variables. Estimated closing costs used in the APR calculation are assumed to be paid by the borrower at closing. If the closing costs are financed, the loan, APR and payment amounts will be higher. If the down payment is less than 20%, mortgage insurance may be required and could increase the monthly payment and APR. Contact us for details. Additional loan programs may be available. Accuracy is not guaranteed, and all products may not be available in all borrower's geographical areas and are based on their individual situation. This is not a credit decision or a commitment to lend.
Sales History & Tax Summary for 0 Drexel Road
Sales History
| Date | Price | Change |
|---|---|---|
| Currently not available. | ||
Tax Summary
| Tax Year | Estimated Market Value | Total Tax |
|---|---|---|
| Currently not available. | ||
Data powered by ATTOM Data Solutions. Copyright© 2025. Information deemed reliable but not guaranteed.
Schools
Schools nearby 0 Drexel Road
| Schools in attendance boundaries | Grades | Distance | Rating |
|---|---|---|---|
| Loading... | |||
| Schools nearby | Grades | Distance | Rating |
|---|---|---|---|
| Loading... | |||
Data powered by ATTOM Data Solutions. Copyright© 2025. Information deemed reliable but not guaranteed.
The schools shown represent both the assigned schools and schools by distance based on local school and district attendance boundaries. Attendance boundaries change based on various factors and proximity does not guarantee enrollment eligibility. Please consult your real estate agent and/or the school district to confirm the schools this property is zoned to attend. Information is deemed reliable but not guaranteed.
SchoolDigger ® Rating
The SchoolDigger rating system is a 1-5 scale with 5 as the highest rating. SchoolDigger ranks schools based on test scores supplied by each state's Department of Education. They calculate an average standard score by normalizing and averaging each school's test scores across all tests and grades.
Coming soon properties will soon be on the market, but are not yet available for showings.