103 N Main Street Wildwood, FL 34785
For Sale MLS# G5096839
4,211 sq ft Commercial
Details for 103 N Main Street
MLS# G5096839
Description for 103 N Main Street, Wildwood, FL, 34785
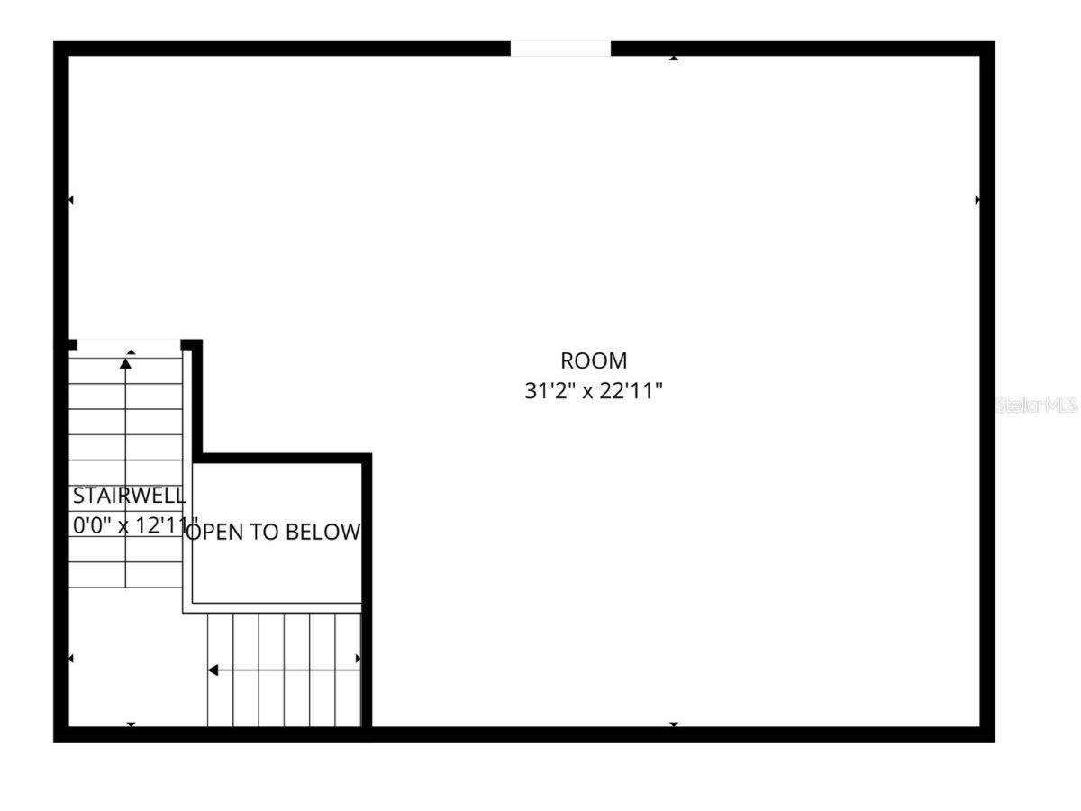
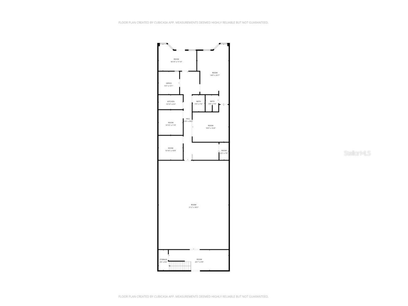
Prime Commercial Opportunity in the Heart of Wildwood’s Historic District. Commercial properties in Wildwood’s historic downtown are becoming increasingly rare—especially those in the path of rapid revitalization. Once overlooked due to limited access, this area is now emerging as a commercial hotspot, thanks to the City of Wildwood’s ambitious redevelopment plan. Key improvements include a newly constructed 125-space parking garage and The Railyard, a highly anticipated mixed-use project featuring retail spaces and a rooftop restaurant just a block away. This transformation is turning downtown Wildwood into a vibrant, walkable commercial district.At the center of this revitalization sits a standout opportunity: a ±4,200 sq ft commercial building surrounded by restaurants, boutiques, salons, and other thriving businesses. The property includes two office suites, two restrooms, a spacious lobby/reception area, a showroom, a conference room, a kitchenette, a storage/breakroom area, a 1,200 sq ft workshop on the lower level, a 700 sq ft upper-level workshop, and a rooftop terrace with panoramic views of downtown Wildwood and City Hall.Driven by the explosive growth of The Villages—the nation’s largest and fastest-growing single-site development—this location is poised for long-term success and value appreciation.Business is also available for purchase with a signed confidentiality agreement and proof of funds. Whether you’re launching a new venture, expanding an existing enterprise, or continuing a successful operation, this property offers an exceptional platform for growth.?? Please do not disturb the ongoing business, its employees, or the owner.Contact us today by phone or email to schedule your private tour of this exceptional commercial property.
Listing Information
Property Type: Commercial, Retail
Status: Active
Lot Size: 0.08 Acres
Square Feet: 4,211 sq ft
Year Built: 1949
Construction: Block
Subdivision: Masons Ext Denham Sur
Foundation: Slab
County: Sumter
Utilities
Cooling: Central Air
Driving Directions
From the intersection of CR 466A and US HWY 301. Head South on HWY 301. The property will be on the right.
Financial Considerations
Terms: Cash,Conventional
Tax/Property ID: G06L148
Tax Amount: 3598
Tax Year: 2024
A broker reciprocity listing courtesy: FLAMINGO REAL ESTATE & MNGMT
Based on information provided by Stellar MLS as distributed by the MLS GRID. Information from the Internet Data Exchange is provided exclusively for consumers’ personal, non-commercial use, and such information may not be used for any purpose other than to identify prospective properties consumers may be interested in purchasing. This data is deemed reliable but is not guaranteed to be accurate by Edina Realty, Inc., or by the MLS. Edina Realty, Inc., is not a multiple listing service (MLS), nor does it offer MLS access.
Copyright 2025 Stellar MLS as distributed by the MLS GRID. All Rights Reserved.
Payment Calculator
Interest rate and annual percentage rate (APR) are based on current market conditions, are for informational purposes only, are subject to change without notice and may be subject to pricing add-ons related to property type, loan amount, loan-to-value, credit score and other variables. Estimated closing costs used in the APR calculation are assumed to be paid by the borrower at closing. If the closing costs are financed, the loan, APR and payment amounts will be higher. If the down payment is less than 20%, mortgage insurance may be required and could increase the monthly payment and APR. Contact us for details. Additional loan programs may be available. Accuracy is not guaranteed, and all products may not be available in all borrower's geographical areas and are based on their individual situation. This is not a credit decision or a commitment to lend.
Sales History & Tax Summary for 103 N Main Street
Sales History
| Date | Price | Change |
|---|---|---|
| Currently not available. | ||
Tax Summary
| Tax Year | Estimated Market Value | Total Tax |
|---|---|---|
| Currently not available. | ||
Data powered by ATTOM Data Solutions. Copyright© 2025. Information deemed reliable but not guaranteed.
Schools
Schools nearby 103 N Main Street
| Schools in attendance boundaries | Grades | Distance | Rating |
|---|---|---|---|
| Loading... | |||
| Schools nearby | Grades | Distance | Rating |
|---|---|---|---|
| Loading... | |||
Data powered by ATTOM Data Solutions. Copyright© 2025. Information deemed reliable but not guaranteed.
The schools shown represent both the assigned schools and schools by distance based on local school and district attendance boundaries. Attendance boundaries change based on various factors and proximity does not guarantee enrollment eligibility. Please consult your real estate agent and/or the school district to confirm the schools this property is zoned to attend. Information is deemed reliable but not guaranteed.
SchoolDigger ® Rating
The SchoolDigger rating system is a 1-5 scale with 5 as the highest rating. SchoolDigger ranks schools based on test scores supplied by each state's Department of Education. They calculate an average standard score by normalizing and averaging each school's test scores across all tests and grades.
Coming soon properties will soon be on the market, but are not yet available for showings.