105 Exchange Loop Loop #9 Palm Coast, FL 32164
For Sale MLS# O6300824
Commercial
Details for 105 Exchange Loop Loop #9
MLS# O6300824
Description for 105 Exchange Loop Loop #9, Palm Coast, FL, 32164
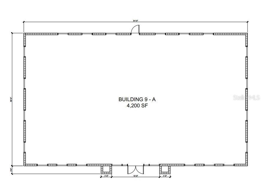
Under Construction. Building #09, the signature building, is available for purchase at Palm Coast Town Center Exchange, a premier commercial development within Palm Coast’s Town Center master plan and part of a U.S. HUD opportunity zone. The zone boasts tax benefits for owners that participate in the program. This signature building offers the most direct frontage within the development boasting prominent façade signage and visibility from Town Center Boulevard. The building is being delivered in dark gray shell condition offering a fully customizable interior, giving buyers complete flexibility to design their ideal layout. The listed price is for a single entrance (option A) with an additional entrance façade (Option B and C) configuration upgrade available (ask for more details). Strategically located just 0.3 miles in front of AdventHealth Palm Coast Hospital, off Interstate 95 and Highway 100, it boasts prime visibility and access along Town Center Boulevard with over 390 feet of frontage. Nestled in the thriving Town Center community, with multiple residential projects underway, this property is ideal for medical practices and businesses aiming to capitalize on one of Florida’s fastest-growing cities. Contact us for pricing, builder incentives, and to schedule a tour of this outstanding commercial opportunity.
Listing Information
Property Type: Commercial, Office
Status: Active
Lot Size: 0.17 Acres
Year Built: 2025
Stories: 1 Story
Construction: Brick,Block,Stucco
Construction Display: New Construction
Foundation: Stem Wall
County: Flagler
Construction Status: Under Construction
Utilities
Water: Public
Sewer: Public Sewer
Other Utilities: Municipal Utilities,Underground Utilities
Exterior / Lot Features
Roof: Metal
Driving Directions
At the intersection of Highway 100 and I-95 head west. Turn right on Town Center Blvd and head north. The development will be on your left, just west of intersection of Hospital drive and Town Center Blvd.
Financial Considerations
Tax/Property ID: 06-12-31-4951-00000-0090
Tax Year: 2025
A broker reciprocity listing courtesy: THE MARKS GROUP REALTY, LLC
Based on information provided by Stellar MLS as distributed by the MLS GRID. Information from the Internet Data Exchange is provided exclusively for consumers’ personal, non-commercial use, and such information may not be used for any purpose other than to identify prospective properties consumers may be interested in purchasing. This data is deemed reliable but is not guaranteed to be accurate by Edina Realty, Inc., or by the MLS. Edina Realty, Inc., is not a multiple listing service (MLS), nor does it offer MLS access.
Copyright 2026 Stellar MLS as distributed by the MLS GRID. All Rights Reserved.
Payment Calculator
Interest rate and annual percentage rate (APR) are based on current market conditions, are for informational purposes only, are subject to change without notice and may be subject to pricing add-ons related to property type, loan amount, loan-to-value, credit score and other variables. Estimated closing costs used in the APR calculation are assumed to be paid by the borrower at closing. If the closing costs are financed, the loan, APR and payment amounts will be higher. If the down payment is less than 20%, mortgage insurance may be required and could increase the monthly payment and APR. Contact us for details. Additional loan programs may be available. Accuracy is not guaranteed, and all products may not be available in all borrower's geographical areas and are based on their individual situation. This is not a credit decision or a commitment to lend.
Sales History & Tax Summary for 105 Exchange Loop Loop #9
Sales History
| Date | Price | |
|---|---|---|
| Currently not available. | ||
Tax Summary
| Tax Year | Estimated Market Value | Total Tax |
|---|---|---|
| Currently not available. | ||
Data powered by ATTOM Data Solutions. Copyright© 2026. Information deemed reliable but not guaranteed.
Schools
Schools nearby 105 Exchange Loop Loop #9
| Schools in attendance boundaries | Grades | Distance | Rating |
|---|---|---|---|
| Loading... | |||
| Schools nearby | Grades | Distance | Rating |
|---|---|---|---|
| Loading... | |||
Data powered by ATTOM Data Solutions. Copyright© 2026. Information deemed reliable but not guaranteed.
The schools shown represent both the assigned schools and schools by distance based on local school and district attendance boundaries. Attendance boundaries change based on various factors and proximity does not guarantee enrollment eligibility. Please consult your real estate agent and/or the school district to confirm the schools this property is zoned to attend. Information is deemed reliable but not guaranteed.
SchoolDigger ® Rating
The SchoolDigger rating system is a 1-5 scale with 5 as the highest rating. SchoolDigger ranks schools based on test scores supplied by each state's Department of Education. They calculate an average standard score by normalizing and averaging each school's test scores across all tests and grades.
Coming soon properties will soon be on the market, but are not yet available for showings.