1055 Philippe Parkway Safety Harbor, FL 34695
For Sale MLS# TB8426502
3,825 sq ft Commercial
Details for 1055 Philippe Parkway
MLS# TB8426502
Description for 1055 Philippe Parkway, Safety Harbor, FL, 34695
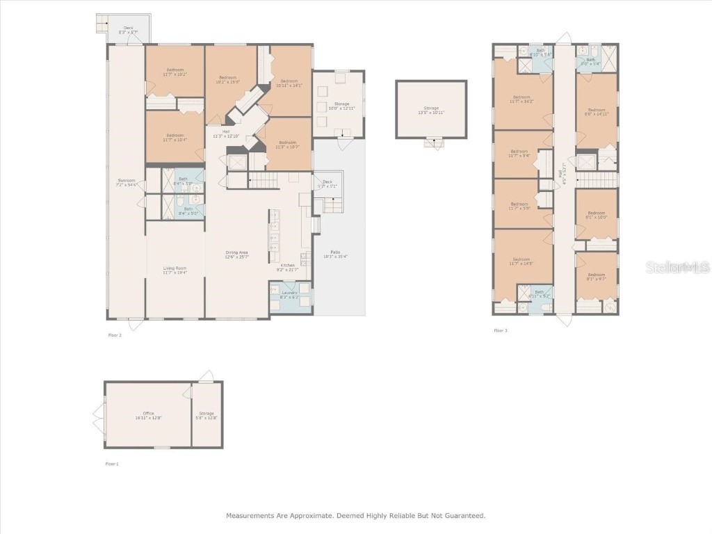
RARE SAFETY HARBOR OPPORTUNITY WITH ENDLESS POTENTIAL! Located in the heart of desirable Safety Harbor, this unique property is just moments from the charming downtown district filled with award-winning restaurants, boutique shopping, local pubs, parks, the public library, wellness spas, motels, and the renowned Safety Harbor Resort and Spa. Situated on nearly 1 acre and zoned R-3, this versatile property presents an exceptional opportunity for investors, developers, business owners, or those seeking a multi-use compound. Previously operated as an Assisted Living Facility and approved for 19 beds, the 3,825 sq ft main building is thoughtfully designed and well-equipped. Inside you’ll find 12 bedrooms (5 downstairs, 7 upstairs), 5 bathrooms with both private and hallway access, a spacious living room, formal dining area, full kitchen, laundry room, and a bright enclosed porch filled with natural light. Property highlights include: • Elevator • Whole-house fire sprinkler system • Two HVAC units & two water heaters • Vulcan natural gas stove • Washer, dryer, and commercial food storage refrigerators included • Generator • Walk-in food storage shed plus additional large utility shed • Detached secondary structure ideal for an office, gym, guest suite, studio, or she shed • Ample parking with room for boats, RVs, kayaks, and recreational vehicles • NO HOA or deed restrictions The expansive 0.95-acre lot (199 ft frontage x 207 ft depth) offers room to add a pool, additional residence, or expand future development possibilities. Located in Flood Zone X — no flood insurance required. Permitted uses include: Assisted Living Facility, Congregate Care Facility, Community Residential Home, Day Care, Church, Public Education Facility, Multifamily Residence, Two-Family Dwellings, or private compound opportunities. Floor plans available in photos. This is a rare chance to own a flexible, income-producing or redevelopment-ready property in one of Safety Harbor’s most sought-after locations. PLEASE DO NOT ENTER PROPERTY WITHOUT A CONFIRMED APPOINTMENT.
Listing Information
Property Type: Commercial, Mixed Use
Status: Active
Lot Size: 0.95 Acres
Square Feet: 3,825 sq ft
Year Built: 1947
Stories: 2 Story
Construction: Wood Frame
Subdivision: None
Foundation: Crawlspace
County: Pinellas
Interior Features
Appliances: Dishwasher, Dryer, Refrigerator, Washer
Flooring: Luxury Vinyl
Basement: Crawl Space
Accessibility: Accessible Bedroom, Accessible Central Living Area, Accessible Common Area, Accessible Doors, Accessible Full Bath, Accessible Hallway(s), Visitor Bathroom, Accessible Elevator Installed
Utilities
Sewer: Private Sewer
Other Utilities: Municipal Utilities
Cooling: Central Air
Heating: Central
Exterior / Lot Features
Roof: Shingle
Lot Dimensions: 199x207
Additional Exterior/Lot Features: Landscaped, Oversized Lot
Out Buildings: Storage
Driving Directions
East on Enterprise Rd South on Philippe, Property will be on your right hand-side - 1055
Financial Considerations
Terms: Cash,Owner May Carry
Tax/Property ID: 34-28-16-00000-430-0400
Tax Amount: 8506.55
Tax Year: 2024
A broker reciprocity listing courtesy: LPT REALTY, LLC
Based on information provided by Stellar MLS as distributed by the MLS GRID. Information from the Internet Data Exchange is provided exclusively for consumers’ personal, non-commercial use, and such information may not be used for any purpose other than to identify prospective properties consumers may be interested in purchasing. This data is deemed reliable but is not guaranteed to be accurate by Edina Realty, Inc., or by the MLS. Edina Realty, Inc., is not a multiple listing service (MLS), nor does it offer MLS access.
Copyright 2026 Stellar MLS as distributed by the MLS GRID. All Rights Reserved.
Payment Calculator
Interest rate and annual percentage rate (APR) are based on current market conditions, are for informational purposes only, are subject to change without notice and may be subject to pricing add-ons related to property type, loan amount, loan-to-value, credit score and other variables. Estimated closing costs used in the APR calculation are assumed to be paid by the borrower at closing. If the closing costs are financed, the loan, APR and payment amounts will be higher. If the down payment is less than 20%, mortgage insurance may be required and could increase the monthly payment and APR. Contact us for details. Additional loan programs may be available. Accuracy is not guaranteed, and all products may not be available in all borrower's geographical areas and are based on their individual situation. This is not a credit decision or a commitment to lend.
Sales History & Tax Summary for 1055 Philippe Parkway
Sales History
| Date | Price | |
|---|---|---|
| Currently not available. | ||
Tax Summary
| Tax Year | Estimated Market Value | Total Tax |
|---|---|---|
| Currently not available. | ||
Data powered by ATTOM Data Solutions. Copyright© 2026. Information deemed reliable but not guaranteed.
Schools
Schools nearby 1055 Philippe Parkway
| Schools in attendance boundaries | Grades | Distance | Rating |
|---|---|---|---|
| Loading... | |||
| Schools nearby | Grades | Distance | Rating |
|---|---|---|---|
| Loading... | |||
Data powered by ATTOM Data Solutions. Copyright© 2026. Information deemed reliable but not guaranteed.
The schools shown represent both the assigned schools and schools by distance based on local school and district attendance boundaries. Attendance boundaries change based on various factors and proximity does not guarantee enrollment eligibility. Please consult your real estate agent and/or the school district to confirm the schools this property is zoned to attend. Information is deemed reliable but not guaranteed.
SchoolDigger ® Rating
The SchoolDigger rating system is a 1-5 scale with 5 as the highest rating. SchoolDigger ranks schools based on test scores supplied by each state's Department of Education. They calculate an average standard score by normalizing and averaging each school's test scores across all tests and grades.
Coming soon properties will soon be on the market, but are not yet available for showings.