$499,000
106 Main Avenue W Frazee, MN 56544
For Sale MLS# 6761858
Other
Details for 106 Main Avenue W
MLS# 6761858
Description for 106 Main Avenue W, Frazee, MN, 56544
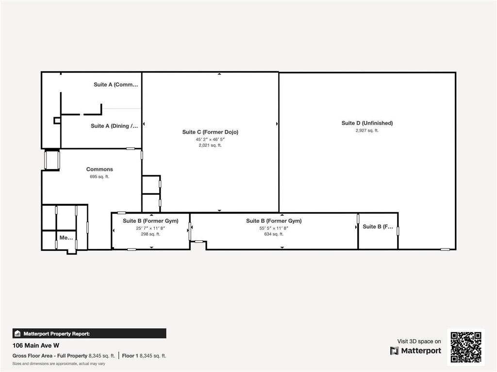
Commercial space in Frazee, MN! Former Bowling alley (Can be converted back to bowling alley) and pizzeria. Space has been been converted into 4 suites. Suite A: Former pizzeria / shake shop with Commercial kitchen; Suite B: Former Gym / Fitness; Suite C: Former Dojo with changing rooms; Suite D: unfinished space to get creative with (Indoor storage / Laundromat / Warehouse / etc. Commons and Men's / Women's baths. Over 8,000 SF of commercial space built in 1996 in downtown Frazee, MN! Energy efficient building. Newer natural gas / forced air furnace.
Listing Information
Property Type: Commercial
Status: Active
Lot Size: 0.25 Acres
Square Feet: 6,280 sq ft
Year Built: 1996
Foundation: 8,280 sq ft
Stories: 1 Story
Subdivision: Frazee
Number Of Units Total: 4
Current Use: Business Service,Commercial,Food Service,Other,Professional Service,Recreational,Restaurant,Warehouse
County: Becker
Days On Market: 155
Construction Status: Previously Owned
School Information
District: 23 - Frazee-Vergas
Interior Features
Flooring: Carpet,Concrete Slab,Heavy Duty,Tile
Accessibility: No Stairs External, No Stairs Internal
Additional Interior Features: Kitchen Window
Utilities
Water: City Water/Connected
Sewer: City Sewer/Connected
Other Utilities: Electric Common,Heating Common,Hot Water Common
Cooling: Central
Heating: Forced Air, Natural Gas
Exterior / Lot Features
Parking Description: Other, On-Street Parking Only
Exterior: Steel Siding, Block, Brick/Stone
Roof: Metal, Pitched
Lot Dimensions: 140x77
Zoning: Business/Commercial
Topography: Level
Additional Exterior/Lot Features: Land Inclusions - Building,Land, Road Frontage - City, Curbs, Sidewalks, Street Lights, Paved Streets
Community Features
Community Features: Other
Association Amenities: Other, Lobby, Security Lights, Fire Sprinkler System
Driving Directions
Main St, Frazee
Financial Considerations
Tax/Property ID: 500398000
Tax Amount: 2124
Tax Year: 2025
HomeStead Description: Non-Homesteaded
A broker reciprocity listing courtesy: The Real Estate Company of Detroit Lakes
The data relating to real estate for sale on this web site comes in part from the Broker Reciprocity℠ Program of the Regional Multiple Listing Service of Minnesota, Inc. Real estate listings held by brokerage firms other than Edina Realty, Inc. are marked with the Broker Reciprocity℠ logo or the Broker Reciprocity℠ thumbnail and detailed information about them includes the name of the listing brokers. Edina Realty, Inc. is not a Multiple Listing Service (MLS), nor does it offer MLS access. This website is a service of Edina Realty, Inc., a broker Participant of the Regional Multiple Listing Service of Minnesota, Inc. IDX information is provided exclusively for consumers personal, non-commercial use and may not be used for any purpose other than to identify prospective properties consumers may be interested in purchasing. Open House information is subject to change without notice. Information deemed reliable but not guaranteed.
Copyright 2025 Regional Multiple Listing Service of Minnesota, Inc. All Rights Reserved.
Payment Calculator
Interest rate and annual percentage rate (APR) are based on current market conditions, are for informational purposes only, are subject to change without notice and may be subject to pricing add-ons related to property type, loan amount, loan-to-value, credit score and other variables. Estimated closing costs used in the APR calculation are assumed to be paid by the borrower at closing. If the closing costs are financed, the loan, APR and payment amounts will be higher. If the down payment is less than 20%, mortgage insurance may be required and could increase the monthly payment and APR. Contact us for details. Additional loan programs may be available. Accuracy is not guaranteed, and all products may not be available in all borrower's geographical areas and are based on their individual situation. This is not a credit decision or a commitment to lend.
Sales History & Tax Summary for 106 Main Avenue W
Sales History
| Date | Price | Change |
|---|---|---|
| Currently not available. | ||
Tax Summary
| Tax Year | Estimated Market Value | Total Tax |
|---|---|---|
| Currently not available. | ||
Data powered by ATTOM Data Solutions. Copyright© 2025. Information deemed reliable but not guaranteed.
Schools
Schools nearby 106 Main Avenue W
| Schools in attendance boundaries | Grades | Distance | Rating |
|---|---|---|---|
| Loading... | |||
| Schools nearby | Grades | Distance | Rating |
|---|---|---|---|
| Loading... | |||
Data powered by ATTOM Data Solutions. Copyright© 2025. Information deemed reliable but not guaranteed.
The schools shown represent both the assigned schools and schools by distance based on local school and district attendance boundaries. Attendance boundaries change based on various factors and proximity does not guarantee enrollment eligibility. Please consult your real estate agent and/or the school district to confirm the schools this property is zoned to attend. Information is deemed reliable but not guaranteed.
SchoolDigger ® Rating
The SchoolDigger rating system is a 1-5 scale with 5 as the highest rating. SchoolDigger ranks schools based on test scores supplied by each state's Department of Education. They calculate an average standard score by normalizing and averaging each school's test scores across all tests and grades.
Coming soon properties will soon be on the market, but are not yet available for showings.