108 S Meridian Street Belle Plaine, MN 56011
For Sale MLS# 6795398
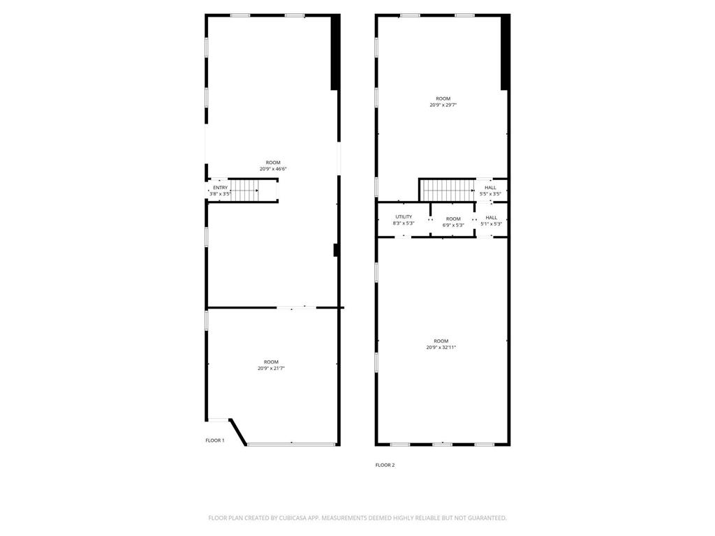
3,220 sq ft Commercial
Listed by: Edina Realty, Inc.
Details for 108 S Meridian Street
MLS# 6795398
Description for 108 S Meridian Street, Belle Plaine, MN, 56011
Historic two-story building in a prime downtown location with steady flow of vehicle and foot traffic 7-days a week. Adjacent to Townsend Park and steps to the downtown park plaza. Full street overhaul and extra wide front sidewalk in 2023. The building features an open floor plan with 10' ceilings ready for your renovation ideas to bring your business needs to life. Lots of space to build out an apartment, or two, in the upper level for passive rental income. A great location for a business to participate in the popular downtown events including All Wheel Wednesdays. Off-street parking available.
Listing Information
Property Type: Commercial, Apartments and Retail
Status: Active
Lot Size: 0.04 Acres
Square Feet: 3,220 sq ft
Year Built: 1890
Foundation: 1,610 sq ft
Stories: 2 Stories
Subdivision: City Of Belle Plaine
Number Of Units Total: 1
Current Use: Vacant
County: Scott
Days On Market: 238
Construction Status: Previously Owned
School Information
District: 716 - Belle Plaine
Interior Features
Flooring: Wood
Basement: Partial, Unfinished
Accessibility: Partially Wheelchair
Utilities
Water: City Water/Connected
Sewer: City Sewer/Connected
Other Utilities: Heating Common
Heating: Electric, Forced Air, Natural Gas
Exterior / Lot Features
Parking Description: gravel lot, On-Street Parking Only, Garage Sq Ft - 0.00
Exterior: Brick/Stone
Roof: Age Over 8 Years, Flat
Lot Dimensions: 23x70
Zoning: Business/Commercial
Additional Exterior/Lot Features: Zero Lot Line, Land Inclusions - Building,Land, Road Frontage - City, Sidewalks
Driving Directions
From Hwy 169, head North on S Meridian St. towards downtown, Building on the left next to Townsend Park.
Financial Considerations
Other Annual Tax: $854
Owner Pays: All Utilities
Tax/Property ID: 200014260
Tax Amount: 2473.97
Tax Year: 2025
HomeStead Description: Non-Homesteaded
The data relating to real estate for sale on this web site comes in part from the Broker Reciprocity℠ Program of the Regional Multiple Listing Service of Minnesota, Inc. Real estate listings held by brokerage firms other than Edina Realty, Inc. are marked with the Broker Reciprocity℠ logo or the Broker Reciprocity℠ thumbnail and detailed information about them includes the name of the listing brokers. Edina Realty, Inc. is not a Multiple Listing Service (MLS), nor does it offer MLS access. This website is a service of Edina Realty, Inc., a broker Participant of the Regional Multiple Listing Service of Minnesota, Inc. IDX information is provided exclusively for consumers personal, non-commercial use and may not be used for any purpose other than to identify prospective properties consumers may be interested in purchasing. Open House information is subject to change without notice. Information deemed reliable but not guaranteed.
Copyright 2026 Regional Multiple Listing Service of Minnesota, Inc. All Rights Reserved.
Payment Calculator
Interest rate and annual percentage rate (APR) are based on current market conditions, are for informational purposes only, are subject to change without notice and may be subject to pricing add-ons related to property type, loan amount, loan-to-value, credit score and other variables. Estimated closing costs used in the APR calculation are assumed to be paid by the borrower at closing. If the closing costs are financed, the loan, APR and payment amounts will be higher. If the down payment is less than 20%, mortgage insurance may be required and could increase the monthly payment and APR. Contact us for details. Additional loan programs may be available. Accuracy is not guaranteed, and all products may not be available in all borrower's geographical areas and are based on their individual situation. This is not a credit decision or a commitment to lend.
Sales History & Tax Summary for 108 S Meridian Street
Sales History
| Date | Price | |
|---|---|---|
| Currently not available. | ||
Tax Summary
| Tax Year | Estimated Market Value | Total Tax |
|---|---|---|
| Currently not available. | ||
Data powered by ATTOM Data Solutions. Copyright© 2026. Information deemed reliable but not guaranteed.
Schools
Schools nearby 108 S Meridian Street
| Schools in attendance boundaries | Grades | Distance | Rating |
|---|---|---|---|
| Loading... | |||
| Schools nearby | Grades | Distance | Rating |
|---|---|---|---|
| Loading... | |||
Data powered by ATTOM Data Solutions. Copyright© 2026. Information deemed reliable but not guaranteed.
The schools shown represent both the assigned schools and schools by distance based on local school and district attendance boundaries. Attendance boundaries change based on various factors and proximity does not guarantee enrollment eligibility. Please consult your real estate agent and/or the school district to confirm the schools this property is zoned to attend. Information is deemed reliable but not guaranteed.
SchoolDigger ® Rating
The SchoolDigger rating system is a 1-5 scale with 5 as the highest rating. SchoolDigger ranks schools based on test scores supplied by each state's Department of Education. They calculate an average standard score by normalizing and averaging each school's test scores across all tests and grades.
Coming soon properties will soon be on the market, but are not yet available for showings.