$1,589,000
108 S Minnesota Avenue Saint Peter, MN 56082
For Sale MLS# 7038973
Commercial
Details for 108 S Minnesota Avenue
MLS# 7038973
Description for 108 S Minnesota Avenue, Saint Peter, MN, 56082
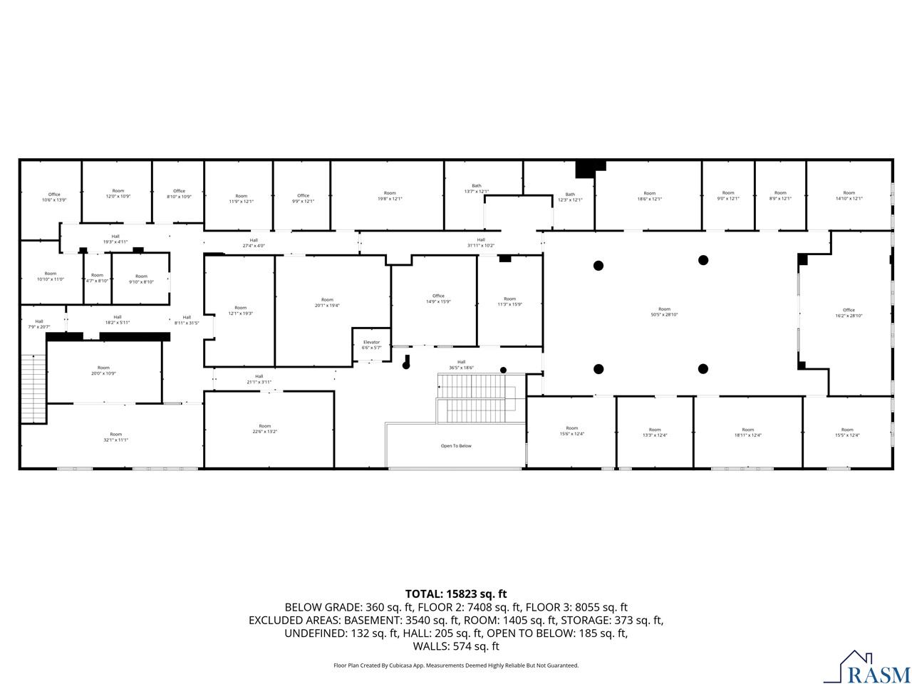
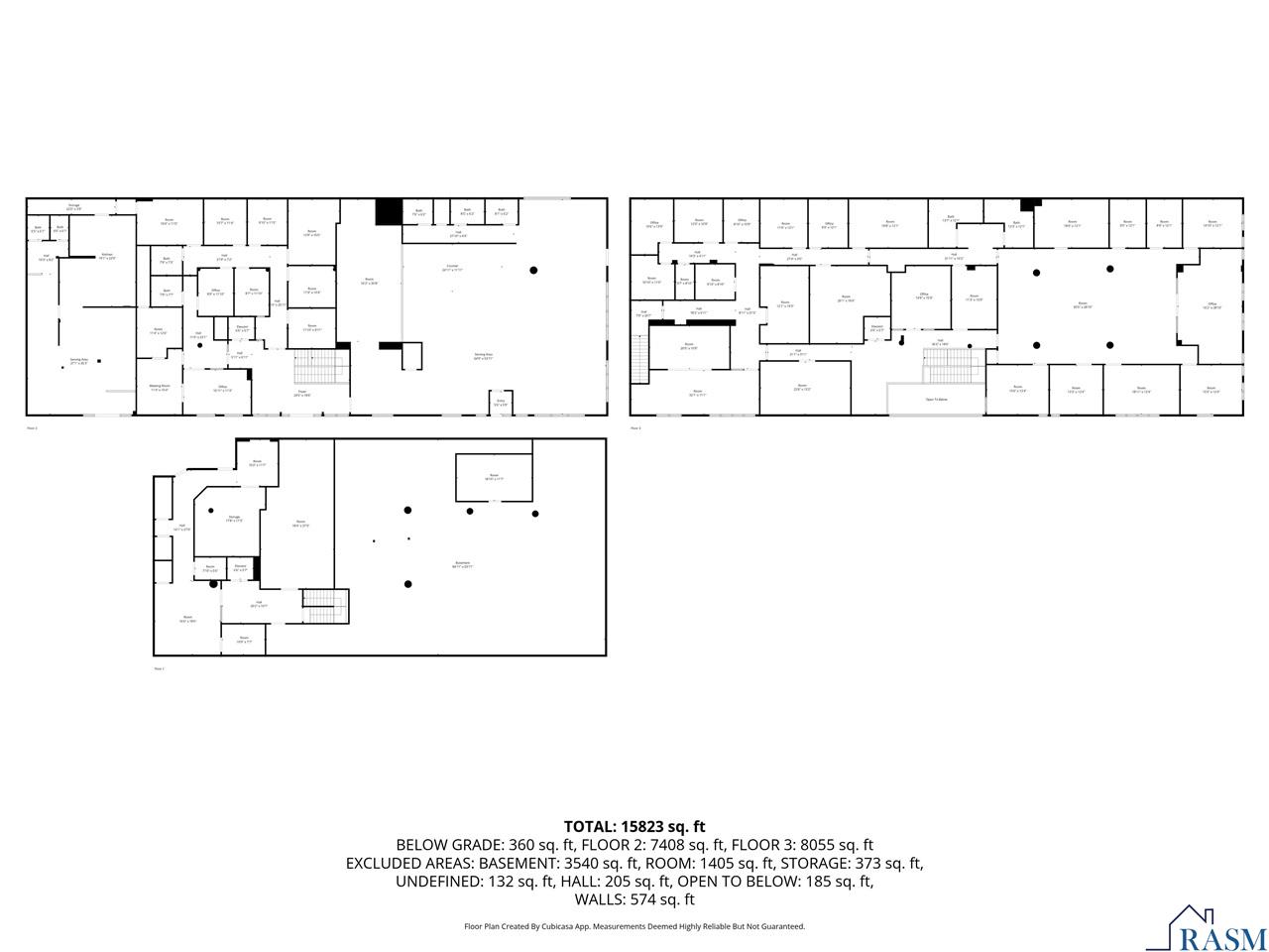
Nicollet Plaza is a prime commercial investment opportunity located in the heart of the downtown St. Peter historic district. Surrounded by well-preserved 19th Century Architecture, this building is right on Highway 169 with supreme visibility and high traffic activity. The completely remodeled 23,325 SF building is nearly at full occupancy. Current tenants include: Paddlefish Brewing Company, Greater MN Trauma Center, Vet Pharmacy, Sherwin Group and Great Wall restaurant. Sale includes an extra 4,960 SF parcel for additional parking that is currently rented to a neighboring business. Property is zoned 3A that allows for a wide range of retail and office uses. St. Peter is a thriving business, historic and artistic city. Investment CAP Rate = 8%. NDA is required to access confidential documents.
Listing Information
Property Type: Commercial
Status: Active
Year Built: 1944
Foundation: 8,512 sq ft
Construction: Concrete Block
Current Use: Business Service,Professional Service,Restaurant,Retail (L)
County: Nicollet
Days On Market: 39
School Information
District: St. Peter #508
Interior Features
Accessibility: Elevator
Additional Interior Features: Elevator, Restrooms
Utilities
Water: City
Sewer: City
Cooling: Central
Heating: Electric, Forced Air
Exterior / Lot Features
Open Parking: 50
Parking Description: Driveway - Asphalt
Exterior: Brick
Roof: Flat
Zoning: 3A
Additional Exterior/Lot Features: Road Frontage - US Highway
Financial Considerations
Tenant Pays: Broadband
Owner Pays: Electric,Fuel,Janitorial,Maint./Repair,Snow,Trash,Water/Sewer
Tax/Property ID: 19.412.3710
Tax Amount: 30404
Tax Year: 2025
A broker reciprocity listing courtesy: True Commercial, LLC
The data relating to real estate for sale on this web site comes in part from the Broker Reciprocity℠ Program of the REALTOR® Association of So MN Multiple Listing Service. Real estate listings held by brokerage firms other than Edina Realty, Inc. are marked with the Broker Reciprocity℠ logo or the Broker Reciprocity℠ thumbnail and detailed information about them includes the name of the listing brokers. Edina Realty, Inc. is not a Multiple Listing Service (MLS), nor does it offer MLS access. This website is a service of Edina Realty, Inc., a broker Participant of the REALTOR® Association of So MN Multiple Listing Service. IDX information is provided exclusively for consumers personal, non-commercial use and may not be used for any purpose other than to identify prospective properties consumers may be interested in purchasing. Open House information is subject to change without notice. Information deemed reliable but not guaranteed.
Copyright 2025 REALTOR® Association of So MN Multiple Listing Service. All Rights Reserved.
Payment Calculator
Interest rate and annual percentage rate (APR) are based on current market conditions, are for informational purposes only, are subject to change without notice and may be subject to pricing add-ons related to property type, loan amount, loan-to-value, credit score and other variables. Estimated closing costs used in the APR calculation are assumed to be paid by the borrower at closing. If the closing costs are financed, the loan, APR and payment amounts will be higher. If the down payment is less than 20%, mortgage insurance may be required and could increase the monthly payment and APR. Contact us for details. Additional loan programs may be available. Accuracy is not guaranteed, and all products may not be available in all borrower's geographical areas and are based on their individual situation. This is not a credit decision or a commitment to lend.
Sales History & Tax Summary for 108 S Minnesota Avenue
Sales History
| Date | Price | Change |
|---|---|---|
| Currently not available. | ||
Tax Summary
| Tax Year | Estimated Market Value | Total Tax |
|---|---|---|
| Currently not available. | ||
Data powered by ATTOM Data Solutions. Copyright© 2025. Information deemed reliable but not guaranteed.
Schools
Schools nearby 108 S Minnesota Avenue
| Schools in attendance boundaries | Grades | Distance | Rating |
|---|---|---|---|
| Loading... | |||
| Schools nearby | Grades | Distance | Rating |
|---|---|---|---|
| Loading... | |||
Data powered by ATTOM Data Solutions. Copyright© 2025. Information deemed reliable but not guaranteed.
The schools shown represent both the assigned schools and schools by distance based on local school and district attendance boundaries. Attendance boundaries change based on various factors and proximity does not guarantee enrollment eligibility. Please consult your real estate agent and/or the school district to confirm the schools this property is zoned to attend. Information is deemed reliable but not guaranteed.
SchoolDigger ® Rating
The SchoolDigger rating system is a 1-5 scale with 5 as the highest rating. SchoolDigger ranks schools based on test scores supplied by each state's Department of Education. They calculate an average standard score by normalizing and averaging each school's test scores across all tests and grades.
Coming soon properties will soon be on the market, but are not yet available for showings.