110 Wall Street S Onamia, MN 56359
For Sale MLS# 6136801
20,071 sq ft Commercial
Details for 110 Wall Street S
MLS# 6136801
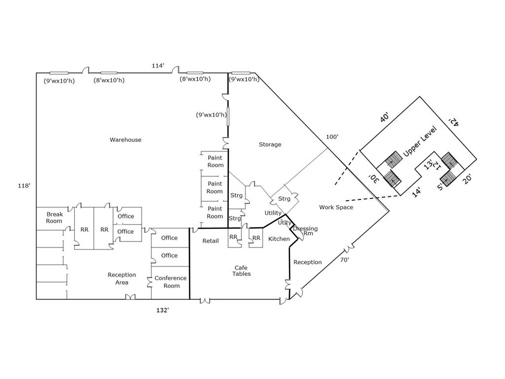
Description for 110 Wall Street S, Onamia, MN, 56359
Unique opportunity to own or lease a large building located along the Hwy 169 corridor in Onamia. Building adjoins Hardware Hank and is outfitted with open retail space, private offices, a restaurant space, storage space, a large warehouse plus 2 loading docks and 2 drive-in doors. Building can be used in it’s entirety or easily divided into separate sections of usage. Excellent opportunity for an owner/user to relocate and expand, or an investor to fill with tenants.
Listing Information
Property Type: Commercial, Industrial,Office,Retail/Shopping Center,Warehouse
Status: Active
Lot Size: 2.17 Acres
Square Feet: 20,071 sq ft
Year Built: 2005
Foundation: 18,903 sq ft
Garage: Yes
Subdivision: Trailside Center
Number Of Units Total: 1
Current Use: Business Service,Commercial,Industrial,Office,Other,Professional Service,Restaurant,Retail,Vacant,Warehouse
County: Mille Lacs
Days On Market: 1456
Construction Status: Previously Owned
School Information
District: 480 - Onamia
Interior Features
Accessibility: No Stairs External
Utilities
Water: City Water/Connected
Sewer: City Sewer/Connected
Other Utilities: Electric Common,Heating Common,Hot Water Common
Cooling: Central
Heating: Natural Gas, Forced Air
Exterior / Lot Features
Garage Spaces: 2
Open Parking: 27
Parking Description: Uncovered/Open, Garage Door Height - 9, Garage Door Width - 10
Exterior: Steel Siding, Stucco, Brick/Stone
Roof: Metal
Lot Dimensions: 330x198x71x192x98x415
Zoning: Business/Commercial
Additional Exterior/Lot Features: Overhead Doors, Irregular Lot, Land Inclusions - Building,Land,Leases, Road Frontage - City, Paved Streets, US Highway
Driving Directions
Just south of Mille Lacs Lake, at the Junction of Hwys 27 and 169 - West on Hwy 27 - South on Wall Street - Property is on the East
Financial Considerations
Tax/Property ID: 228500010
Tax Amount: 26616
Tax Year: 2025
HomeStead Description: Non-Homesteaded
A broker reciprocity listing courtesy: Close-Converse Commercial Prop
The data relating to real estate for sale on this web site comes in part from the Broker Reciprocity℠ Program of the Regional Multiple Listing Service of Minnesota, Inc. Real estate listings held by brokerage firms other than Edina Realty, Inc. are marked with the Broker Reciprocity℠ logo or the Broker Reciprocity℠ thumbnail and detailed information about them includes the name of the listing brokers. Edina Realty, Inc. is not a Multiple Listing Service (MLS), nor does it offer MLS access. This website is a service of Edina Realty, Inc., a broker Participant of the Regional Multiple Listing Service of Minnesota, Inc. IDX information is provided exclusively for consumers personal, non-commercial use and may not be used for any purpose other than to identify prospective properties consumers may be interested in purchasing. Open House information is subject to change without notice. Information deemed reliable but not guaranteed.
Copyright 2025 Regional Multiple Listing Service of Minnesota, Inc. All Rights Reserved.
Payment Calculator
Interest rate and annual percentage rate (APR) are based on current market conditions, are for informational purposes only, are subject to change without notice and may be subject to pricing add-ons related to property type, loan amount, loan-to-value, credit score and other variables. Estimated closing costs used in the APR calculation are assumed to be paid by the borrower at closing. If the closing costs are financed, the loan, APR and payment amounts will be higher. If the down payment is less than 20%, mortgage insurance may be required and could increase the monthly payment and APR. Contact us for details. Additional loan programs may be available. Accuracy is not guaranteed, and all products may not be available in all borrower's geographical areas and are based on their individual situation. This is not a credit decision or a commitment to lend.
Sales History & Tax Summary for 110 Wall Street S
Sales History
| Date | Price | Change |
|---|---|---|
| Currently not available. | ||
Tax Summary
| Tax Year | Estimated Market Value | Total Tax |
|---|---|---|
| Currently not available. | ||
Data powered by ATTOM Data Solutions. Copyright© 2025. Information deemed reliable but not guaranteed.
Schools
Schools nearby 110 Wall Street S
| Schools in attendance boundaries | Grades | Distance | Rating |
|---|---|---|---|
| Loading... | |||
| Schools nearby | Grades | Distance | Rating |
|---|---|---|---|
| Loading... | |||
Data powered by ATTOM Data Solutions. Copyright© 2025. Information deemed reliable but not guaranteed.
The schools shown represent both the assigned schools and schools by distance based on local school and district attendance boundaries. Attendance boundaries change based on various factors and proximity does not guarantee enrollment eligibility. Please consult your real estate agent and/or the school district to confirm the schools this property is zoned to attend. Information is deemed reliable but not guaranteed.
SchoolDigger ® Rating
The SchoolDigger rating system is a 1-5 scale with 5 as the highest rating. SchoolDigger ranks schools based on test scores supplied by each state's Department of Education. They calculate an average standard score by normalizing and averaging each school's test scores across all tests and grades.
Coming soon properties will soon be on the market, but are not yet available for showings.