$1,995,900
12291 Itec Park Drive Fort Myers, FL 33913
For Sale MLS# 225054202
Commercial
Details for 12291 Itec Park Drive
MLS# 225054202
Description for 12291 Itec Park Drive, Fort Myers, FL, 33913
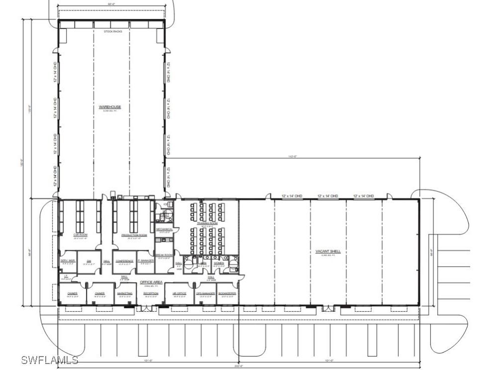
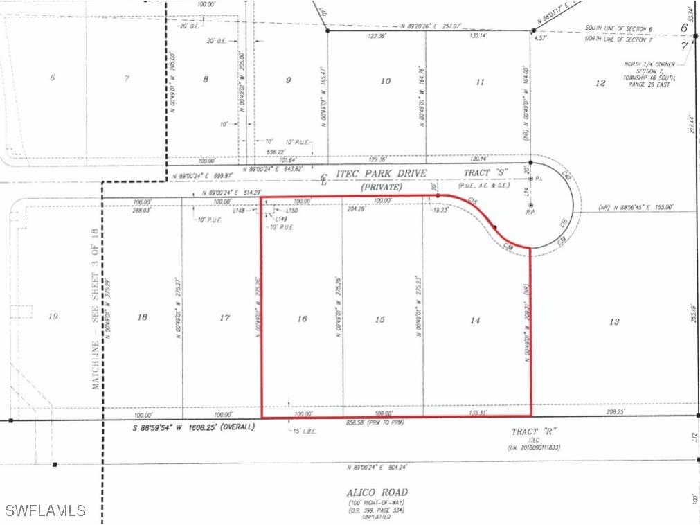
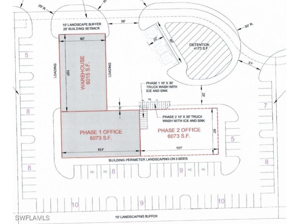
2.04± Acres on Alico Road in ITEC Park – Fully Entitled Commercial Site Shovel-Ready Land with Approved Development Order A prime 2.04± acre commercial land parcel located within the growing ITEC Park in Fort Myers, Florida. This rare opportunity features direct Alico Road frontage and is fully entitled with a Development Order already in place. ? **Development Order Approved (DO # DOS2022-00177)** ? Plans for one 6,015 SF warehouse and two 6,073 SF office buildings (total 18,161 SF) ? All engineering, site plans, renderings, and survey included ? Ready for permits – no delays This parcel is ideal for an owner/user, developer, or investor looking to build immediately in a high-demand industrial corridor. The rectangular layout offers excellent visibility and accessibility, with ample space for parking, stormwater management, and functional building design. ?? **Location Benefits:** * Fronts Alico Road in ITEC Park * Just 2.6 miles to I-75 (Exit 128) * Minutes to RSW International Airport and major Southwest Florida business hubs * Surrounded by established flex, warehouse, and light industrial development With its fully approved status, strategic location, and ready-to-develop condition, this property represents one of the most turnkey land offerings available in the Fort Myers market.
Listing Information
Property Type: Commercial, Commercial,Unimproved Land
Status: Active
Lot Size: 0.63 Acres
Subdivision: Not Applicable
Current Use: Commercial
County: Lee
Days On Market: 190
Utilities
Water: Public
Sewer: Public Sewer
Other Utilities: Cable Available,Electricity Available,Sewer Available,Underground Utilities,Water Available
Exterior / Lot Features
Zoning: MPD
Additional Exterior/Lot Features: Cul-de-Sac, Cleared, See Remarks, Multiple lots
Community Features
Community Features: Non-Gated, See Remarks
Association Amenities: Management, None
HOA Dues Include: Street Lights, Road Maintenance
Homeowners Association: Yes
HOA Dues: $3,540 / Annually
Driving Directions
I 75 exit 128 turn east to Innovation Lane turn left to ITEC Park DR turn right to property on right.
Financial Considerations
Terms: All Financing Considered,Cash
Tax/Property ID: 07-46-26-L1-10000.0160
Tax Amount: 2947.05
Tax Year: 2024
A broker reciprocity listing courtesy: Bartley Realty LLLP
Based on information provided by FGCMLS. Internet Data Exchange information is provided exclusively for consumers’ personal, non-commercial use, and such information may not be used for any purpose other than to identify prospective properties consumers may be interested in purchasing. This data is deemed reliable but is not guaranteed to be accurate by Edina Realty, Inc., or by the MLS. Edina Realty, Inc., is not a multiple listing service (MLS), nor does it offer MLS access.
Copyright 2025 FGCMLS. All Rights Reserved.
Payment Calculator
Interest rate and annual percentage rate (APR) are based on current market conditions, are for informational purposes only, are subject to change without notice and may be subject to pricing add-ons related to property type, loan amount, loan-to-value, credit score and other variables. Estimated closing costs used in the APR calculation are assumed to be paid by the borrower at closing. If the closing costs are financed, the loan, APR and payment amounts will be higher. If the down payment is less than 20%, mortgage insurance may be required and could increase the monthly payment and APR. Contact us for details. Additional loan programs may be available. Accuracy is not guaranteed, and all products may not be available in all borrower's geographical areas and are based on their individual situation. This is not a credit decision or a commitment to lend.
Sales History & Tax Summary for 12291 Itec Park Drive
Sales History
| Date | Price | Change |
|---|---|---|
| Currently not available. | ||
Tax Summary
| Tax Year | Estimated Market Value | Total Tax |
|---|---|---|
| Currently not available. | ||
Data powered by ATTOM Data Solutions. Copyright© 2025. Information deemed reliable but not guaranteed.
Schools
Schools nearby 12291 Itec Park Drive
| Schools in attendance boundaries | Grades | Distance | Rating |
|---|---|---|---|
| Loading... | |||
| Schools nearby | Grades | Distance | Rating |
|---|---|---|---|
| Loading... | |||
Data powered by ATTOM Data Solutions. Copyright© 2025. Information deemed reliable but not guaranteed.
The schools shown represent both the assigned schools and schools by distance based on local school and district attendance boundaries. Attendance boundaries change based on various factors and proximity does not guarantee enrollment eligibility. Please consult your real estate agent and/or the school district to confirm the schools this property is zoned to attend. Information is deemed reliable but not guaranteed.
SchoolDigger ® Rating
The SchoolDigger rating system is a 1-5 scale with 5 as the highest rating. SchoolDigger ranks schools based on test scores supplied by each state's Department of Education. They calculate an average standard score by normalizing and averaging each school's test scores across all tests and grades.
Coming soon properties will soon be on the market, but are not yet available for showings.