1314 Brack Street Kissimmee, FL 34744
Pending MLS# S5127256
Commercial
Details for 1314 Brack Street
MLS# S5127256
Description for 1314 Brack Street, Kissimmee, FL, 34744
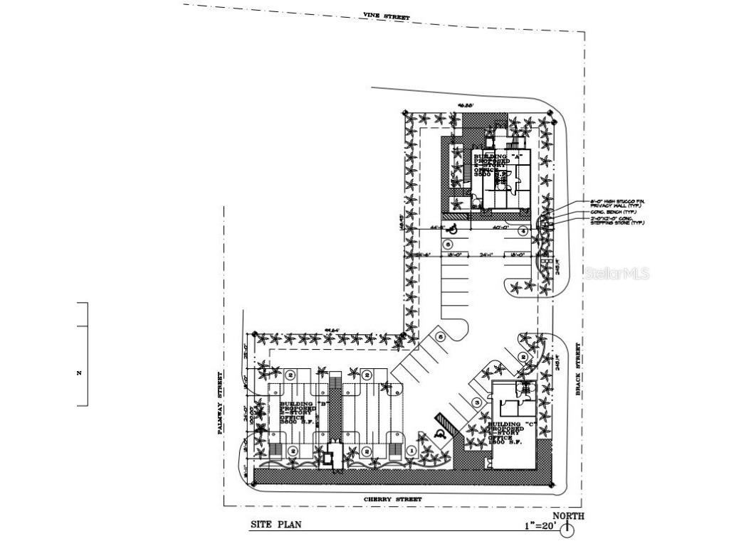
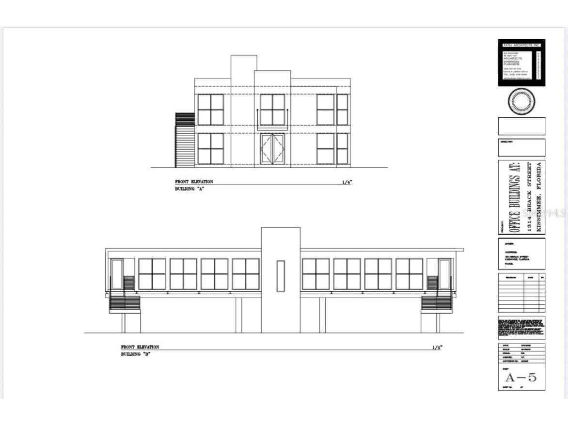
Under contract-accepting backup offers. 1. Prime Location with High Visibility Minutes from downtown Kissimmee and major highways (US-192 & Florida’s Turnpike). Over 80,000 cars a day pass through US-192, offering incredible visibility and branding potential. 2.Development Already in Motion Owner has already started the process for constructing three office buildings — saving the buyer time and upfront costs. Architectural documents available, making it easier to pick up and move forward. 3. Strong City Support & Incentives The City of Kissimmee is offering up to $1.5 million in Grants program funding to support new commercial development. These incentives significantly reduce the buyer’s capital risk and improve ROI. 4. All Environmental Tests Completed No red tape or hidden environmental hurdles — the property is clean and ready to build. Fast-tracks the permitting and construction process. 5. Versatile Zoning – Commercial Use Zoned for commercial use, suitable for offices, retail, or a mixed-use development. Perfect for investors, medical professionals, developers, or end-users. 6. Strong Local Growth Kissimmee is one of Central Florida’s fastest-growing cities, with a booming residential and tourism economy. The surrounding area continues to develop, driving long-term property value appreciation. 7. Limited Inventory – Rare Opportunity Vacant commercial land in this location is becoming increasingly scarce. Get in while it's available — opportunities like this don't last long.
Listing Information
Property Type: Commercial
Status: Pending
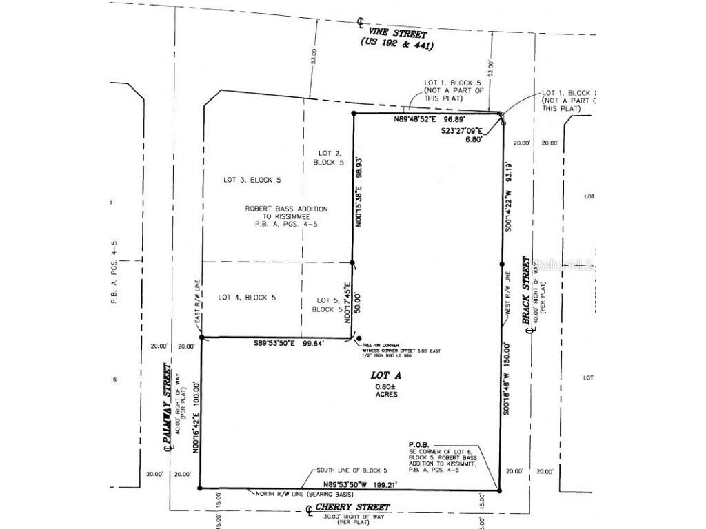
Lot Size: 0.80 Acres
Subdivision: Brack Street Lands
Current Use: Commercial
County: Osceola
Utilities
Other Utilities: Water Available,Sewer Not Available,Water Not Available
Exterior / Lot Features
Lot Dimensions: 100x250
Driving Directions
Head west on Partin Sett. Rd .4 mi, turn right onto US-192 W/US-441 N 4.1 Destination will be on the left before the OBT. cross of Chase Bank 192 Kissimmee
Financial Considerations
Terms: Cash,Conventional,Other
Tax/Property ID: 22-25-29-1066-0001-00A0
Tax Amount: 9157.29
Tax Year: 2024
A broker reciprocity listing courtesy: DEAL MAKERS REALTY TEAM CORP
Based on information provided by Stellar MLS as distributed by the MLS GRID. Information from the Internet Data Exchange is provided exclusively for consumers’ personal, non-commercial use, and such information may not be used for any purpose other than to identify prospective properties consumers may be interested in purchasing. This data is deemed reliable but is not guaranteed to be accurate by Edina Realty, Inc., or by the MLS. Edina Realty, Inc., is not a multiple listing service (MLS), nor does it offer MLS access.
Copyright 2026 Stellar MLS as distributed by the MLS GRID. All Rights Reserved.
Sales History & Tax Summary for 1314 Brack Street
Sales History
| Date | Price | |
|---|---|---|
| Currently not available. | ||
Tax Summary
| Tax Year | Estimated Market Value | Total Tax |
|---|---|---|
| Currently not available. | ||
Data powered by ATTOM Data Solutions. Copyright© 2026. Information deemed reliable but not guaranteed.
Schools
Schools nearby 1314 Brack Street
| Schools in attendance boundaries | Grades | Distance | Rating |
|---|---|---|---|
| Loading... | |||
| Schools nearby | Grades | Distance | Rating |
|---|---|---|---|
| Loading... | |||
Data powered by ATTOM Data Solutions. Copyright© 2026. Information deemed reliable but not guaranteed.
The schools shown represent both the assigned schools and schools by distance based on local school and district attendance boundaries. Attendance boundaries change based on various factors and proximity does not guarantee enrollment eligibility. Please consult your real estate agent and/or the school district to confirm the schools this property is zoned to attend. Information is deemed reliable but not guaranteed.
SchoolDigger ® Rating
The SchoolDigger rating system is a 1-5 scale with 5 as the highest rating. SchoolDigger ranks schools based on test scores supplied by each state's Department of Education. They calculate an average standard score by normalizing and averaging each school's test scores across all tests and grades.
Coming soon properties will soon be on the market, but are not yet available for showings.