$6,950,000
1535 E 7th Avenue Tampa, FL 33605
For Sale MLS# T3401081
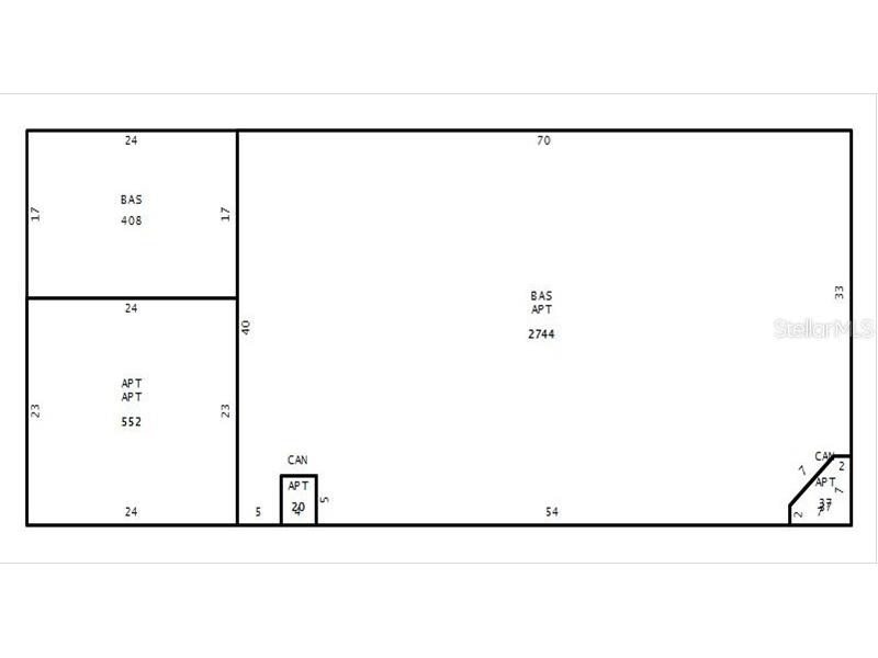
7,114 sq ft Commercial
Details for 1535 E 7th Avenue
MLS# T3401081
Description for 1535 E 7th Avenue, Tampa, FL, 33605
Florida Commercial Group presents a fantastic 7th Avenue purchase opportunity on the main drag of bustling Ybor City. This property offers limitless opportunities for a new owner seeking value-add real estate with a long-term multi-national anchor tenant. This purchase will include a 2-story- 7,114 SF building directly on 7th Avenue, 2 nearby parking lots one block south of the site on 16th Street and 6th & 5th Avenues- a rare find in Ybor City :: A modernized historic building that may be renovated to feature 2nd and 3rd story office/ retail :: Roof top bar or eatery may also be built out for additional income :: Current 7-Eleven tenant is on a 10 year NNN lease, call Broker for additional lease details :: Highest and Best Use: Convenience store with second story residential/ creative space, professional office, retail and or restaurant with balcony/ terrace :: Artists, Professionals or Consultants can do well here as occupying tenants :: Located at the intersection of 7th Avenue and 16th Street :: Minutes from Downtown Tampa, Channel District, Tampa River Walk, Hyde Park, Seminole Heights, Interstate 275, Interstate 4, Selmon Expressway and other major travel arteries :: Property sits 1 block south of the trolley line and is in walking distance of the Centro Ybor Trolley Station (#2) on 8th Avenue :: This area is exploding with brand new Commercial, Retail and Residential growth and is surrounded by countless development and redevelopment projects :: Neighboring businesses include: Hotel Haya, Hampton Inn and Suites, Centro Ybor, Hillsborough Community College, Ybor City Tap House, Truist Bank, Gasworx, Casa Marti, Casa Gomez, Casa Pedroso, Casa Bomberos, Tampa Bay Sun FC practice field and others etc… :: High-energy business and retail district that is frequented by local and regional visitors- a great place to invest, relocate or expand your business. Call today for additional property details.
Listing Information
Property Type: Commercial, Retail
Status: Active
Lot Size: 0.09 Acres
Square Feet: 7,114 sq ft
Year Built: 1908
Stories: 2 Story
Construction: Brick
Subdivision: Ybor City Blk Y
Foundation: Slab
County: Hillsborough
Days On Market: 1091
Utilities
Cooling: Central Air
Exterior / Lot Features
Lot Dimensions: 41x95
Driving Directions
From Interstate- 4: Take Ybor City Exit. Head south on 21st Street to 7th Ave. Turn right. Head west to 16th Street. Go through the intersection. Immediately to your left, arrive at property on the left at: 1535 E. 7th Avenue.
Financial Considerations
Tax/Property ID: A-18-29-19-50N-000046-00001.0
Tax Amount: 16165.08
Tax Year: 2021
A broker reciprocity listing courtesy: FLORIDA COMMERCIAL GROUP
Based on information provided by Stellar MLS as distributed by the MLS GRID. Information from the Internet Data Exchange is provided exclusively for consumers’ personal, non-commercial use, and such information may not be used for any purpose other than to identify prospective properties consumers may be interested in purchasing. This data is deemed reliable but is not guaranteed to be accurate by Edina Realty, Inc., or by the MLS. Edina Realty, Inc., is not a multiple listing service (MLS), nor does it offer MLS access.
Copyright 2025 Stellar MLS as distributed by the MLS GRID. All Rights Reserved.
Payment Calculator
Interest rate and annual percentage rate (APR) are based on current market conditions, are for informational purposes only, are subject to change without notice and may be subject to pricing add-ons related to property type, loan amount, loan-to-value, credit score and other variables. Estimated closing costs used in the APR calculation are assumed to be paid by the borrower at closing. If the closing costs are financed, the loan, APR and payment amounts will be higher. If the down payment is less than 20%, mortgage insurance may be required and could increase the monthly payment and APR. Contact us for details. Additional loan programs may be available. Accuracy is not guaranteed, and all products may not be available in all borrower's geographical areas and are based on their individual situation. This is not a credit decision or a commitment to lend.
Sales History & Tax Summary for 1535 E 7th Avenue
Sales History
| Date | Price | Change |
|---|---|---|
| Currently not available. | ||
Tax Summary
| Tax Year | Estimated Market Value | Total Tax |
|---|---|---|
| Currently not available. | ||
Data powered by ATTOM Data Solutions. Copyright© 2025. Information deemed reliable but not guaranteed.
Schools
Schools nearby 1535 E 7th Avenue
| Schools in attendance boundaries | Grades | Distance | Rating |
|---|---|---|---|
| Loading... | |||
| Schools nearby | Grades | Distance | Rating |
|---|---|---|---|
| Loading... | |||
Data powered by ATTOM Data Solutions. Copyright© 2025. Information deemed reliable but not guaranteed.
The schools shown represent both the assigned schools and schools by distance based on local school and district attendance boundaries. Attendance boundaries change based on various factors and proximity does not guarantee enrollment eligibility. Please consult your real estate agent and/or the school district to confirm the schools this property is zoned to attend. Information is deemed reliable but not guaranteed.
SchoolDigger ® Rating
The SchoolDigger rating system is a 1-5 scale with 5 as the highest rating. SchoolDigger ranks schools based on test scores supplied by each state's Department of Education. They calculate an average standard score by normalizing and averaging each school's test scores across all tests and grades.
Coming soon properties will soon be on the market, but are not yet available for showings.