17022 Cortez Boulevard Brooksville, FL 34601
For Sale MLS# W7862846
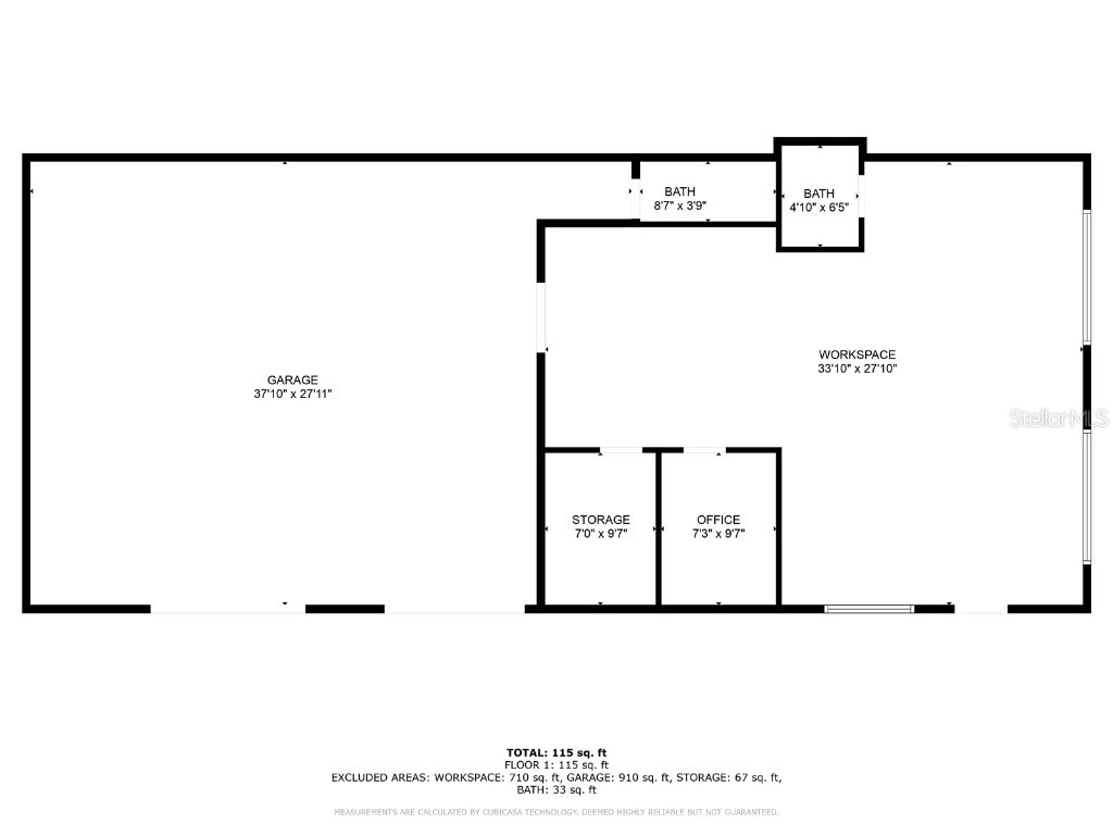
2,100 sq ft Commercial
Details for 17022 Cortez Boulevard
MLS# W7862846
Description for 17022 Cortez Boulevard, Brooksville, FL, 34601
Located on a busy divided highway, 2,100 square feet of space, situated on a spacious .46-acre lot, the property features a fenced yard, along with ample parking space for up to 12 vehicles. One of the standout features of this opportunity is the option for owner financing. The MP Cycle Business is available separately for purchase.
Listing Information
Property Type: Commercial, Business
Status: Active
Lot Size: 0.47 Acres
Square Feet: 2,100 sq ft
Year Built: 1985
Stories: 1 Story
Construction: Metal Frame,Metal Siding
Subdivision: Potterfield Garden Ac - H
Foundation: Slab
County: Hernando
Interior Features
Additional Interior Features: Storage
Utilities
Water: Well
Sewer: Septic Tank
Cooling: Central Air
Exterior / Lot Features
Parking Description: Parking Space(s)
Roof: Metal
Additional Exterior/Lot Features: Landscaped
Community Features
Security Features: Fire Alarm, Closed Circuit Camera(s), Security System Owned
Driving Directions
From Mariner Blvd turn east on Hwy 50 (Cortez Blvd), pass Suncoast Pkwy, approx one mile, Property is on Right.
Financial Considerations
Terms: Cash,Conventional,Owner May Carry
Tax/Property ID: R25-222-18-3100-0000-1220
Tax Amount: 4415
Tax Year: 2024
A broker reciprocity listing courtesy: KW REALTY ELITE PARTNERS
Based on information provided by Stellar MLS as distributed by the MLS GRID. Information from the Internet Data Exchange is provided exclusively for consumers’ personal, non-commercial use, and such information may not be used for any purpose other than to identify prospective properties consumers may be interested in purchasing. This data is deemed reliable but is not guaranteed to be accurate by Edina Realty, Inc., or by the MLS. Edina Realty, Inc., is not a multiple listing service (MLS), nor does it offer MLS access.
Copyright 2026 Stellar MLS as distributed by the MLS GRID. All Rights Reserved.
Payment Calculator
Interest rate and annual percentage rate (APR) are based on current market conditions, are for informational purposes only, are subject to change without notice and may be subject to pricing add-ons related to property type, loan amount, loan-to-value, credit score and other variables. Estimated closing costs used in the APR calculation are assumed to be paid by the borrower at closing. If the closing costs are financed, the loan, APR and payment amounts will be higher. If the down payment is less than 20%, mortgage insurance may be required and could increase the monthly payment and APR. Contact us for details. Additional loan programs may be available. Accuracy is not guaranteed, and all products may not be available in all borrower's geographical areas and are based on their individual situation. This is not a credit decision or a commitment to lend.
Sales History & Tax Summary for 17022 Cortez Boulevard
Sales History
| Date | Price | |
|---|---|---|
| Currently not available. | ||
Tax Summary
| Tax Year | Estimated Market Value | Total Tax |
|---|---|---|
| Currently not available. | ||
Data powered by ATTOM Data Solutions. Copyright© 2026. Information deemed reliable but not guaranteed.
Schools
Schools nearby 17022 Cortez Boulevard
| Schools in attendance boundaries | Grades | Distance | Rating |
|---|---|---|---|
| Loading... | |||
| Schools nearby | Grades | Distance | Rating |
|---|---|---|---|
| Loading... | |||
Data powered by ATTOM Data Solutions. Copyright© 2026. Information deemed reliable but not guaranteed.
The schools shown represent both the assigned schools and schools by distance based on local school and district attendance boundaries. Attendance boundaries change based on various factors and proximity does not guarantee enrollment eligibility. Please consult your real estate agent and/or the school district to confirm the schools this property is zoned to attend. Information is deemed reliable but not guaranteed.
SchoolDigger ® Rating
The SchoolDigger rating system is a 1-5 scale with 5 as the highest rating. SchoolDigger ranks schools based on test scores supplied by each state's Department of Education. They calculate an average standard score by normalizing and averaging each school's test scores across all tests and grades.
Coming soon properties will soon be on the market, but are not yet available for showings.