$385,000
1813 & 1819 Wilson Street NE Menomonie, WI 54751
For Sale MLS# 7010339
2,209 sq ft Commercial
Details for 1813 & 1819 Wilson Street NE
MLS# 7010339
Description for 1813 & 1819 Wilson Street NE, Menomonie, WI, 54751
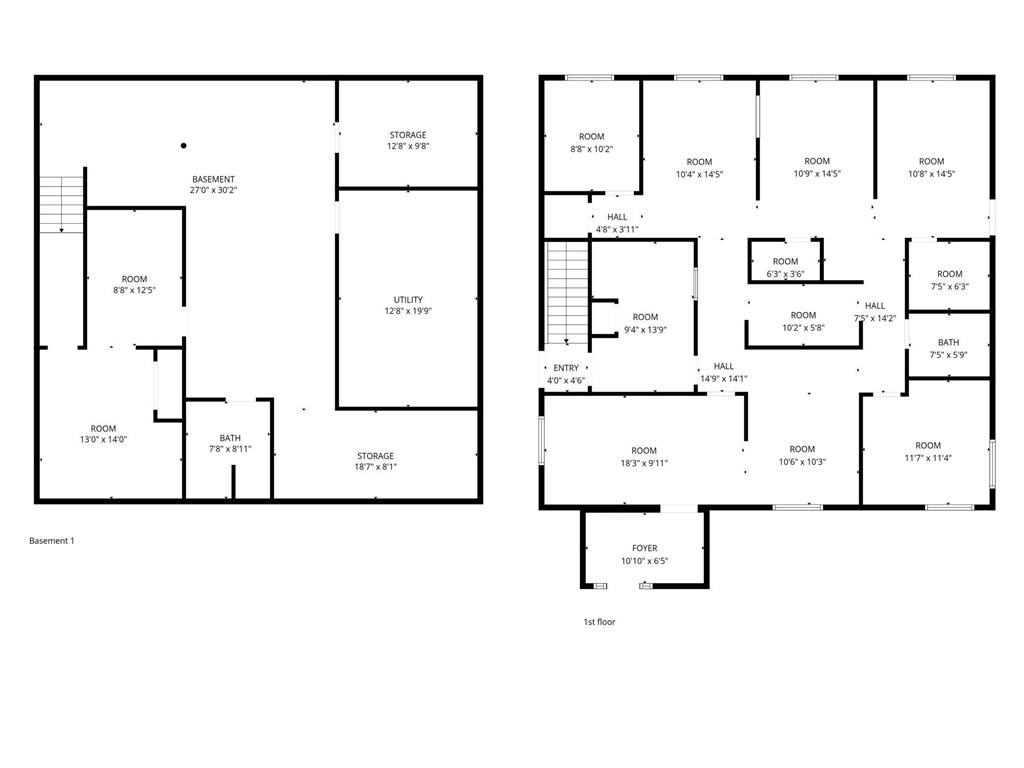
Quality office building for sale in North Menomonie ideal for a dental clinic, medical facility, chiropractic office, counseling location, day care, yoga studio, accounting or law office. Spacious waiting area, great reception space, numerous sinks throughout the building, nice break area downstairs, ample parking, abundance of storage, and more! Extra lot to the north included in the sale for future expansion or play area if chosen for a day care! Specific floor plan uploaded for layout detail. Fast closing possible. Formerly used as a dental clinic. Zoned B2.
Listing Information
Property Type: Commercial, Office
Status: Active
Bathrooms: 2
Lot Size: 0.66 Acres
Square Feet: 2,209 sq ft
Year Built: 1997
Foundation: 1,848 sq ft
Stories: 1 Story
Subdivision: 1st Bk & Trust Business Development Plat Lot 8 & 9
Number Of Units Total: 1
Current Use: Office,Professional Service
County: Dunn
Days On Market: 99
Construction Status: Previously Owned
School Information
District: 3444 - Menomonie Area
Interior Features
Flooring: Carpet,Vinyl/Linoleum
Basement: Full, Partial Finished
Utilities
Water: City Water/Connected
Sewer: City Sewer/Connected
Other Utilities: Electric Separate
Cooling: Central
Heating: Forced Air, Natural Gas
Exterior / Lot Features
Open Parking: 21
Parking Description: Driveway - Asphalt
Exterior: Vinyl
Lot Dimensions: 1
Zoning: Business/Commercial
Additional Exterior/Lot Features: Land Inclusions - Building,Land, Road Frontage - City
Driving Directions
I-94 (Exit 41) to South on Hwy 25 to East on Oak Street, to North on Wilson Street to properties on the left.
Financial Considerations
Tax/Property ID: 1725122813143400063
Tax Amount: 7063.2
Tax Year: 2025
HomeStead Description: Non-Homesteaded
A broker reciprocity listing courtesy: Rassbach Realty LLC
The data relating to real estate for sale on this web site comes in part from the Broker Reciprocity℠ Program of the Regional Multiple Listing Service of Minnesota, Inc. Real estate listings held by brokerage firms other than Edina Realty, Inc. are marked with the Broker Reciprocity℠ logo or the Broker Reciprocity℠ thumbnail and detailed information about them includes the name of the listing brokers. Edina Realty, Inc. is not a Multiple Listing Service (MLS), nor does it offer MLS access. This website is a service of Edina Realty, Inc., a broker Participant of the Regional Multiple Listing Service of Minnesota, Inc. IDX information is provided exclusively for consumers personal, non-commercial use and may not be used for any purpose other than to identify prospective properties consumers may be interested in purchasing. Open House information is subject to change without notice. Information deemed reliable but not guaranteed.
Copyright 2026 Regional Multiple Listing Service of Minnesota, Inc. All Rights Reserved.
Payment Calculator
Interest rate and annual percentage rate (APR) are based on current market conditions, are for informational purposes only, are subject to change without notice and may be subject to pricing add-ons related to property type, loan amount, loan-to-value, credit score and other variables. Estimated closing costs used in the APR calculation are assumed to be paid by the borrower at closing. If the closing costs are financed, the loan, APR and payment amounts will be higher. If the down payment is less than 20%, mortgage insurance may be required and could increase the monthly payment and APR. Contact us for details. Additional loan programs may be available. Accuracy is not guaranteed, and all products may not be available in all borrower's geographical areas and are based on their individual situation. This is not a credit decision or a commitment to lend.
Sales History & Tax Summary for 1813 & 1819 Wilson Street NE
Sales History
| Date | Price | |
|---|---|---|
| Currently not available. | ||
Tax Summary
| Tax Year | Estimated Market Value | Total Tax |
|---|---|---|
| Currently not available. | ||
Data powered by ATTOM Data Solutions. Copyright© 2026. Information deemed reliable but not guaranteed.
Schools
Schools nearby 1813 & 1819 Wilson Street NE
| Schools in attendance boundaries | Grades | Distance | Rating |
|---|---|---|---|
| Loading... | |||
| Schools nearby | Grades | Distance | Rating |
|---|---|---|---|
| Loading... | |||
Data powered by ATTOM Data Solutions. Copyright© 2026. Information deemed reliable but not guaranteed.
The schools shown represent both the assigned schools and schools by distance based on local school and district attendance boundaries. Attendance boundaries change based on various factors and proximity does not guarantee enrollment eligibility. Please consult your real estate agent and/or the school district to confirm the schools this property is zoned to attend. Information is deemed reliable but not guaranteed.
SchoolDigger ® Rating
The SchoolDigger rating system is a 1-5 scale with 5 as the highest rating. SchoolDigger ranks schools based on test scores supplied by each state's Department of Education. They calculate an average standard score by normalizing and averaging each school's test scores across all tests and grades.
Coming soon properties will soon be on the market, but are not yet available for showings.