1821 Us Highway 441 Leesburg, FL 34748
For Sale MLS# G5092943
1,242 sq ft Commercial
Details for 1821 Us Highway 441
MLS# G5092943
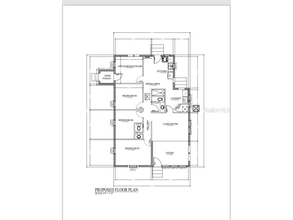
Description for 1821 Us Highway 441, Leesburg, FL, 34748
Under Construction. ARE YOU LOOKING A PLACE TO BUILD YOUR BUSINESS WITH HIGHWAY FRONTAGE AND GREAT PARKING!! LOOK AT THIS OPPORTUNITY! YOU CAN MAKE THIS ONE JUST THE WAY, YOU WANT IT!! This versatile 1,242 sq. ft. commercial building on a .27-acre lot offers a rare opportunity to create your ideal business space in a prime location just off Highway 441, with additional access from Old Tavares Road. Perfect for a range of uses including professional offices, medical practices, AC retail, contractor storage yard, warehouse, or other multi-use businesses. The interior layout includes four private offices, two restrooms, a welcoming lobby, and a break room. Plumbing and electrical have already been completed, and the space is ready for you to bring your vision to life. With ample parking, excellent visibility, and flexible potential, this property is ready for you to make it your own and customize it to suit your unique needs.
Listing Information
Property Type: Commercial, Mixed Use
Status: Active
Lot Size: 0.27 Acres
Square Feet: 1,242 sq ft
Year Built: 1950
Stories: 1 Story
Construction: Block,Stucco
Construction Display: New Construction
Foundation: Other
County: Lake
Construction Status: Under Construction
Interior Features
Flooring: Other
Utilities
Water: Public
Sewer: Public Sewer
Other Utilities: Electricity Available,Phone Available,Underground Utilities,Water Connected
Cooling: Central Air
Heating: Central
Exterior / Lot Features
Parking Description: Parking Space(s)
Lot Dimensions: 75x180
Driving Directions
From Leesburg go 441 toward Tavares property on right after gator and before Race trac across from Dirty South Saloon (the old Fountain place)
Financial Considerations
Terms: Cash,Conventional,Other
Tax/Property ID: 19-19-25-0004-000-04500
Tax Amount: 2003.69
Tax Year: 2024
A broker reciprocity listing courtesy: DOWN HOME REALTY, LLLP
Based on information provided by Stellar MLS as distributed by the MLS GRID. Information from the Internet Data Exchange is provided exclusively for consumers’ personal, non-commercial use, and such information may not be used for any purpose other than to identify prospective properties consumers may be interested in purchasing. This data is deemed reliable but is not guaranteed to be accurate by Edina Realty, Inc., or by the MLS. Edina Realty, Inc., is not a multiple listing service (MLS), nor does it offer MLS access.
Copyright 2025 Stellar MLS as distributed by the MLS GRID. All Rights Reserved.
Payment Calculator
Interest rate and annual percentage rate (APR) are based on current market conditions, are for informational purposes only, are subject to change without notice and may be subject to pricing add-ons related to property type, loan amount, loan-to-value, credit score and other variables. Estimated closing costs used in the APR calculation are assumed to be paid by the borrower at closing. If the closing costs are financed, the loan, APR and payment amounts will be higher. If the down payment is less than 20%, mortgage insurance may be required and could increase the monthly payment and APR. Contact us for details. Additional loan programs may be available. Accuracy is not guaranteed, and all products may not be available in all borrower's geographical areas and are based on their individual situation. This is not a credit decision or a commitment to lend.
Sales History & Tax Summary for 1821 Us Highway 441
Sales History
| Date | Price | Change |
|---|---|---|
| Currently not available. | ||
Tax Summary
| Tax Year | Estimated Market Value | Total Tax |
|---|---|---|
| Currently not available. | ||
Data powered by ATTOM Data Solutions. Copyright© 2025. Information deemed reliable but not guaranteed.
Schools
Schools nearby 1821 Us Highway 441
| Schools in attendance boundaries | Grades | Distance | Rating |
|---|---|---|---|
| Loading... | |||
| Schools nearby | Grades | Distance | Rating |
|---|---|---|---|
| Loading... | |||
Data powered by ATTOM Data Solutions. Copyright© 2025. Information deemed reliable but not guaranteed.
The schools shown represent both the assigned schools and schools by distance based on local school and district attendance boundaries. Attendance boundaries change based on various factors and proximity does not guarantee enrollment eligibility. Please consult your real estate agent and/or the school district to confirm the schools this property is zoned to attend. Information is deemed reliable but not guaranteed.
SchoolDigger ® Rating
The SchoolDigger rating system is a 1-5 scale with 5 as the highest rating. SchoolDigger ranks schools based on test scores supplied by each state's Department of Education. They calculate an average standard score by normalizing and averaging each school's test scores across all tests and grades.
Coming soon properties will soon be on the market, but are not yet available for showings.