$3,999,999
189 S Orange Avenue #1900-1970 Orlando, FL 32801
For Sale MLS# O6356122
19,032 sq ft Commercial
Details for 189 S Orange Avenue #1900-1970
MLS# O6356122
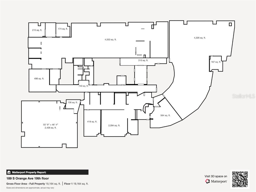
Description for 189 S Orange Avenue #1900-1970, Orlando, FL, 32801
Unlock a rare opportunity to occupy or invest in a full floor within one of Downtown Orlando’s most recognizable Class A office towers. The 19th floor at The Plaza South Tower offers ±19,032 rentable square feet (±16,548 usable) across six modern suites (1900–1970 S), with options for full-floor occupancy or divisible configurations starting around ±2,500 RSF. Highlights: *Premium Class A finishes with floor-to-ceiling glass *Multiple private balconies with skyline views *Efficient central-core layout for flexible demising *Modern elevator lobby and secure access *Covered parking available onsite *Walkable to Amway Center, Kia Center, and downtown dining Perfect for corporate headquarters, professional firms, or creative offices seeking a premier downtown address with high visibility and exceptional amenities.
Listing Information
Property Type: Commercial, Office
Status: Active
Lot Size: 0.44 Acres
Square Feet: 19,032 sq ft
Year Built: 2007
Construction: Concrete
Construction Display: New Construction
Subdivision: Plaza South Tower Coml Condo
Foundation: Pillar/Post/Pier
County: Orange
Construction Status: New Construction
Utilities
Cooling: Central Air
Heating: Electric
Exterior / Lot Features
Roof: Membrane
Driving Directions
Take I-4 E and exit at South Street (Exit 82B). Turn left onto South Street, then right onto S Orange Avenue. The building at 189 S Orange Ave will be on your left, with the office located on the 19th floor. Parking is available nearby at SunTrust Plaza Garage or Central Blvd Garage.
Financial Considerations
Terms: Cash,Conventional
Tax/Property ID: 26-22-29-7157-19-000
Tax Amount: 10386.28
Tax Year: 2024
A broker reciprocity listing courtesy: ALPHA EQUITY REALTY & MANAGEMENT INC
Based on information provided by Stellar MLS as distributed by the MLS GRID. Information from the Internet Data Exchange is provided exclusively for consumers’ personal, non-commercial use, and such information may not be used for any purpose other than to identify prospective properties consumers may be interested in purchasing. This data is deemed reliable but is not guaranteed to be accurate by Edina Realty, Inc., or by the MLS. Edina Realty, Inc., is not a multiple listing service (MLS), nor does it offer MLS access.
Copyright 2025 Stellar MLS as distributed by the MLS GRID. All Rights Reserved.
Payment Calculator
Interest rate and annual percentage rate (APR) are based on current market conditions, are for informational purposes only, are subject to change without notice and may be subject to pricing add-ons related to property type, loan amount, loan-to-value, credit score and other variables. Estimated closing costs used in the APR calculation are assumed to be paid by the borrower at closing. If the closing costs are financed, the loan, APR and payment amounts will be higher. If the down payment is less than 20%, mortgage insurance may be required and could increase the monthly payment and APR. Contact us for details. Additional loan programs may be available. Accuracy is not guaranteed, and all products may not be available in all borrower's geographical areas and are based on their individual situation. This is not a credit decision or a commitment to lend.
Sales History & Tax Summary for 189 S Orange Avenue #1900-1970
Sales History
| Date | Price | Change |
|---|---|---|
| Currently not available. | ||
Tax Summary
| Tax Year | Estimated Market Value | Total Tax |
|---|---|---|
| Currently not available. | ||
Data powered by ATTOM Data Solutions. Copyright© 2025. Information deemed reliable but not guaranteed.
Schools
Schools nearby 189 S Orange Avenue #1900-1970
| Schools in attendance boundaries | Grades | Distance | Rating |
|---|---|---|---|
| Loading... | |||
| Schools nearby | Grades | Distance | Rating |
|---|---|---|---|
| Loading... | |||
Data powered by ATTOM Data Solutions. Copyright© 2025. Information deemed reliable but not guaranteed.
The schools shown represent both the assigned schools and schools by distance based on local school and district attendance boundaries. Attendance boundaries change based on various factors and proximity does not guarantee enrollment eligibility. Please consult your real estate agent and/or the school district to confirm the schools this property is zoned to attend. Information is deemed reliable but not guaranteed.
SchoolDigger ® Rating
The SchoolDigger rating system is a 1-5 scale with 5 as the highest rating. SchoolDigger ranks schools based on test scores supplied by each state's Department of Education. They calculate an average standard score by normalizing and averaging each school's test scores across all tests and grades.
Coming soon properties will soon be on the market, but are not yet available for showings.