$695,500
1977 Dundee Drive Winter Park, FL 32792
For Sale MLS# O6341378
1,656 sq ft Commercial
Details for 1977 Dundee Drive
MLS# O6341378
Description for 1977 Dundee Drive, Winter Park, FL, 32792
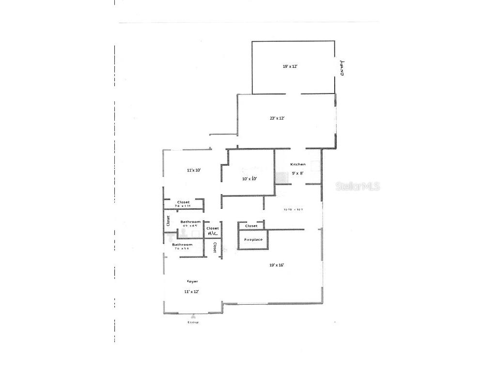
Fantastic location in the heart of the City of Winter Park. This free standing Professional Office building, zoned O-2, sits on a spacious corner lot with ample parking both on-site and along the street. The building's current layout features five office areas, plus a large front entry that can be divided, two private entrances, two baths, a small kitchen, original hardwood floors, and fenced in backyard. Nestled within a charming two-block district of small business offices - including medical, financial, and fitness that are surrounded by highly desirable residential neighborhoods. Walking distance to Advent Health, restaurants, shops,and Ward Park-a 66.4 acre sports complex with the Loch Lomond Trail. Rollins College and popular Park Avenue are also just minutes away.
Listing Information
Property Type: Commercial, Office
Status: Active
Lot Size: 0.19 Acres
Square Feet: 1,656 sq ft
Year Built: 1955
Construction: Block,Wood Frame
Subdivision: Aloma
Foundation: Crawlspace,Slab
County: Orange
Interior Features
Appliances: Refrigerator
Flooring: Carpet,Other,Tile
Basement: Crawl Space
Accessibility: Accessible Entrance
Utilities
Water: Public
Sewer: Septic Tank
Other Utilities: Municipal Utilities,Water Connected
Cooling: Central Air
Heating: Central
Exterior / Lot Features
Parking Description: Parking Space(s)
Roof: Shingle
Additional Exterior/Lot Features: Corner Lot, Landscaped, City Lot
Community Features
Security Features: Security System, Smoke Detector(s)
Driving Directions
FROM LAKEMONT AND ALOMA, SOUTH ON LAKEMONT LEFT ON DUNDEE, OFFICE IS ON THE LEFT.
Financial Considerations
Terms: Cash,Conventional
Tax/Property ID: 09-22-30-0120-04-121
Tax Amount: 8736
Tax Year: 2024
A broker reciprocity listing courtesy: HOMEVEST REALTY
Based on information provided by Stellar MLS as distributed by the MLS GRID. Information from the Internet Data Exchange is provided exclusively for consumers’ personal, non-commercial use, and such information may not be used for any purpose other than to identify prospective properties consumers may be interested in purchasing. This data is deemed reliable but is not guaranteed to be accurate by Edina Realty, Inc., or by the MLS. Edina Realty, Inc., is not a multiple listing service (MLS), nor does it offer MLS access.
Copyright 2025 Stellar MLS as distributed by the MLS GRID. All Rights Reserved.
Payment Calculator
Interest rate and annual percentage rate (APR) are based on current market conditions, are for informational purposes only, are subject to change without notice and may be subject to pricing add-ons related to property type, loan amount, loan-to-value, credit score and other variables. Estimated closing costs used in the APR calculation are assumed to be paid by the borrower at closing. If the closing costs are financed, the loan, APR and payment amounts will be higher. If the down payment is less than 20%, mortgage insurance may be required and could increase the monthly payment and APR. Contact us for details. Additional loan programs may be available. Accuracy is not guaranteed, and all products may not be available in all borrower's geographical areas and are based on their individual situation. This is not a credit decision or a commitment to lend.
Sales History & Tax Summary for 1977 Dundee Drive
Sales History
| Date | Price | Change |
|---|---|---|
| Currently not available. | ||
Tax Summary
| Tax Year | Estimated Market Value | Total Tax |
|---|---|---|
| Currently not available. | ||
Data powered by ATTOM Data Solutions. Copyright© 2025. Information deemed reliable but not guaranteed.
Schools
Schools nearby 1977 Dundee Drive
| Schools in attendance boundaries | Grades | Distance | Rating |
|---|---|---|---|
| Loading... | |||
| Schools nearby | Grades | Distance | Rating |
|---|---|---|---|
| Loading... | |||
Data powered by ATTOM Data Solutions. Copyright© 2025. Information deemed reliable but not guaranteed.
The schools shown represent both the assigned schools and schools by distance based on local school and district attendance boundaries. Attendance boundaries change based on various factors and proximity does not guarantee enrollment eligibility. Please consult your real estate agent and/or the school district to confirm the schools this property is zoned to attend. Information is deemed reliable but not guaranteed.
SchoolDigger ® Rating
The SchoolDigger rating system is a 1-5 scale with 5 as the highest rating. SchoolDigger ranks schools based on test scores supplied by each state's Department of Education. They calculate an average standard score by normalizing and averaging each school's test scores across all tests and grades.
Coming soon properties will soon be on the market, but are not yet available for showings.