204 Magnolia Street New Smyrna Beach, FL 32168
For Sale MLS# V4944223
4,422 sq ft Commercial
Details for 204 Magnolia Street
MLS# V4944223
Description for 204 Magnolia Street, New Smyrna Beach, FL, 32168
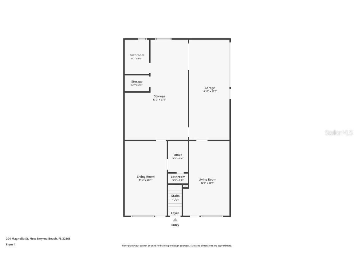
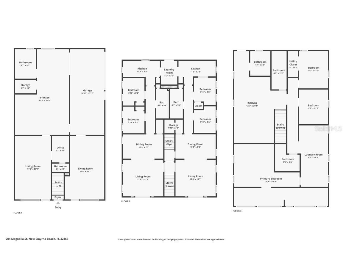
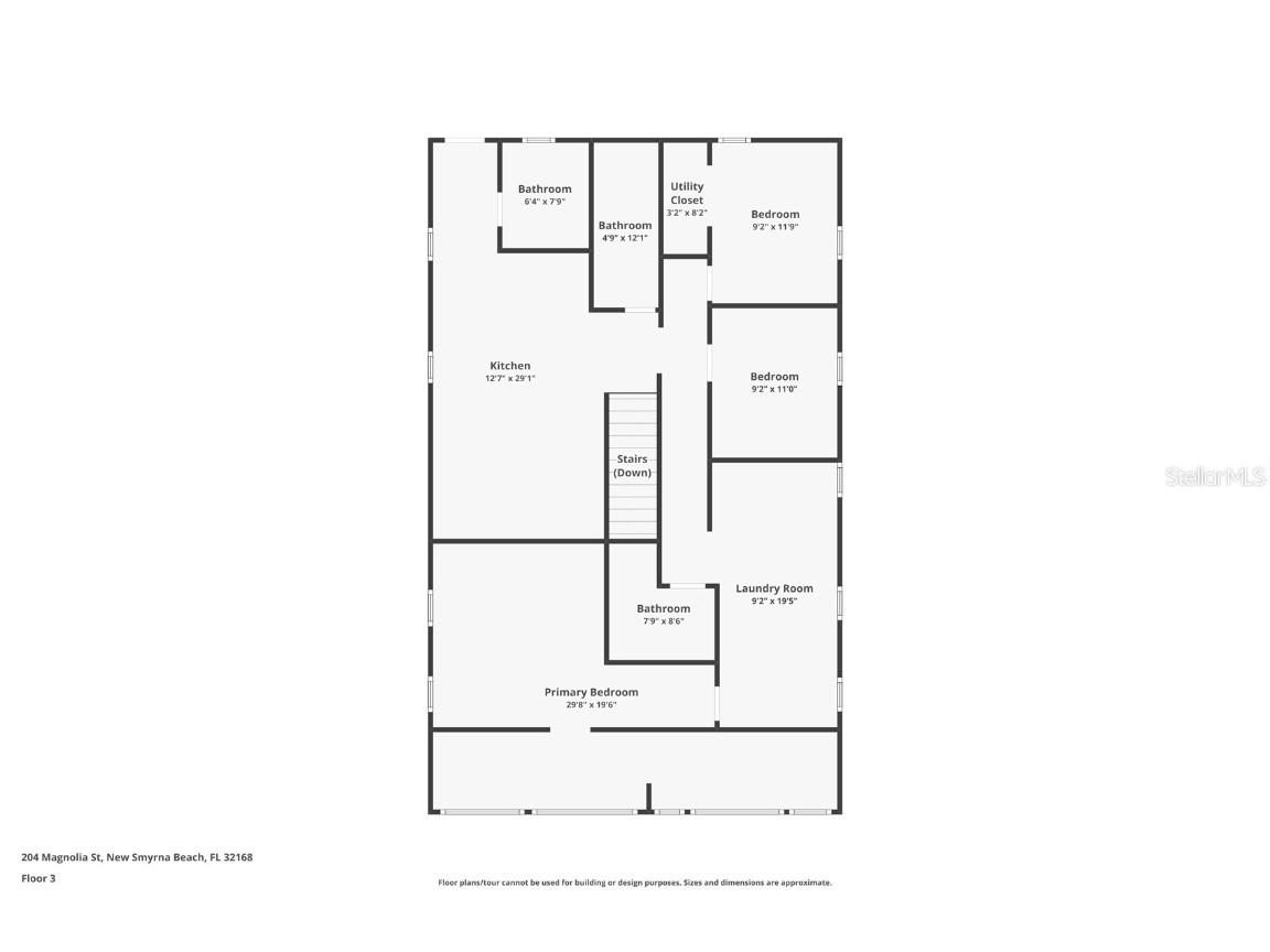
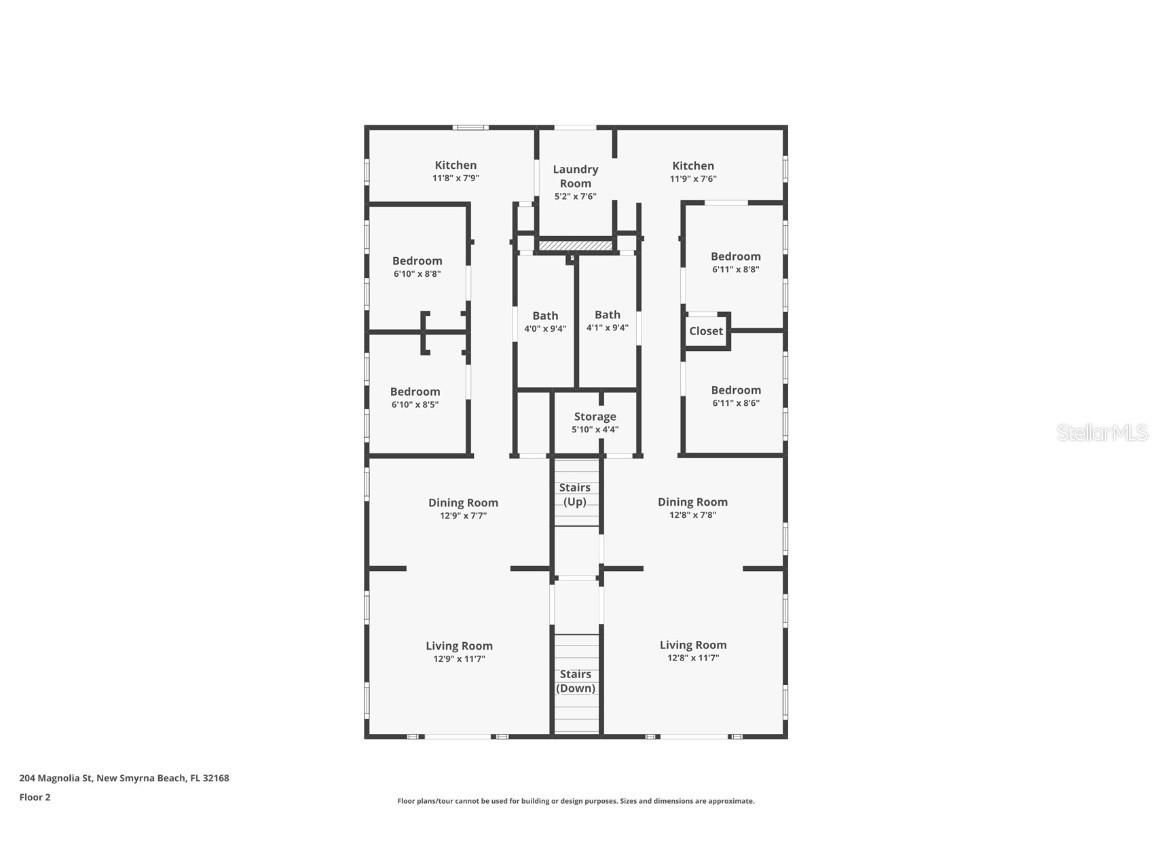
Unique opportunity in the heart of the Canal Street Historic District! This 6,753 sq ft, three-story mixed-use property offers the ultimate flexibility for investors, entrepreneurs, or creative visionaries. Zoned Mixed Use and located steps from New Smyrna Beach’s vibrant dining, shopping, and arts scene, this property blends history, location, and income potential. The second floor features existing apartments ideal for short- or long-term rentals (check with the municipality for restrictions). The third floor offers versatile flex space — perfect for a private event venue, large residential loft, or an inspiring art studio framed by exposed brick and wooden beams. The first floor provides prime commercial frontage visible from Canal Street, with original wood floors and industrial-style charm that set the stage for retail, dining, or creative businesses. The included rear lot provides valuable additional space, ideal for a landscaped courtyard, parking, or future expansion. Enjoy a premier location just blocks from the Intracoastal Waterway, where waterfront parks, marinas, and boating activities are at your doorstep, and only a short drive to New Smyrna Beach’s famous sandy shoreline. Currently mid-renovation, the property is ready for your finishing touches. Whether you choose to live and work from the same address, lease the residential units, rent all or part of the commercial space, or bring a fresh concept to life, this historic building is truly a blank canvas in one of Florida’s most charming coastal districts.
Listing Information
Property Type: Commercial, Mixed Use
Status: Active
Lot Size: 0.22 Acres
Square Feet: 4,422 sq ft
Year Built: 1927
Stories: 3 Story
Construction: Brick
Subdivision: Andrews New Smyrna
Foundation: Slab
County: Volusia
Utilities
Cooling: Other
Driving Directions
From Canal Street South on Magnolia
Financial Considerations
Terms: Cash,Other
Tax/Property ID: 41-17-34-38-09-0911
Tax Amount: 18281.32
Tax Year: 2024
A broker reciprocity listing courtesy: GLORY INTL. REAL ESTATE CO
Based on information provided by Stellar MLS as distributed by the MLS GRID. Information from the Internet Data Exchange is provided exclusively for consumers’ personal, non-commercial use, and such information may not be used for any purpose other than to identify prospective properties consumers may be interested in purchasing. This data is deemed reliable but is not guaranteed to be accurate by Edina Realty, Inc., or by the MLS. Edina Realty, Inc., is not a multiple listing service (MLS), nor does it offer MLS access.
Copyright 2025 Stellar MLS as distributed by the MLS GRID. All Rights Reserved.
Payment Calculator
Interest rate and annual percentage rate (APR) are based on current market conditions, are for informational purposes only, are subject to change without notice and may be subject to pricing add-ons related to property type, loan amount, loan-to-value, credit score and other variables. Estimated closing costs used in the APR calculation are assumed to be paid by the borrower at closing. If the closing costs are financed, the loan, APR and payment amounts will be higher. If the down payment is less than 20%, mortgage insurance may be required and could increase the monthly payment and APR. Contact us for details. Additional loan programs may be available. Accuracy is not guaranteed, and all products may not be available in all borrower's geographical areas and are based on their individual situation. This is not a credit decision or a commitment to lend.
Sales History & Tax Summary for 204 Magnolia Street
Sales History
| Date | Price | Change |
|---|---|---|
| Currently not available. | ||
Tax Summary
| Tax Year | Estimated Market Value | Total Tax |
|---|---|---|
| Currently not available. | ||
Data powered by ATTOM Data Solutions. Copyright© 2025. Information deemed reliable but not guaranteed.
Schools
Schools nearby 204 Magnolia Street
| Schools in attendance boundaries | Grades | Distance | Rating |
|---|---|---|---|
| Loading... | |||
| Schools nearby | Grades | Distance | Rating |
|---|---|---|---|
| Loading... | |||
Data powered by ATTOM Data Solutions. Copyright© 2025. Information deemed reliable but not guaranteed.
The schools shown represent both the assigned schools and schools by distance based on local school and district attendance boundaries. Attendance boundaries change based on various factors and proximity does not guarantee enrollment eligibility. Please consult your real estate agent and/or the school district to confirm the schools this property is zoned to attend. Information is deemed reliable but not guaranteed.
SchoolDigger ® Rating
The SchoolDigger rating system is a 1-5 scale with 5 as the highest rating. SchoolDigger ranks schools based on test scores supplied by each state's Department of Education. They calculate an average standard score by normalizing and averaging each school's test scores across all tests and grades.
Coming soon properties will soon be on the market, but are not yet available for showings.