$1,350,000
2103 N Howard Avenue Tampa, FL 33607
For Sale MLS# TB8301880
Commercial
Details for 2103 N Howard Avenue
MLS# TB8301880
Description for 2103 N Howard Avenue, Tampa, FL, 33607
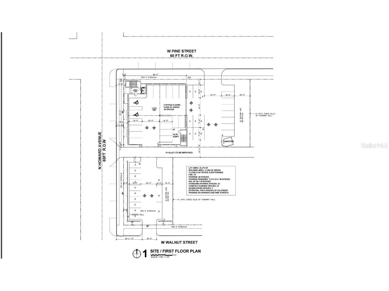
A unique opportunity for businesses or developers alike in this Howard Avenue Development Site. This assemblage consists of three vacant Commercial Intensive zoned parcels totaling 23,392 SF. The site can be used for a variety of uses such as multi-family or retail and is currently approved for a 17,900 SF, 4 story class A office structure with a rooftop deck with top floor executive offices and an outside private patio area overlooking the Downtown Tampa skyline. The site was designed with 48 parking places with an additional 9 street parking spaces. Design exceptions and site plan have been approved yet permits have not been applied for so a developer could take the project in a new direction for retail or multi-family as the Future Land Use is Community Commercial 35 (2.0 FAR) and Residential 35 (.60 FAR) allowing for higher density multifamily with a potential for increased density by use of The State of Florida's Live Local Act. The site also sits within the West Tampa Overlay as well as the West Tampa CRA (Community Redevelopment Area) and may be eligible for a variety of grants. Surveys and plans can be made available for review to interested parties and for use to eventual purchaser. Traffic count of 19,000 VPD. Located in Tampa just north of I-275, offering easy access to surrounding areas.
Listing Information
Property Type: Commercial
Status: Active
Lot Size: 0.54 Acres
Subdivision: Mac Farlanes Rev Map Of Add
Current Use: Commercial
County: Hillsborough
Utilities
Water: Public
Sewer: Public Sewer
Other Utilities: Other,Sewer Available,Water Available
Exterior / Lot Features
Lot Dimensions: 132x104
Driving Directions
Veterans Express (SR-589-TOLL S), continue on Memorial Hwy, take the exit toward Tampa/I-4 onto I-275 N (SR-400), 2.9 miles, take Exit 42 toward Armenia Ave/Howard Ave, 0.4 miles, continue on W Laurel St toward Howard Ave, 0.1 miles, turn left onto N Howard Ave, 0.3 miles to property.
Financial Considerations
Tax/Property ID: A-14-29-18-4PQ-000037-00013.0
Tax Amount: 1680.88
Tax Year: 2023
A broker reciprocity listing courtesy: BAY STREET COMMERCIAL LLC
Based on information provided by Stellar MLS as distributed by the MLS GRID. Information from the Internet Data Exchange is provided exclusively for consumers’ personal, non-commercial use, and such information may not be used for any purpose other than to identify prospective properties consumers may be interested in purchasing. This data is deemed reliable but is not guaranteed to be accurate by Edina Realty, Inc., or by the MLS. Edina Realty, Inc., is not a multiple listing service (MLS), nor does it offer MLS access.
Copyright 2025 Stellar MLS as distributed by the MLS GRID. All Rights Reserved.
Payment Calculator
Interest rate and annual percentage rate (APR) are based on current market conditions, are for informational purposes only, are subject to change without notice and may be subject to pricing add-ons related to property type, loan amount, loan-to-value, credit score and other variables. Estimated closing costs used in the APR calculation are assumed to be paid by the borrower at closing. If the closing costs are financed, the loan, APR and payment amounts will be higher. If the down payment is less than 20%, mortgage insurance may be required and could increase the monthly payment and APR. Contact us for details. Additional loan programs may be available. Accuracy is not guaranteed, and all products may not be available in all borrower's geographical areas and are based on their individual situation. This is not a credit decision or a commitment to lend.
Sales History & Tax Summary for 2103 N Howard Avenue
Sales History
| Date | Price | Change |
|---|---|---|
| Currently not available. | ||
Tax Summary
| Tax Year | Estimated Market Value | Total Tax |
|---|---|---|
| Currently not available. | ||
Data powered by ATTOM Data Solutions. Copyright© 2025. Information deemed reliable but not guaranteed.
Schools
Schools nearby 2103 N Howard Avenue
| Schools in attendance boundaries | Grades | Distance | Rating |
|---|---|---|---|
| Loading... | |||
| Schools nearby | Grades | Distance | Rating |
|---|---|---|---|
| Loading... | |||
Data powered by ATTOM Data Solutions. Copyright© 2025. Information deemed reliable but not guaranteed.
The schools shown represent both the assigned schools and schools by distance based on local school and district attendance boundaries. Attendance boundaries change based on various factors and proximity does not guarantee enrollment eligibility. Please consult your real estate agent and/or the school district to confirm the schools this property is zoned to attend. Information is deemed reliable but not guaranteed.
SchoolDigger ® Rating
The SchoolDigger rating system is a 1-5 scale with 5 as the highest rating. SchoolDigger ranks schools based on test scores supplied by each state's Department of Education. They calculate an average standard score by normalizing and averaging each school's test scores across all tests and grades.
Coming soon properties will soon be on the market, but are not yet available for showings.