$1,750,000
23836 Smiley Road Nisswa, MN 56468
For Sale MLS# 7033197
Other
Details for 23836 Smiley Road
MLS# 7033197
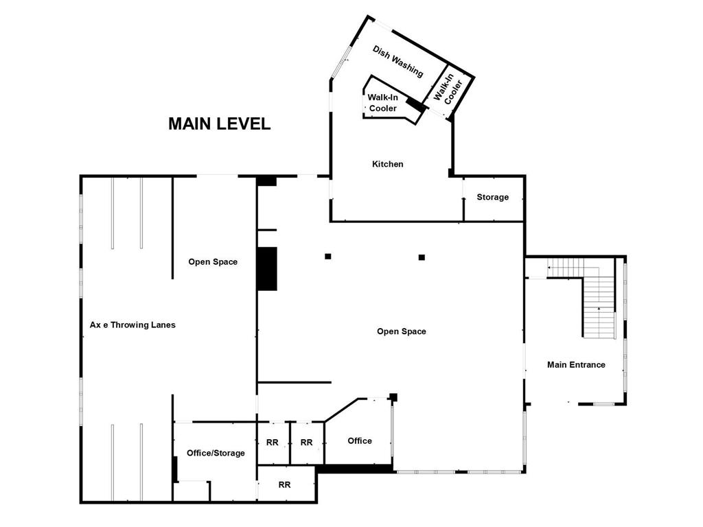
Description for 23836 Smiley Road, Nisswa, MN, 56468
Rare opportunity to acquire a landmark three-story commercial facility along Hwy 371 in Nisswa, formerly home to Roundhouse Brewery and Event Center. This beautifully maintained and highly versatile property is ideally suited for an entertainment venue, restaurant, reception hall, brewery concept, or creative office/retail use. The main level features a large open reception/event space, commercial kitchen with walk-in coolers, and a separate entertainment area with existing axe-throwing lanes. The upper level offers additional open space for dining or events and includes access to a rooftop deck. The lower level—formerly brewery operations—now provides expansive warehouse-style space with walk-in coolers, mezzanine seating, storage areas, and restroom facilities. Outdoor amenities include a patio with band shell for live music or events, two overhead doors (including a loading dock), ample paved front parking, and additional gravel parking in the rear. A stunning and well-manicured property with exceptional visibility along one of the Lakes Area’s primary corridors—an ideal opportunity for an entrepreneur to create the region’s next destination venue.
Listing Information
Property Type: Commercial
Status: Active
Lot Size: 2.64 Acres
Square Feet: 14,642 sq ft
Year Built: 2002
Foundation: 8,096 sq ft
Garage: Yes
Stories: Three Or More
Subdivision: Water Wheel
Number Of Units Total: 1
Current Use: Commercial,Event Space,Recreational,Restaurant,Vacant
County: Crow Wing
Days On Market: 5
Construction Status: Previously Owned
School Information
District: 181 - Brainerd
Interior Features
Accessibility: Other
Utilities
Water: Well
Sewer: City Sewer/Connected
Other Utilities: Electric Common,Heating Common,Hot Water Common
Cooling: Central
Heating: Forced Air, Natural Gas
Exterior / Lot Features
Garage Spaces: 2
Open Parking: 80
Parking Description: Uncovered/Open, Paved Lot, gravel lot
Exterior: Wood, Brick/Stone
Roof: Composition
Lot Dimensions: 124.31’ x 7’ x 176.39’ x 500.20’ x 87.96’ x 364.99’ x 158.19’
Zoning: Business/Commercial
Additional Exterior/Lot Features: Land Inclusions - Building,Land, Road Frontage - City, Paved Streets, State
Driving Directions
From Hwy 371and CR 77/CR 13 Stoplight Intersection in Nisswa - East on CR 13 - South on Smiley Road - Property is on the West just after Spirits of Nisswa
Financial Considerations
Tax/Property ID: 28230509
Tax Amount: 20760
Tax Year: 2025
HomeStead Description: Non-Homesteaded
A broker reciprocity listing courtesy: Close-Converse Commercial Prop
The data relating to real estate for sale on this web site comes in part from the Broker Reciprocity℠ Program of the Regional Multiple Listing Service of Minnesota, Inc. Real estate listings held by brokerage firms other than Edina Realty, Inc. are marked with the Broker Reciprocity℠ logo or the Broker Reciprocity℠ thumbnail and detailed information about them includes the name of the listing brokers. Edina Realty, Inc. is not a Multiple Listing Service (MLS), nor does it offer MLS access. This website is a service of Edina Realty, Inc., a broker Participant of the Regional Multiple Listing Service of Minnesota, Inc. IDX information is provided exclusively for consumers personal, non-commercial use and may not be used for any purpose other than to identify prospective properties consumers may be interested in purchasing. Open House information is subject to change without notice. Information deemed reliable but not guaranteed.
Copyright 2026 Regional Multiple Listing Service of Minnesota, Inc. All Rights Reserved.
Payment Calculator
Interest rate and annual percentage rate (APR) are based on current market conditions, are for informational purposes only, are subject to change without notice and may be subject to pricing add-ons related to property type, loan amount, loan-to-value, credit score and other variables. Estimated closing costs used in the APR calculation are assumed to be paid by the borrower at closing. If the closing costs are financed, the loan, APR and payment amounts will be higher. If the down payment is less than 20%, mortgage insurance may be required and could increase the monthly payment and APR. Contact us for details. Additional loan programs may be available. Accuracy is not guaranteed, and all products may not be available in all borrower's geographical areas and are based on their individual situation. This is not a credit decision or a commitment to lend.
Sales History & Tax Summary for 23836 Smiley Road
Sales History
| Date | Price | |
|---|---|---|
| Currently not available. | ||
Tax Summary
| Tax Year | Estimated Market Value | Total Tax |
|---|---|---|
| Currently not available. | ||
Data powered by ATTOM Data Solutions. Copyright© 2026. Information deemed reliable but not guaranteed.
Schools
Schools nearby 23836 Smiley Road
| Schools in attendance boundaries | Grades | Distance | Rating |
|---|---|---|---|
| Loading... | |||
| Schools nearby | Grades | Distance | Rating |
|---|---|---|---|
| Loading... | |||
Data powered by ATTOM Data Solutions. Copyright© 2026. Information deemed reliable but not guaranteed.
The schools shown represent both the assigned schools and schools by distance based on local school and district attendance boundaries. Attendance boundaries change based on various factors and proximity does not guarantee enrollment eligibility. Please consult your real estate agent and/or the school district to confirm the schools this property is zoned to attend. Information is deemed reliable but not guaranteed.
SchoolDigger ® Rating
The SchoolDigger rating system is a 1-5 scale with 5 as the highest rating. SchoolDigger ranks schools based on test scores supplied by each state's Department of Education. They calculate an average standard score by normalizing and averaging each school's test scores across all tests and grades.
Coming soon properties will soon be on the market, but are not yet available for showings.