$895,000
2401 First Street #300 Fort Myers, FL 33901
For Sale MLS# 2025023301
Commercial
Details for 2401 First Street #300
MLS# 2025023301
Description for 2401 First Street #300, Fort Myers, FL, 33901
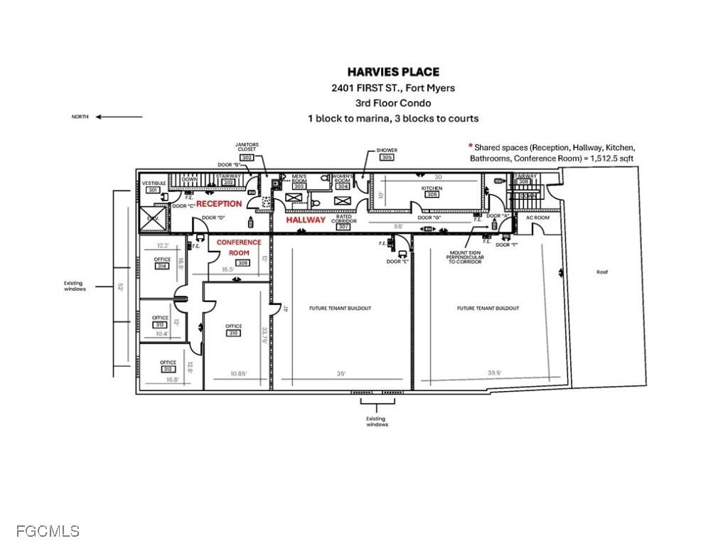
Located in the vibrant Downtown River District of Fort Myers, this Class “A” office condo unit occupies the entire 3rd floor and boasts over $200,000 in recent improvements. The space is newly remodeled and features 24-hour controlled access for added security. Its prime location offers convenient walking distance to restaurants, hotels, government offices and the Court systems – Lee County 20th Judicial Circuit Court, State Court & Federal Court. Street parking is available, along with three nearby parking garages. Additionally, the unit includes pre-approved rights from the condo association for a rooftop terrace, ideal for hosting business parties and VIP guests. The water is included in CAM. The only bill paid by the tenant or owner is electricity which is billed and metered separately. For the 1st year of the lease (6+) FREE Annual Parking Passes Included. The 5,874 SF unit itself is available for lease at $12.50 PSF + $7.00 CAM or available for sale at $895,000.
Listing Information
Property Type: Commercial, Office, Office,Retail,Commercial
Status: Active
Lot Size: 0.29 Acres
Year Built: 2005
Stories: 3 Story
County: Lee
Days On Market: 6
Financial Considerations
Tax Amount: 8507
Tax Year: 2025
A broker reciprocity listing courtesy: RE/MAX Realty Group
Based on information provided by FGCMLS. Internet Data Exchange information is provided exclusively for consumers’ personal, non-commercial use, and such information may not be used for any purpose other than to identify prospective properties consumers may be interested in purchasing. This data is deemed reliable but is not guaranteed to be accurate by Edina Realty, Inc., or by the MLS. Edina Realty, Inc., is not a multiple listing service (MLS), nor does it offer MLS access.
Copyright 2025 FGCMLS. All Rights Reserved.
Payment Calculator
Interest rate and annual percentage rate (APR) are based on current market conditions, are for informational purposes only, are subject to change without notice and may be subject to pricing add-ons related to property type, loan amount, loan-to-value, credit score and other variables. Estimated closing costs used in the APR calculation are assumed to be paid by the borrower at closing. If the closing costs are financed, the loan, APR and payment amounts will be higher. If the down payment is less than 20%, mortgage insurance may be required and could increase the monthly payment and APR. Contact us for details. Additional loan programs may be available. Accuracy is not guaranteed, and all products may not be available in all borrower's geographical areas and are based on their individual situation. This is not a credit decision or a commitment to lend.
Sales History & Tax Summary for 2401 First Street #300
Sales History
| Date | Price | Change |
|---|---|---|
| Currently not available. | ||
Tax Summary
| Tax Year | Estimated Market Value | Total Tax |
|---|---|---|
| Currently not available. | ||
Data powered by ATTOM Data Solutions. Copyright© 2025. Information deemed reliable but not guaranteed.
Schools
Schools nearby 2401 First Street #300
| Schools in attendance boundaries | Grades | Distance | Rating |
|---|---|---|---|
| Loading... | |||
| Schools nearby | Grades | Distance | Rating |
|---|---|---|---|
| Loading... | |||
Data powered by ATTOM Data Solutions. Copyright© 2025. Information deemed reliable but not guaranteed.
The schools shown represent both the assigned schools and schools by distance based on local school and district attendance boundaries. Attendance boundaries change based on various factors and proximity does not guarantee enrollment eligibility. Please consult your real estate agent and/or the school district to confirm the schools this property is zoned to attend. Information is deemed reliable but not guaranteed.
SchoolDigger ® Rating
The SchoolDigger rating system is a 1-5 scale with 5 as the highest rating. SchoolDigger ranks schools based on test scores supplied by each state's Department of Education. They calculate an average standard score by normalizing and averaging each school's test scores across all tests and grades.
Coming soon properties will soon be on the market, but are not yet available for showings.