$110,000
25 S Park Avenue Le Center, MN 56057
For Sale MLS# 6824521
985 sq ft Commercial
Details for 25 S Park Avenue
MLS# 6824521
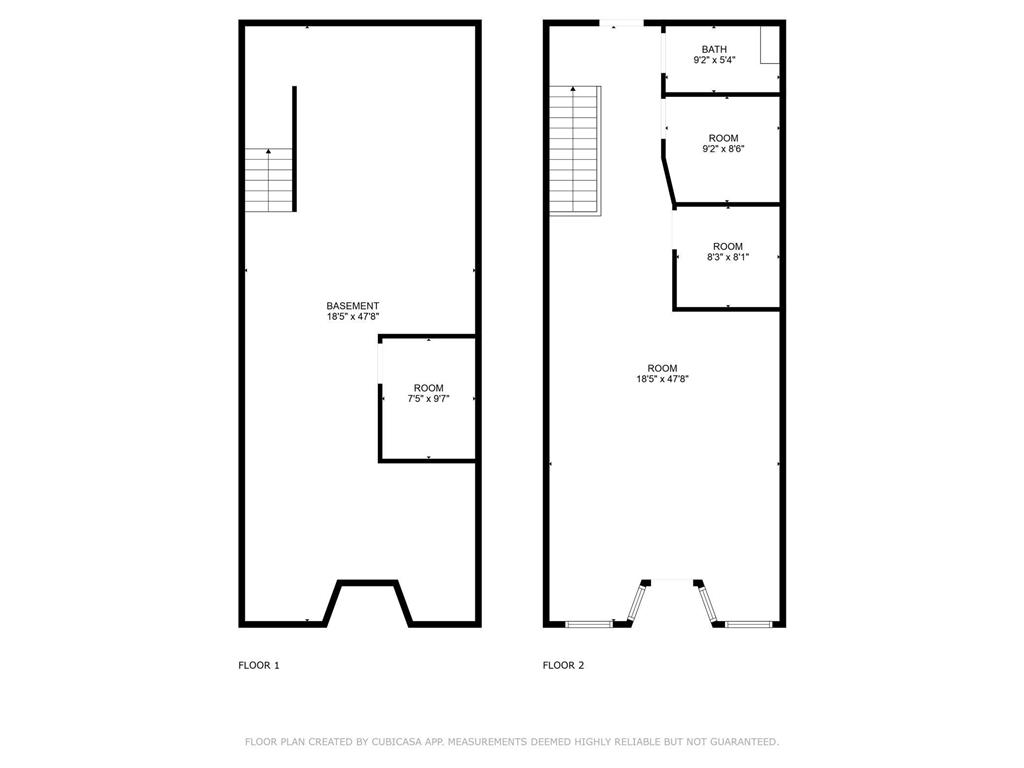
Description for 25 S Park Avenue, Le Center, MN, 56057
Gorgeous building located in downtown Le Center! Completely renovated in 2011 with stunning finishes throughout. Currently home to a successful hair salon with chair rental. Sale includes the land, building, fixtures and several items to continue a salon if desired. Wonderful opportunity to get started as a salon owner, rent spaces, or turn the building into a business of your dreams. Move in ready with tons of possibilities! Property is for sale and also looking to rent a space to a nail tech or hair stylist. Inquire for more info!
Listing Information
Property Type: Commercial, Business Opportunity
Status: Active
Bathrooms: 1
Lot Size: 0.02 Acres
Square Feet: 985 sq ft
Year Built: 1910
Foundation: 985 sq ft
Stories: 1 Story
Subdivision: City Of Le Center
Number Of Units Total: 1
Current Use: Beauty/Barber Shop
County: Le Sueur
Days On Market: 26
Construction Status: Previously Owned
School Information
District: 2905 - Tri-City United
Interior Features
Appliances: Air-To-Air Exchanger, Dryer, Washer, Gas Water Heater
Basement: Full
Accessibility: Doors 36+
Additional Interior Features: Ceiling Fan(s), Washer/Dryer Hookup, Hardwood Floors
Utilities
Water: City Water/Connected
Sewer: City Sewer/Connected
Other Utilities: Electric Common,Heating Common,Hot Water Common
Cooling: Central
Heating: Forced Air, Natural Gas
Exterior / Lot Features
Parking Description: Garage Sq Ft - 0.00
Exterior: Brick/Stone, Shakes
Lot Dimensions: 20x50
Zoning: Business/Commercial
Additional Exterior/Lot Features: Land Inclusions - Building,Fixture/Equipment,Land, Road Frontage - Sidewalks, City, Curbs
Unit Information
Unit 1 Baths Total: 1
Driving Directions
Hwy 99 to Le Center, South on Park Avenue to property.
Financial Considerations
Other Annual Tax: $54
Tax/Property ID: 204700810
Tax Amount: 1204
Tax Year: 2025
HomeStead Description: Non-Homesteaded
A broker reciprocity listing courtesy: RE/MAX Advantage Plus
The data relating to real estate for sale on this web site comes in part from the Broker Reciprocity℠ Program of the Regional Multiple Listing Service of Minnesota, Inc. Real estate listings held by brokerage firms other than Edina Realty, Inc. are marked with the Broker Reciprocity℠ logo or the Broker Reciprocity℠ thumbnail and detailed information about them includes the name of the listing brokers. Edina Realty, Inc. is not a Multiple Listing Service (MLS), nor does it offer MLS access. This website is a service of Edina Realty, Inc., a broker Participant of the Regional Multiple Listing Service of Minnesota, Inc. IDX information is provided exclusively for consumers personal, non-commercial use and may not be used for any purpose other than to identify prospective properties consumers may be interested in purchasing. Open House information is subject to change without notice. Information deemed reliable but not guaranteed.
Copyright 2025 Regional Multiple Listing Service of Minnesota, Inc. All Rights Reserved.
Payment Calculator
Interest rate and annual percentage rate (APR) are based on current market conditions, are for informational purposes only, are subject to change without notice and may be subject to pricing add-ons related to property type, loan amount, loan-to-value, credit score and other variables. Estimated closing costs used in the APR calculation are assumed to be paid by the borrower at closing. If the closing costs are financed, the loan, APR and payment amounts will be higher. If the down payment is less than 20%, mortgage insurance may be required and could increase the monthly payment and APR. Contact us for details. Additional loan programs may be available. Accuracy is not guaranteed, and all products may not be available in all borrower's geographical areas and are based on their individual situation. This is not a credit decision or a commitment to lend.
Sales History & Tax Summary for 25 S Park Avenue
Sales History
| Date | Price | Change |
|---|---|---|
| Currently not available. | ||
Tax Summary
| Tax Year | Estimated Market Value | Total Tax |
|---|---|---|
| Currently not available. | ||
Data powered by ATTOM Data Solutions. Copyright© 2025. Information deemed reliable but not guaranteed.
Schools
Schools nearby 25 S Park Avenue
| Schools in attendance boundaries | Grades | Distance | Rating |
|---|---|---|---|
| Loading... | |||
| Schools nearby | Grades | Distance | Rating |
|---|---|---|---|
| Loading... | |||
Data powered by ATTOM Data Solutions. Copyright© 2025. Information deemed reliable but not guaranteed.
The schools shown represent both the assigned schools and schools by distance based on local school and district attendance boundaries. Attendance boundaries change based on various factors and proximity does not guarantee enrollment eligibility. Please consult your real estate agent and/or the school district to confirm the schools this property is zoned to attend. Information is deemed reliable but not guaranteed.
SchoolDigger ® Rating
The SchoolDigger rating system is a 1-5 scale with 5 as the highest rating. SchoolDigger ranks schools based on test scores supplied by each state's Department of Education. They calculate an average standard score by normalizing and averaging each school's test scores across all tests and grades.
Coming soon properties will soon be on the market, but are not yet available for showings.