2965 Roosevelt Boulevard Clearwater, FL 33760
For Sale MLS# TB8361097
2,340 sq ft Commercial
Details for 2965 Roosevelt Boulevard
MLS# TB8361097
Description for 2965 Roosevelt Boulevard, Clearwater, FL, 33760
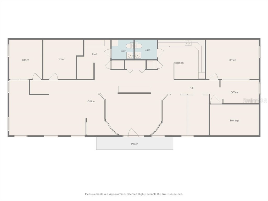
Exceptional Development Opportunity – Five Lots on Roosevelt Boulevard! Seize this rare opportunity to acquire nearly ¾ acre of prime, high-visibility real estate along one of Largo’s most active corridors. According to the City of Largo, approximately 0.56 acres of the 0.74-acre site may support up to 28 residential units with applicable bonus density options, including incentives for affordable housing, green building, and greywater system integration. This unique assemblage includes three parcels totaling five lots, prominently positioned at the corner of Roosevelt Boulevard and 59th Street N. Two parcels lie within the City of Largo, while the westernmost lot is located in unincorporated Pinellas County—offering flexible development potential. The property currently features a 2,340 sq. ft. office building, a vacant lot, and an 800 sq. ft. cabin presently used as a residence. Current zoning is Residential/Office Limited (R/O-L), allowing a variety of uses including office, residential, or mixed-use redevelopment. Strategically located next to Walgreens and across from the new 7-Eleven, this site offers exceptional exposure and accessibility. It’s minutes from St. Pete–Clearwater International Airport, with convenient access to Tampa International Airport, I-275, US Highway 19, and just 20 minutes from the Gulf beaches. Don’t miss this outstanding opportunity to develop or invest in one of Largo’s most desirable and high-traffic commercial corridors.
Listing Information
Property Type: Commercial, Office
Status: Active
Lot Size: 0.74 Acres
Square Feet: 2,340 sq ft
Year Built: 2000
Stories: 1 Story
Construction: Wood Frame
Subdivision: Chestervilla Mundays Add
Foundation: Slab
County: Pinellas
Interior Features
Flooring: Carpet,Engineered Hardwood
Utilities
Cooling: Central Air
Exterior / Lot Features
Parking Description: Parking Space(s)
Roof: Shingle
Additional Exterior/Lot Features: Landscaped
Driving Directions
From US Hwy 19 N, head East on Roosevelt Blvd to address. Across the street from new 7-11.
Financial Considerations
Terms: Cash,Conventional
Tax/Property ID: 32-29-16-15156-009-0040
Tax Amount: 6411.18
Tax Year: 2024
A broker reciprocity listing courtesy: ENGEL & VOLKERS BELLEAIR
Based on information provided by Stellar MLS as distributed by the MLS GRID. Information from the Internet Data Exchange is provided exclusively for consumers’ personal, non-commercial use, and such information may not be used for any purpose other than to identify prospective properties consumers may be interested in purchasing. This data is deemed reliable but is not guaranteed to be accurate by Edina Realty, Inc., or by the MLS. Edina Realty, Inc., is not a multiple listing service (MLS), nor does it offer MLS access.
Copyright 2025 Stellar MLS as distributed by the MLS GRID. All Rights Reserved.
Payment Calculator
Interest rate and annual percentage rate (APR) are based on current market conditions, are for informational purposes only, are subject to change without notice and may be subject to pricing add-ons related to property type, loan amount, loan-to-value, credit score and other variables. Estimated closing costs used in the APR calculation are assumed to be paid by the borrower at closing. If the closing costs are financed, the loan, APR and payment amounts will be higher. If the down payment is less than 20%, mortgage insurance may be required and could increase the monthly payment and APR. Contact us for details. Additional loan programs may be available. Accuracy is not guaranteed, and all products may not be available in all borrower's geographical areas and are based on their individual situation. This is not a credit decision or a commitment to lend.
Sales History & Tax Summary for 2965 Roosevelt Boulevard
Sales History
| Date | Price | Change |
|---|---|---|
| Currently not available. | ||
Tax Summary
| Tax Year | Estimated Market Value | Total Tax |
|---|---|---|
| Currently not available. | ||
Data powered by ATTOM Data Solutions. Copyright© 2025. Information deemed reliable but not guaranteed.
Schools
Schools nearby 2965 Roosevelt Boulevard
| Schools in attendance boundaries | Grades | Distance | Rating |
|---|---|---|---|
| Loading... | |||
| Schools nearby | Grades | Distance | Rating |
|---|---|---|---|
| Loading... | |||
Data powered by ATTOM Data Solutions. Copyright© 2025. Information deemed reliable but not guaranteed.
The schools shown represent both the assigned schools and schools by distance based on local school and district attendance boundaries. Attendance boundaries change based on various factors and proximity does not guarantee enrollment eligibility. Please consult your real estate agent and/or the school district to confirm the schools this property is zoned to attend. Information is deemed reliable but not guaranteed.
SchoolDigger ® Rating
The SchoolDigger rating system is a 1-5 scale with 5 as the highest rating. SchoolDigger ranks schools based on test scores supplied by each state's Department of Education. They calculate an average standard score by normalizing and averaging each school's test scores across all tests and grades.
Coming soon properties will soon be on the market, but are not yet available for showings.