303 E Gibson Street Arcadia, FL 34266
For Sale MLS# C7504994
1,968 sq ft Commercial
Details for 303 E Gibson Street
MLS# C7504994
Description for 303 E Gibson Street, Arcadia, FL, 34266
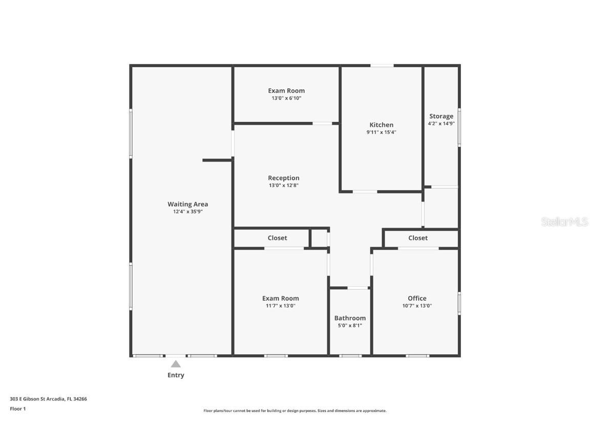
PRICE REDUCED $30,000. Exceptional opportunity to purchase a well-located medical or professional office property in the heart of Arcadia’s established medical district, just steps from DeSoto Memorial Hospital and surrounded by other healthcare providers. This approximately 1,968 square foot commercial building offers a functional layout ideal for a medical practice, therapy office, wellness center, dental use, or general professional services. The space includes a welcoming reception and waiting area, multiple private rooms suitable for exam or consultation use, a kitchen/break area, and multiple restrooms. Situated on an approximate 0.52-acre corner lot, the property provides excellent visibility, convenient access, and on-site parking. A portion of the building is currently utilized as income-producing space, offering immediate revenue potential with additional upside for an owner/user or investor. Now offered at $299,900, this is a rare opportunity to secure a strategically positioned commercial property in a high-demand healthcare corridor. Schedule your private showing today.
Listing Information
Property Type: Commercial, Office
Status: Active
Lot Size: 0.52 Acres
Square Feet: 1,968 sq ft
Year Built: 1965
Construction: Block,Stucco
Subdivision: Gilchrists & Baldwins Sub
Foundation: Other,Slab
County: Desoto
Interior Features
Flooring: Tile
Utilities
Cooling: Ductless
Exterior / Lot Features
Lot Dimensions: 150x150
Driving Directions
Take HWY 17 N, Turn Right on Gibson St, Property will by on Left
Financial Considerations
Tax/Property ID: 30-37-25-0168-00K0-0190
Tax Amount: 3398.88
Tax Year: 2024
A broker reciprocity listing courtesy: THE WILLIAMSON GROUP REALTY, I
Based on information provided by Stellar MLS as distributed by the MLS GRID. Information from the Internet Data Exchange is provided exclusively for consumers’ personal, non-commercial use, and such information may not be used for any purpose other than to identify prospective properties consumers may be interested in purchasing. This data is deemed reliable but is not guaranteed to be accurate by Edina Realty, Inc., or by the MLS. Edina Realty, Inc., is not a multiple listing service (MLS), nor does it offer MLS access.
Copyright 2026 Stellar MLS as distributed by the MLS GRID. All Rights Reserved.
Payment Calculator
Interest rate and annual percentage rate (APR) are based on current market conditions, are for informational purposes only, are subject to change without notice and may be subject to pricing add-ons related to property type, loan amount, loan-to-value, credit score and other variables. Estimated closing costs used in the APR calculation are assumed to be paid by the borrower at closing. If the closing costs are financed, the loan, APR and payment amounts will be higher. If the down payment is less than 20%, mortgage insurance may be required and could increase the monthly payment and APR. Contact us for details. Additional loan programs may be available. Accuracy is not guaranteed, and all products may not be available in all borrower's geographical areas and are based on their individual situation. This is not a credit decision or a commitment to lend.
Sales History & Tax Summary for 303 E Gibson Street
Sales History
| Date | Price | |
|---|---|---|
| Currently not available. | ||
Tax Summary
| Tax Year | Estimated Market Value | Total Tax |
|---|---|---|
| Currently not available. | ||
Data powered by ATTOM Data Solutions. Copyright© 2026. Information deemed reliable but not guaranteed.
Schools
Schools nearby 303 E Gibson Street
| Schools in attendance boundaries | Grades | Distance | Rating |
|---|---|---|---|
| Loading... | |||
| Schools nearby | Grades | Distance | Rating |
|---|---|---|---|
| Loading... | |||
Data powered by ATTOM Data Solutions. Copyright© 2026. Information deemed reliable but not guaranteed.
The schools shown represent both the assigned schools and schools by distance based on local school and district attendance boundaries. Attendance boundaries change based on various factors and proximity does not guarantee enrollment eligibility. Please consult your real estate agent and/or the school district to confirm the schools this property is zoned to attend. Information is deemed reliable but not guaranteed.
SchoolDigger ® Rating
The SchoolDigger rating system is a 1-5 scale with 5 as the highest rating. SchoolDigger ranks schools based on test scores supplied by each state's Department of Education. They calculate an average standard score by normalizing and averaging each school's test scores across all tests and grades.
Coming soon properties will soon be on the market, but are not yet available for showings.