3248 Commercial Way Spring Hill, FL 34606
For Sale MLS# A4608257
3,122 sq ft Commercial
Details for 3248 Commercial Way
MLS# A4608257
Description for 3248 Commercial Way, Spring Hill, FL, 34606
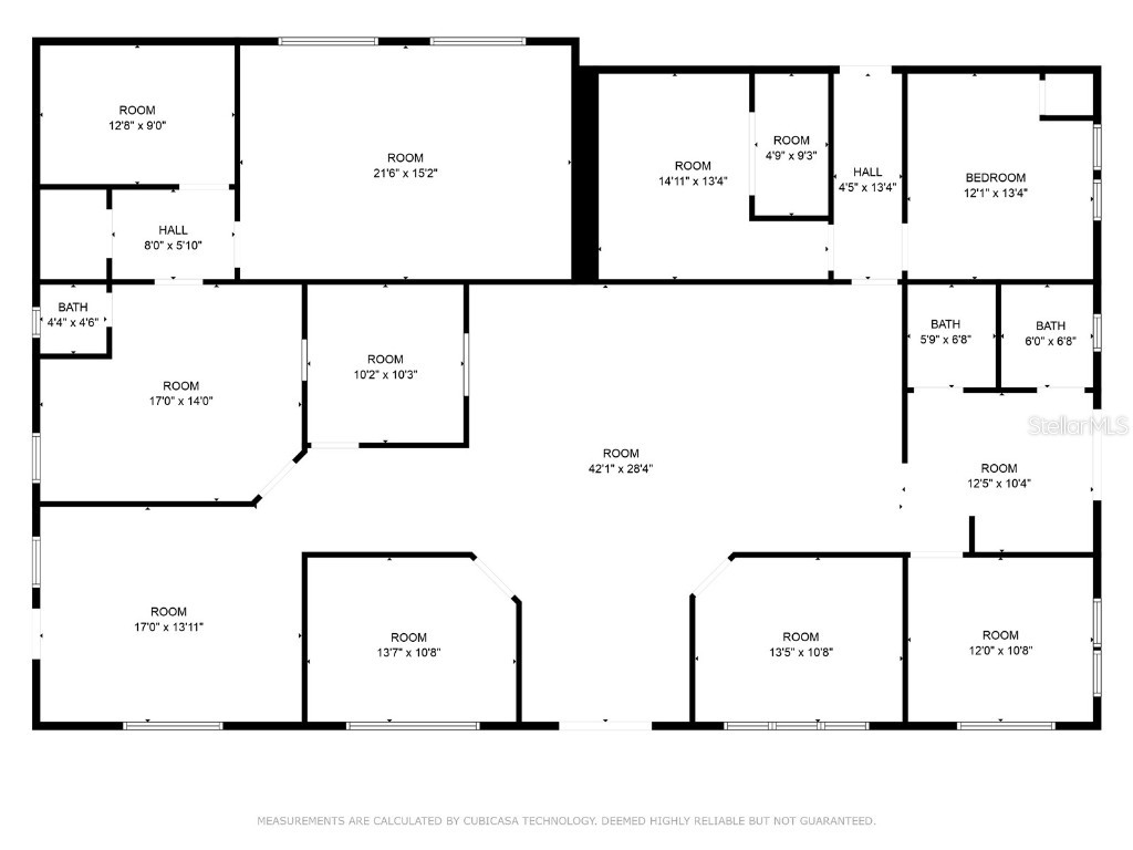
HUGE PRICE DROP FOR THIS OUTSTANDING COMMERCIAL ASSET! Bring your business to the next level with a coveted location on US Highway 19 in Spring Hill, FL w/46,000 Vehicles Per Day. Property has been completely renovated w/a new metal panel roof, all impact glass windows and doors, 2 new HVAC units w/cages, installed a new Septic System (tank and field), new hot water tank, new interior paint, new LVP flooring. Current Building Configuration consists of 10 large offices, a large open lobby area, 3 bathrooms, & water pipes in the wall for a kitchenette. There's an existing structure to hang your sign w/excellent highway visibility. Ideally situated on the corner of US HWY 19 and Sealawn Dr & w/a dedicated turn lane for South Bound traffic, making for easy access. Property could easily accommodate multiple tenants. Zoning is C1 which allows for a number of permitted uses to include Business/Professional Offices, Convenient Store w/fueling stations, Restaurant, Retail, Veterinary, Automobile Service, & Call Center just to name a few. Please see the attached permitted uses. Property provides abundant parking. Don't miss this opportunity to elevate your business to the next level!
Listing Information
Property Type: Commercial, Business
Status: Active
Lot Size: 0.75 Acres
Square Feet: 3,122 sq ft
Year Built: 1979
Stories: 1 Story
Construction: Block,Concrete
Construction Display: New Construction
Subdivision: Weeki Wachee Acres
Foundation: Slab
County: Hernando
Days On Market: 417
Construction Status: New Construction
Interior Features
Flooring: Luxury Vinyl
Doors/Windows: Storm Window(s)
Accessibility: Accessible Approach with Ramp, Accessible Doors, Accessible Entrance
Utilities
Water: Public
Sewer: Septic Tank, Private Sewer
Other Utilities: Electricity Available,Other,Water Connected
Cooling: Central Air, Zoned
Heating: Zoned, Central
Exterior / Lot Features
Parking Description: Common, Parking Space(s)
Roof: Metal
Lot Dimensions: 157 X 272 X 201 X 146
Additional Exterior/Lot Features: Corner Lot, Near Public Transit, Oversized Lot, Central Business District
Community Features
Community Features: Street Lights
Security Features: Security Lights
Driving Directions
US Highway 19 to Sealawn Dr, Spring Hill, FL.
Financial Considerations
Tax/Property ID: R16-223-17-3810-0080-0010
Tax Amount: 8194.47
Tax Year: 2023
A broker reciprocity listing courtesy: BERKSHIRE HATHAWAY HOMESERVICES FLORIDA REALTY
Based on information provided by Stellar MLS as distributed by the MLS GRID. Information from the Internet Data Exchange is provided exclusively for consumers’ personal, non-commercial use, and such information may not be used for any purpose other than to identify prospective properties consumers may be interested in purchasing. This data is deemed reliable but is not guaranteed to be accurate by Edina Realty, Inc., or by the MLS. Edina Realty, Inc., is not a multiple listing service (MLS), nor does it offer MLS access.
Copyright 2025 Stellar MLS as distributed by the MLS GRID. All Rights Reserved.
Payment Calculator
Interest rate and annual percentage rate (APR) are based on current market conditions, are for informational purposes only, are subject to change without notice and may be subject to pricing add-ons related to property type, loan amount, loan-to-value, credit score and other variables. Estimated closing costs used in the APR calculation are assumed to be paid by the borrower at closing. If the closing costs are financed, the loan, APR and payment amounts will be higher. If the down payment is less than 20%, mortgage insurance may be required and could increase the monthly payment and APR. Contact us for details. Additional loan programs may be available. Accuracy is not guaranteed, and all products may not be available in all borrower's geographical areas and are based on their individual situation. This is not a credit decision or a commitment to lend.
Sales History & Tax Summary for 3248 Commercial Way
Sales History
| Date | Price | Change |
|---|---|---|
| Currently not available. | ||
Tax Summary
| Tax Year | Estimated Market Value | Total Tax |
|---|---|---|
| Currently not available. | ||
Data powered by ATTOM Data Solutions. Copyright© 2025. Information deemed reliable but not guaranteed.
Schools
Schools nearby 3248 Commercial Way
| Schools in attendance boundaries | Grades | Distance | Rating |
|---|---|---|---|
| Loading... | |||
| Schools nearby | Grades | Distance | Rating |
|---|---|---|---|
| Loading... | |||
Data powered by ATTOM Data Solutions. Copyright© 2025. Information deemed reliable but not guaranteed.
The schools shown represent both the assigned schools and schools by distance based on local school and district attendance boundaries. Attendance boundaries change based on various factors and proximity does not guarantee enrollment eligibility. Please consult your real estate agent and/or the school district to confirm the schools this property is zoned to attend. Information is deemed reliable but not guaranteed.
SchoolDigger ® Rating
The SchoolDigger rating system is a 1-5 scale with 5 as the highest rating. SchoolDigger ranks schools based on test scores supplied by each state's Department of Education. They calculate an average standard score by normalizing and averaging each school's test scores across all tests and grades.
Coming soon properties will soon be on the market, but are not yet available for showings.