3731 SE 15th Place Cape Coral, FL 33904
For Sale MLS# 2025015153
Commercial
Details for 3731 SE 15th Place
MLS# 2025015153
Description for 3731 SE 15th Place, Cape Coral, FL, 33904
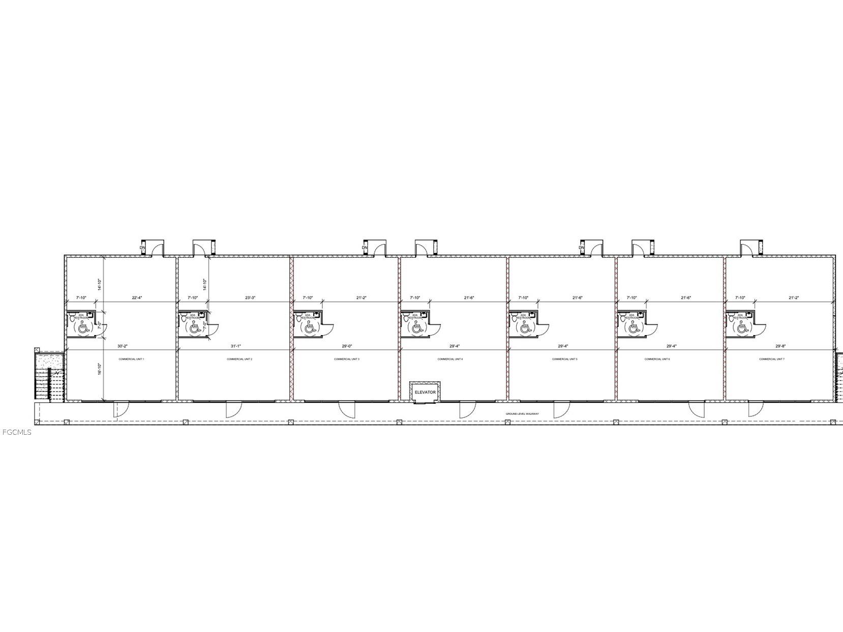
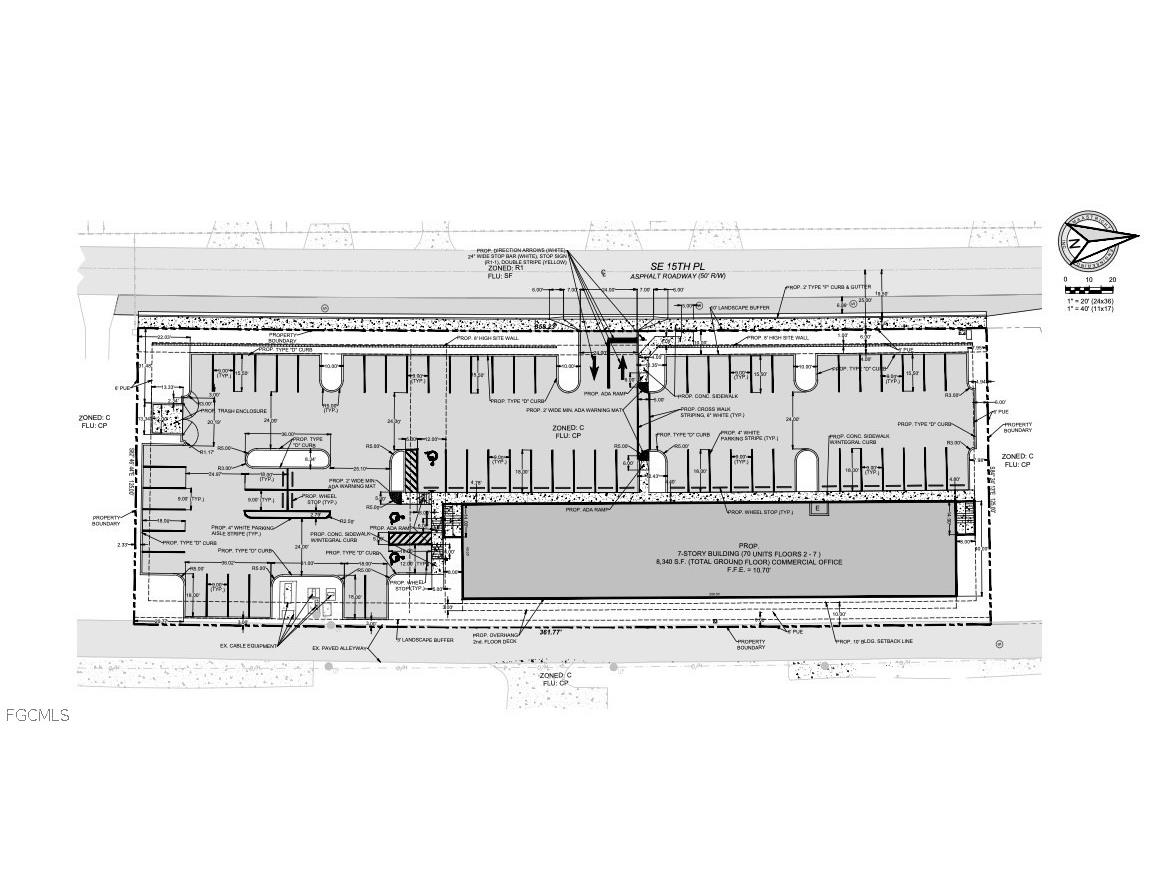
Located in the thriving South Cape Coral area. Entitled land with approved plans for a mixed-use development featuring workforce housing apartments and commercial space. This property is zoned C1 (confirm zoning for uses). The project includes 70 workforce housing apartments and 8,300 square feet of versatile commercial space. This property offers excellent access to public transportation, major highways, and local amenities, making it an attractive location for residents and commercial tenants. Deed-restricted under the Live Local Bill, requiring 40% of units to be rented to tenants earning less than 120% of the area median income (AMI). As of April 2024, Cape Coral's AMI is $88,800. Buyers have options: 1) Acquire the entitled lot (3.5M) and building plans to build under their own contractor and financing. 2) Use Curran Young and the current construction estimate we have. $250/sf = 18.5M 3) Join us, if you are an accredited investor, through our fund. Pre-construction pricing subject to change. Specifications, features, and availability may be modified prior to contract. Property is currently undeveloped and not subject to any lease or rental agreements. Buyer is responsible for securing any future tenants or rental arrangements.
Listing Information
Property Type: Commercial, Office
Status: Active
Lot Size: 1.03 Acres
Year Built: 2026
Stories: 6
County: Lee
Days On Market: 29
Exterior / Lot Features
Zoning: C
Financial Considerations
Tax/Property ID: 06-45-24-C3-00526.0760
Tax Amount: 5978
Tax Year: 2025
A broker reciprocity listing courtesy: Coast Life Properties LLC
Based on information provided by FGCMLS. Internet Data Exchange information is provided exclusively for consumers’ personal, non-commercial use, and such information may not be used for any purpose other than to identify prospective properties consumers may be interested in purchasing. This data is deemed reliable but is not guaranteed to be accurate by Edina Realty, Inc., or by the MLS. Edina Realty, Inc., is not a multiple listing service (MLS), nor does it offer MLS access.
Copyright 2026 FGCMLS. All Rights Reserved.
Payment Calculator
Interest rate and annual percentage rate (APR) are based on current market conditions, are for informational purposes only, are subject to change without notice and may be subject to pricing add-ons related to property type, loan amount, loan-to-value, credit score and other variables. Estimated closing costs used in the APR calculation are assumed to be paid by the borrower at closing. If the closing costs are financed, the loan, APR and payment amounts will be higher. If the down payment is less than 20%, mortgage insurance may be required and could increase the monthly payment and APR. Contact us for details. Additional loan programs may be available. Accuracy is not guaranteed, and all products may not be available in all borrower's geographical areas and are based on their individual situation. This is not a credit decision or a commitment to lend.
Sales History & Tax Summary for 3731 SE 15th Place
Sales History
| Date | Price | |
|---|---|---|
| Currently not available. | ||
Tax Summary
| Tax Year | Estimated Market Value | Total Tax |
|---|---|---|
| Currently not available. | ||
Data powered by ATTOM Data Solutions. Copyright© 2026. Information deemed reliable but not guaranteed.
Schools
Schools nearby 3731 SE 15th Place
| Schools in attendance boundaries | Grades | Distance | Rating |
|---|---|---|---|
| Loading... | |||
| Schools nearby | Grades | Distance | Rating |
|---|---|---|---|
| Loading... | |||
Data powered by ATTOM Data Solutions. Copyright© 2026. Information deemed reliable but not guaranteed.
The schools shown represent both the assigned schools and schools by distance based on local school and district attendance boundaries. Attendance boundaries change based on various factors and proximity does not guarantee enrollment eligibility. Please consult your real estate agent and/or the school district to confirm the schools this property is zoned to attend. Information is deemed reliable but not guaranteed.
SchoolDigger ® Rating
The SchoolDigger rating system is a 1-5 scale with 5 as the highest rating. SchoolDigger ranks schools based on test scores supplied by each state's Department of Education. They calculate an average standard score by normalizing and averaging each school's test scores across all tests and grades.
Coming soon properties will soon be on the market, but are not yet available for showings.