$1,350,000
4156 Swiss Lane NW Eckles Twp, MN 56601
For Sale MLS# 7018769
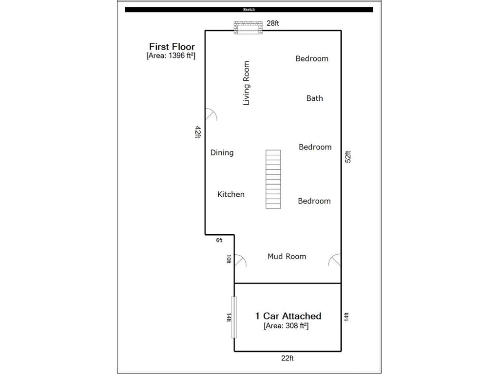
1,396 sq ft Commercial
Details for 4156 Swiss Lane NW
MLS# 7018769
Description for 4156 Swiss Lane NW, Eckles Twp, MN, 56601
Rare investment and development opportunity just west of Bemidji in Eckles Township. This 14+ acre property offers 375' of prime frontage along US Hwy 2, the region’s primary traffic corridor, delivering outstanding visibility and convenient ingress and egress for commercial operations.Positioned outside Bemidji city limits, the location provides meaningful advantages for business owners and developers seeking lower tax burdens, fewer municipal restrictions, and greater flexibility for expansion and site design.The property consists of two adjoining parcels with full highway access and ample room to support multiple uses or phased development. Improvements include a 2,700 SF commercial shop (36' x 75') constructed as a durable red iron steel building. Ideal for service, storage, fabrication, or contractor operations. Also on site is a well maintained 3 bedroom residence in excellent structural condition, offering on-site living, rental income, or employee housing potential.Backing to a Minnesota state forest, the setting provides privacy, natural surroundings, and direct trail access, with abundant wildlife and year round recreational appeal, an uncommon bonus for a commercial corridor location.Versatile zoning and site characteristics support a wide range of potential uses, including:RetailService or contractor operationsEquipment or auto dealershipLight or heavy manufacturingResidential or apartment developmentStorage facilityMixed-use or multi-business campusHigh-visibility highway frontage, expansion capacity, and location outside city limits make this a standout opportunity for investors, developers, or owner-users looking to establish or grow in the Bemidji market.Not included in the sale: Mobile Office and conex (8 x 40 storage container)
Listing Information
Property Type: Commercial, Other
Status: Active
Lot Size: 14.12 Acres
Square Feet: 1,396 sq ft
Year Built: 1970
Foundation: 1,176 sq ft
Garage: Yes
Subdivision: Auditors 17
Number Of Units Total: 2
Current Use: Commercial
County: Beltrami
Days On Market: 40
Construction Status: Previously Owned
School Information
District: 31 - Bemidji
Interior Features
Basement: Concrete Block, Unfinished
Accessibility: Doors 36+, Door Lever Handles
Utilities
Water: Private, Well
Sewer: Private
Other Utilities: Electric Separate,Heating Separate,Hot Water Separate
Heating: Natural Gas, Fireplace, Forced Air
Exterior / Lot Features
Attached Garage: Attached Garage
Garage Spaces: 1
Open Parking: 10
Parking Description: Attached Garage, Driveway - Gravel, Garage Door Opener, Heated Garage, Insulated Garage, RV Access/Parking
Exterior: Cedar, Brick Veneer
Lot Dimensions: 375 x 1460 x 477 x 1481
Zoning: Business/Commercial,Residential-Multi-Family
Additional Exterior/Lot Features: Land Inclusions - Building,Land
Driving Directions
From Hwy 2 & 71 intersection travel west on Highway 2 approximately 2.2 miles. Property is located on Highway 2 with sign.
Financial Considerations
Tax/Property ID: 120047100
Tax Amount: 3645.2
Tax Year: 2025
HomeStead Description: Non-Homesteaded
A broker reciprocity listing courtesy: SJ Commercial Advisors
The data relating to real estate for sale on this web site comes in part from the Broker Reciprocity℠ Program of the Regional Multiple Listing Service of Minnesota, Inc. Real estate listings held by brokerage firms other than Edina Realty, Inc. are marked with the Broker Reciprocity℠ logo or the Broker Reciprocity℠ thumbnail and detailed information about them includes the name of the listing brokers. Edina Realty, Inc. is not a Multiple Listing Service (MLS), nor does it offer MLS access. This website is a service of Edina Realty, Inc., a broker Participant of the Regional Multiple Listing Service of Minnesota, Inc. IDX information is provided exclusively for consumers personal, non-commercial use and may not be used for any purpose other than to identify prospective properties consumers may be interested in purchasing. Open House information is subject to change without notice. Information deemed reliable but not guaranteed.
Copyright 2026 Regional Multiple Listing Service of Minnesota, Inc. All Rights Reserved.
Payment Calculator
Interest rate and annual percentage rate (APR) are based on current market conditions, are for informational purposes only, are subject to change without notice and may be subject to pricing add-ons related to property type, loan amount, loan-to-value, credit score and other variables. Estimated closing costs used in the APR calculation are assumed to be paid by the borrower at closing. If the closing costs are financed, the loan, APR and payment amounts will be higher. If the down payment is less than 20%, mortgage insurance may be required and could increase the monthly payment and APR. Contact us for details. Additional loan programs may be available. Accuracy is not guaranteed, and all products may not be available in all borrower's geographical areas and are based on their individual situation. This is not a credit decision or a commitment to lend.
Sales History & Tax Summary for 4156 Swiss Lane NW
Sales History
| Date | Price | |
|---|---|---|
| Currently not available. | ||
Tax Summary
| Tax Year | Estimated Market Value | Total Tax |
|---|---|---|
| Currently not available. | ||
Data powered by ATTOM Data Solutions. Copyright© 2026. Information deemed reliable but not guaranteed.
Schools
Schools nearby 4156 Swiss Lane NW
| Schools in attendance boundaries | Grades | Distance | Rating |
|---|---|---|---|
| Loading... | |||
| Schools nearby | Grades | Distance | Rating |
|---|---|---|---|
| Loading... | |||
Data powered by ATTOM Data Solutions. Copyright© 2026. Information deemed reliable but not guaranteed.
The schools shown represent both the assigned schools and schools by distance based on local school and district attendance boundaries. Attendance boundaries change based on various factors and proximity does not guarantee enrollment eligibility. Please consult your real estate agent and/or the school district to confirm the schools this property is zoned to attend. Information is deemed reliable but not guaranteed.
SchoolDigger ® Rating
The SchoolDigger rating system is a 1-5 scale with 5 as the highest rating. SchoolDigger ranks schools based on test scores supplied by each state's Department of Education. They calculate an average standard score by normalizing and averaging each school's test scores across all tests and grades.
Coming soon properties will soon be on the market, but are not yet available for showings.