4314 N Suncoast Boulevard Crystal River, FL 34428
For Sale MLS# L4946988
4,599 sq ft Commercial
Details for 4314 N Suncoast Boulevard
MLS# L4946988
Description for 4314 N Suncoast Boulevard, Crystal River, FL, 34428
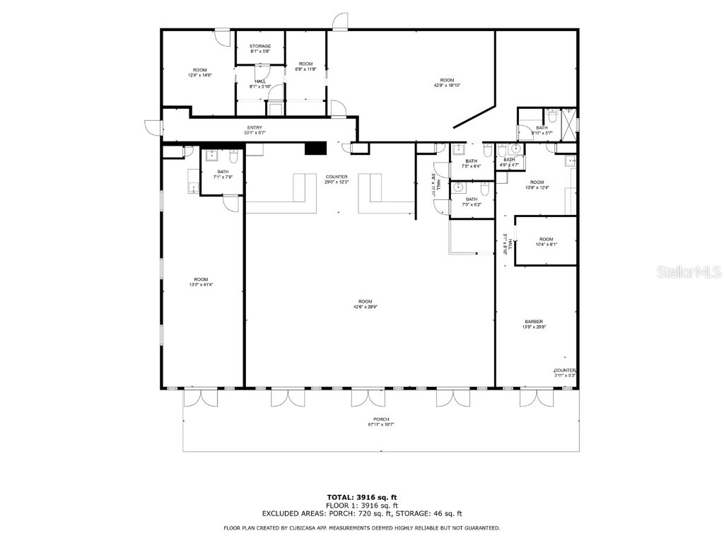
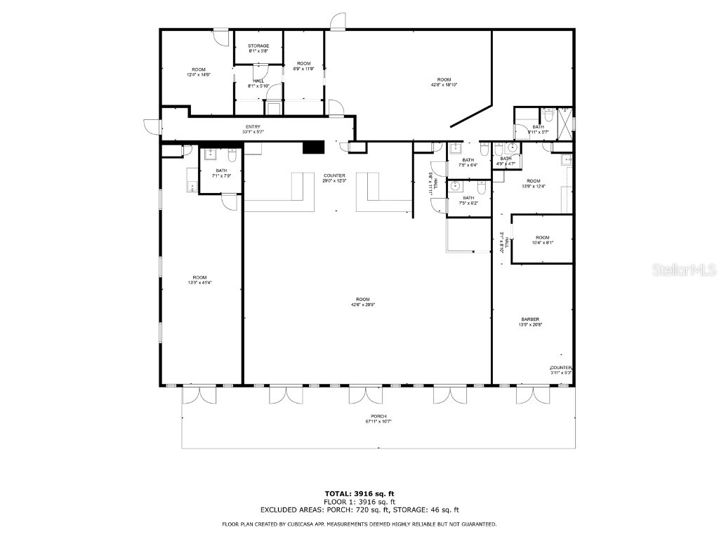
Welcome to Crystal River's newest treasure for commercial ventures. This is a fantastic business opportunity! Positioned directly on US-19 Building features 4599 square feet, with 5 separate front entrances and flexible interior spacing and 3 bathrooms. No need to worry about parking there are more than 30 parking areas. This building offers versatility to suit a variety of business or retail needs. Don't miss this incredible opportunity to own a commercial office building in one of Florida's most sought-after destinations. Whether you're expanding your business or seeking a lucrative investment opportunity, this property offers the space, amenities, and location. Future – Possible “Net Operating Income” (NOI) up to $76,980/year. There are endless possibilities that await within these walls!
Listing Information
Property Type: Commercial, Retail
Status: Active
Lot Size: 0.92 Acres
Square Feet: 4,599 sq ft
Year Built: 1986
Stories: 1 Story
Construction: Block,Concrete,Stone
Subdivision: Thunderbird Estates Unrec
Foundation: Slab
County: Citrus
Utilities
Other Utilities: Municipal Utilities
Cooling: Central Air
Heating: Electric
Exterior / Lot Features
Parking Description: Parking Space(s)
Lot Dimensions: 100x429
Driving Directions
FROM CRYSTAL RIVER HEAD NORTH ON US HWY 19 PASS THE CRYSTAL RIVER MALL 1/2 MILE TO LOCATION ON LEFT.
Financial Considerations
Tax/Property ID: 17E-18S-08-0000-31300-00C0
Tax Amount: 2968
Tax Year: 2023
A broker reciprocity listing courtesy: KELLER WILLIAMS REALTY SMART
Based on information provided by Stellar MLS as distributed by the MLS GRID. Information from the Internet Data Exchange is provided exclusively for consumers’ personal, non-commercial use, and such information may not be used for any purpose other than to identify prospective properties consumers may be interested in purchasing. This data is deemed reliable but is not guaranteed to be accurate by Edina Realty, Inc., or by the MLS. Edina Realty, Inc., is not a multiple listing service (MLS), nor does it offer MLS access.
Copyright 2026 Stellar MLS as distributed by the MLS GRID. All Rights Reserved.
Payment Calculator
Interest rate and annual percentage rate (APR) are based on current market conditions, are for informational purposes only, are subject to change without notice and may be subject to pricing add-ons related to property type, loan amount, loan-to-value, credit score and other variables. Estimated closing costs used in the APR calculation are assumed to be paid by the borrower at closing. If the closing costs are financed, the loan, APR and payment amounts will be higher. If the down payment is less than 20%, mortgage insurance may be required and could increase the monthly payment and APR. Contact us for details. Additional loan programs may be available. Accuracy is not guaranteed, and all products may not be available in all borrower's geographical areas and are based on their individual situation. This is not a credit decision or a commitment to lend.
Sales History & Tax Summary for 4314 N Suncoast Boulevard
Sales History
| Date | Price | |
|---|---|---|
| Currently not available. | ||
Tax Summary
| Tax Year | Estimated Market Value | Total Tax |
|---|---|---|
| Currently not available. | ||
Data powered by ATTOM Data Solutions. Copyright© 2026. Information deemed reliable but not guaranteed.
Schools
Schools nearby 4314 N Suncoast Boulevard
| Schools in attendance boundaries | Grades | Distance | Rating |
|---|---|---|---|
| Loading... | |||
| Schools nearby | Grades | Distance | Rating |
|---|---|---|---|
| Loading... | |||
Data powered by ATTOM Data Solutions. Copyright© 2026. Information deemed reliable but not guaranteed.
The schools shown represent both the assigned schools and schools by distance based on local school and district attendance boundaries. Attendance boundaries change based on various factors and proximity does not guarantee enrollment eligibility. Please consult your real estate agent and/or the school district to confirm the schools this property is zoned to attend. Information is deemed reliable but not guaranteed.
SchoolDigger ® Rating
The SchoolDigger rating system is a 1-5 scale with 5 as the highest rating. SchoolDigger ranks schools based on test scores supplied by each state's Department of Education. They calculate an average standard score by normalizing and averaging each school's test scores across all tests and grades.
Coming soon properties will soon be on the market, but are not yet available for showings.