524 1st Street S Winter Haven, FL 33880
For Sale MLS# L4949798
1,320 sq ft Commercial
Details for 524 1st Street S
MLS# L4949798
Description for 524 1st Street S, Winter Haven, FL, 33880
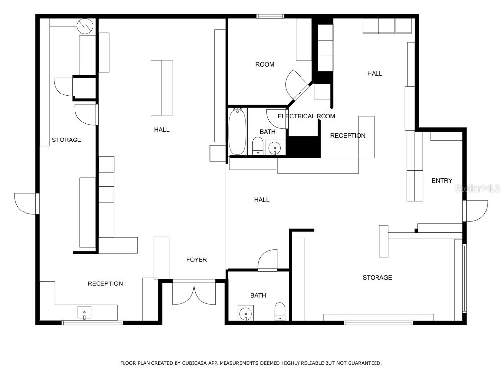
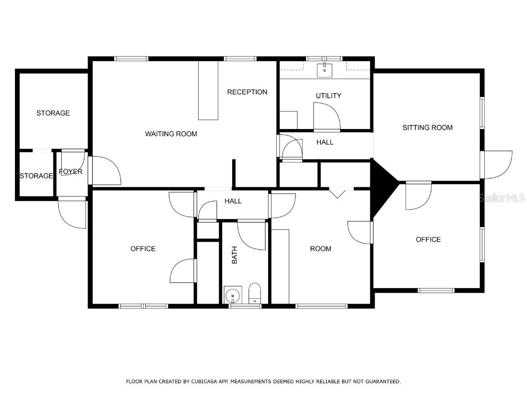
This 1,320± sq. ft. commercial office building is ideally located in the heart of Winter Haven, offering exceptional visibility and high daily traffic along one of the city’s busiest corridors. Zoned CC-3 with an existing medical use, the property provides flexibility for a wide range of professional, medical, or general commercial applications. Inside, you’ll find a well-designed layout that includes three private offices, a reception and waiting area, and a kitchen/break area—all thoughtfully arranged for efficient operations and client comfort. Accessibility and convenience are top priorities, with ramped entry points at both doors, ADA-compliant access, and a well-maintained parking lot that easily accommodates both clients and staff. Important Note: This property is listed separately but offered in conjunction with 632 1st St S, Winter Haven, FL 33880 (MLS# L4949801). Each building is priced individually, but together they present a rare opportunity to secure two adjacent commercial properties in a thriving, high-traffic location. Whether you’re establishing or expanding a medical office, professional workspace, or other approved commercial use, this property delivers the ideal combination of visibility, versatility, and long-term investment potential. Schedule your private tour today and experience all this space has to offer!
Listing Information
Property Type: Commercial, Mixed Use
Status: Active
Lot Size: 0.23 Acres
Square Feet: 1,320 sq ft
Year Built: 1942
Construction: Stucco,Wood Frame
Subdivision: Van Sickle C H Sub
Foundation: Stem Wall
County: Polk
Interior Features
Doors/Windows: Blinds
Utilities
Water: Public
Sewer: Public Sewer
Cooling: Central Air
Heating: Central
Exterior / Lot Features
Parking Description: Parking Space(s)
Roof: Shingle
Community Features
Security Features: Security System
Driving Directions
From I-4 Eastbound: Take Exit 48 for County Road 557 toward Lake Alfred/Winter Haven. Turn right onto CR-557 South and follow for approximately 6.7 miles. Merge onto US-17 South (becomes 6th Street NW in Winter Haven) and continue for about 5.8 miles. Turn left onto Avenue G SW. Turn right onto 1st Street S. Your destination will be on the right.
Financial Considerations
Terms: Cash,Conventional,Other
Tax/Property ID: 26-28-28-615500-000060
Tax Amount: 3282
Tax Year: 2023
A broker reciprocity listing courtesy: KELLER WILLIAMS REALTY SMART
Based on information provided by Stellar MLS as distributed by the MLS GRID. Information from the Internet Data Exchange is provided exclusively for consumers’ personal, non-commercial use, and such information may not be used for any purpose other than to identify prospective properties consumers may be interested in purchasing. This data is deemed reliable but is not guaranteed to be accurate by Edina Realty, Inc., or by the MLS. Edina Realty, Inc., is not a multiple listing service (MLS), nor does it offer MLS access.
Copyright 2025 Stellar MLS as distributed by the MLS GRID. All Rights Reserved.
Payment Calculator
Interest rate and annual percentage rate (APR) are based on current market conditions, are for informational purposes only, are subject to change without notice and may be subject to pricing add-ons related to property type, loan amount, loan-to-value, credit score and other variables. Estimated closing costs used in the APR calculation are assumed to be paid by the borrower at closing. If the closing costs are financed, the loan, APR and payment amounts will be higher. If the down payment is less than 20%, mortgage insurance may be required and could increase the monthly payment and APR. Contact us for details. Additional loan programs may be available. Accuracy is not guaranteed, and all products may not be available in all borrower's geographical areas and are based on their individual situation. This is not a credit decision or a commitment to lend.
Sales History & Tax Summary for 524 1st Street S
Sales History
| Date | Price | Change |
|---|---|---|
| Currently not available. | ||
Tax Summary
| Tax Year | Estimated Market Value | Total Tax |
|---|---|---|
| Currently not available. | ||
Data powered by ATTOM Data Solutions. Copyright© 2025. Information deemed reliable but not guaranteed.
Schools
Schools nearby 524 1st Street S
| Schools in attendance boundaries | Grades | Distance | Rating |
|---|---|---|---|
| Loading... | |||
| Schools nearby | Grades | Distance | Rating |
|---|---|---|---|
| Loading... | |||
Data powered by ATTOM Data Solutions. Copyright© 2025. Information deemed reliable but not guaranteed.
The schools shown represent both the assigned schools and schools by distance based on local school and district attendance boundaries. Attendance boundaries change based on various factors and proximity does not guarantee enrollment eligibility. Please consult your real estate agent and/or the school district to confirm the schools this property is zoned to attend. Information is deemed reliable but not guaranteed.
SchoolDigger ® Rating
The SchoolDigger rating system is a 1-5 scale with 5 as the highest rating. SchoolDigger ranks schools based on test scores supplied by each state's Department of Education. They calculate an average standard score by normalizing and averaging each school's test scores across all tests and grades.
Coming soon properties will soon be on the market, but are not yet available for showings.