$1,250,000
661 E Altamonte Drive #231 Altamonte Springs, FL 32701
For Sale MLS# O6345479
3,467 sq ft Commercial
Details for 661 E Altamonte Drive #231
MLS# O6345479
Description for 661 E Altamonte Drive #231, Altamonte Springs, FL, 32701
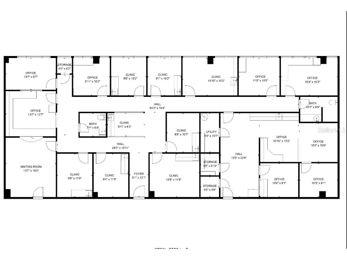
Property Description 3,467 SF Fully Built-Out Medical Office Adjacent to AdventHealth This 3,467 SF medical office is located within the AdventHealth Altamonte Springs campus, offering a prime opportunity for healthcare professionals seeking a high-visibility, convenient location. The suite is fully built-out and move-in ready, featuring a versatile layout with specialized medical infrastructure suitable for a variety of healthcare practices. The floorplan includes nine private offices and nine clinic/exam rooms, along with procedure spaces, nurse stations, restrooms, and a welcoming waiting area. Ample storage and administrative space support efficient daily operations, while the design ensures smooth patient flow and a professional environment for both staff and visitors. Directly adjacent to AdventHealth, this medical office provides seamless access to the hospital’s state-of-the-art facilities, making it ideal for medical practitioners who need to collaborate closely with hospital staff or wish to benefit from increased patient referrals. The office is filled with natural light, creating a professional and welcoming atmosphere. With its prime campus location, high-quality finishes, and the convenience of a move-in-ready design, this property is an excellent choice for healthcare professionals looking to establish or expand their practice in one of Altamonte Springs’ most desirable medical hubs. Contact us today to schedule a tour and learn more about this exceptional medical office space! Location Description Located on the AdventHealth Altamonte Springs campus, this office offers unmatched convenience for medical professionals. Situated near major highways such as SR 436 and I-4, the office provides easy access to the broader Orlando area, while being nestled within a thriving medical and commercial district. The proximity to retail centers, dining, and other medical services enhances the location’s appeal to both practitioners and patients alike. Highlights - 3,467 SF of Fully Built-Out Medical Office Space – Flexible layout suitable for various medical uses, ready for immediate occupancy - Located Adjacent to AdventHealth – Seamless integration with the hospital’s facilities and staff for enhanced patient care and collaboration - Multiple Exam Rooms & Procedure Rooms – Fully equipped spaces for examinations and minor procedures - Nurse’s Station, Doctor’s Office, and Waiting Area – Optimized design for efficient patient flow - Two Restrooms & Both Main and Rear Entrances – Convenient access for patients and staff - Natural Light Throughout – Large windows that create a bright, welcoming atmosphere - Move-In Ready – High-end finishes with medical-grade infrastructure throughout - Ample Parking & Valet Services – Excellent parking options for both staff and patients, including valet services at the entrance - Well-Maintained Property – Located within a well-maintained medical complex with a financially robust condo association
Listing Information
Property Type: Commercial, Office
Status: Active
Lot Size: 0.01 Acres
Square Feet: 3,467 sq ft
Year Built: 1987
Construction: Concrete
Subdivision: Altamonte Medical Plaza
Foundation: Slab
County: Seminole
Utilities
Cooling: Central Air
Driving Directions
Located on the AdventHealth Altamonte Springs campus, this office offers unmatched convenience for medical professionals. Situated near major highways such as SR 436 and I-4, the office provides easy access to the broader Orlando area, while being nestled within a thriving medical and commercial district. The proximity to retail centers, dining, and other medical services enhances the location’s appeal to both practitioners and patients alike.
Financial Considerations
Tax/Property ID: 13-21-29-523-0000-2310
Tax Amount: 9188.38
Tax Year: 2024
A broker reciprocity listing courtesy: BEYOND COMMERCIAL
Based on information provided by Stellar MLS as distributed by the MLS GRID. Information from the Internet Data Exchange is provided exclusively for consumers’ personal, non-commercial use, and such information may not be used for any purpose other than to identify prospective properties consumers may be interested in purchasing. This data is deemed reliable but is not guaranteed to be accurate by Edina Realty, Inc., or by the MLS. Edina Realty, Inc., is not a multiple listing service (MLS), nor does it offer MLS access.
Copyright 2025 Stellar MLS as distributed by the MLS GRID. All Rights Reserved.
Payment Calculator
Interest rate and annual percentage rate (APR) are based on current market conditions, are for informational purposes only, are subject to change without notice and may be subject to pricing add-ons related to property type, loan amount, loan-to-value, credit score and other variables. Estimated closing costs used in the APR calculation are assumed to be paid by the borrower at closing. If the closing costs are financed, the loan, APR and payment amounts will be higher. If the down payment is less than 20%, mortgage insurance may be required and could increase the monthly payment and APR. Contact us for details. Additional loan programs may be available. Accuracy is not guaranteed, and all products may not be available in all borrower's geographical areas and are based on their individual situation. This is not a credit decision or a commitment to lend.
Sales History & Tax Summary for 661 E Altamonte Drive #231
Sales History
| Date | Price | Change |
|---|---|---|
| Currently not available. | ||
Tax Summary
| Tax Year | Estimated Market Value | Total Tax |
|---|---|---|
| Currently not available. | ||
Data powered by ATTOM Data Solutions. Copyright© 2025. Information deemed reliable but not guaranteed.
Schools
Schools nearby 661 E Altamonte Drive #231
| Schools in attendance boundaries | Grades | Distance | Rating |
|---|---|---|---|
| Loading... | |||
| Schools nearby | Grades | Distance | Rating |
|---|---|---|---|
| Loading... | |||
Data powered by ATTOM Data Solutions. Copyright© 2025. Information deemed reliable but not guaranteed.
The schools shown represent both the assigned schools and schools by distance based on local school and district attendance boundaries. Attendance boundaries change based on various factors and proximity does not guarantee enrollment eligibility. Please consult your real estate agent and/or the school district to confirm the schools this property is zoned to attend. Information is deemed reliable but not guaranteed.
SchoolDigger ® Rating
The SchoolDigger rating system is a 1-5 scale with 5 as the highest rating. SchoolDigger ranks schools based on test scores supplied by each state's Department of Education. They calculate an average standard score by normalizing and averaging each school's test scores across all tests and grades.
Coming soon properties will soon be on the market, but are not yet available for showings.