$299,000
704 Front Street Brainerd, MN 56401
For Sale MLS# 6707813
6,168 sq ft Commercial
Details for 704 Front Street
MLS# 6707813
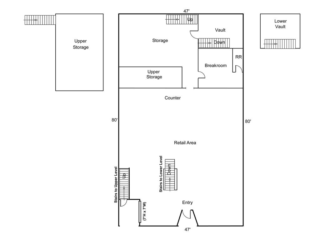
Description for 704 Front Street, Brainerd, MN, 56401
Discover a rare investment opportunity in Historic Downtown Brainerd. Step into the rich history and vibrant potential of this iconic commercial building, ideally located in the heart of Downtown Brainerd. Dating back to the early 1900s, this storied property was home to Murphy’s Dry Goods for over half a century, followed by the well-known Iron Hills Pawn Shop—a beloved local staple. Now, the stage is set for a new chapter. With its prime location and timeless charm, this is the perfect opportunity for a visionary entrepreneur to reimagine the main level retail space and bring fresh energy to the community. Upstairs, a spacious unfinished apartment offers the flexibility to live on-site or generate passive income through rental. Whether you’re an investor, business owner, or history enthusiast, this building offers a unique blend of legacy and opportunity. Don’t miss your chance to own a piece of Brainerd’s past—while shaping its future.
Listing Information
Property Type: Commercial, Apartments and Retail
Status: Active
Lot Size: 0.09 Acres
Square Feet: 6,168 sq ft
Year Built: 1909
Foundation: 3,520 sq ft
Stories: 2 Stories
Subdivision: Town Of Brainerd & First Add Bra
Number Of Units Total: 1
Current Use: Commercial,Residential,Retail,Vacant
County: Crow Wing
Days On Market: 314
Construction Status: Previously Owned
School Information
District: 181 - Brainerd
Interior Features
Basement: Concrete Block, Storage Space, Stone, Unfinished
Accessibility: Other
Utilities
Water: City Water/Connected
Sewer: City Sewer/Connected
Other Utilities: Electric Common,Heating Common,Hot Water Common
Cooling: Central
Heating: Forced Air, Natural Gas
Exterior / Lot Features
Parking Description: On-Street Parking Only, Garage Door Height - 7, Garage Door Width - 7
Exterior: Block, Brick/Stone, Metal
Roof: Flat, Rubber
Lot Dimensions: 80 x 46.58
Zoning: Business/Commercial
Topography: Level
Additional Exterior/Lot Features: Overhead Doors, Land Inclusions - Building,Land, Road Frontage - Paved Streets, Sidewalks, City, Curbs, Street Lights, Storm Sewer
Driving Directions
From Hwy 210 (Washington Street) / Hwy 371 (S 6th Street) intersection in Brainerd - South on S 6th Street 1 Block - East on Front Street - Building is on the South, just after S 7th Street
Financial Considerations
Tax/Property ID: 41241475
Tax Amount: 2584
Tax Year: 2025
HomeStead Description: Non-Homesteaded
A broker reciprocity listing courtesy: Close-Converse Commercial Prop
The data relating to real estate for sale on this web site comes in part from the Broker Reciprocity℠ Program of the Regional Multiple Listing Service of Minnesota, Inc. Real estate listings held by brokerage firms other than Edina Realty, Inc. are marked with the Broker Reciprocity℠ logo or the Broker Reciprocity℠ thumbnail and detailed information about them includes the name of the listing brokers. Edina Realty, Inc. is not a Multiple Listing Service (MLS), nor does it offer MLS access. This website is a service of Edina Realty, Inc., a broker Participant of the Regional Multiple Listing Service of Minnesota, Inc. IDX information is provided exclusively for consumers personal, non-commercial use and may not be used for any purpose other than to identify prospective properties consumers may be interested in purchasing. Open House information is subject to change without notice. Information deemed reliable but not guaranteed.
Copyright 2026 Regional Multiple Listing Service of Minnesota, Inc. All Rights Reserved.
Payment Calculator
Interest rate and annual percentage rate (APR) are based on current market conditions, are for informational purposes only, are subject to change without notice and may be subject to pricing add-ons related to property type, loan amount, loan-to-value, credit score and other variables. Estimated closing costs used in the APR calculation are assumed to be paid by the borrower at closing. If the closing costs are financed, the loan, APR and payment amounts will be higher. If the down payment is less than 20%, mortgage insurance may be required and could increase the monthly payment and APR. Contact us for details. Additional loan programs may be available. Accuracy is not guaranteed, and all products may not be available in all borrower's geographical areas and are based on their individual situation. This is not a credit decision or a commitment to lend.
Sales History & Tax Summary for 704 Front Street
Sales History
| Date | Price | |
|---|---|---|
| Currently not available. | ||
Tax Summary
| Tax Year | Estimated Market Value | Total Tax |
|---|---|---|
| Currently not available. | ||
Data powered by ATTOM Data Solutions. Copyright© 2026. Information deemed reliable but not guaranteed.
Schools
Schools nearby 704 Front Street
| Schools in attendance boundaries | Grades | Distance | Rating |
|---|---|---|---|
| Loading... | |||
| Schools nearby | Grades | Distance | Rating |
|---|---|---|---|
| Loading... | |||
Data powered by ATTOM Data Solutions. Copyright© 2026. Information deemed reliable but not guaranteed.
The schools shown represent both the assigned schools and schools by distance based on local school and district attendance boundaries. Attendance boundaries change based on various factors and proximity does not guarantee enrollment eligibility. Please consult your real estate agent and/or the school district to confirm the schools this property is zoned to attend. Information is deemed reliable but not guaranteed.
SchoolDigger ® Rating
The SchoolDigger rating system is a 1-5 scale with 5 as the highest rating. SchoolDigger ranks schools based on test scores supplied by each state's Department of Education. They calculate an average standard score by normalizing and averaging each school's test scores across all tests and grades.
Coming soon properties will soon be on the market, but are not yet available for showings.