7046 Brooklyn Boulevard Brooklyn Center, MN 55429
For Sale MLS# 7016765
Other
Listed by: Edina Realty, Inc.
Details for 7046 Brooklyn Boulevard
MLS# 7016765
Description for 7046 Brooklyn Boulevard, Brooklyn Center, MN, 55429
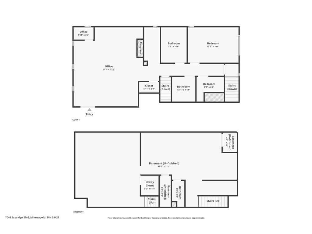
This well-maintained private end-unit office space offers extensive updates and flexible potential throughout. Improvements completed within the last three years include a new stairway, updated bathrooms, new flooring, and a fully rebuilt HVAC system installed from the ground up to meet city code. The property features two separate furnaces and air-conditioning systems serving the upper and lower levels. The upper level has been significantly updated, while the lower level is fully up to city code and ready for custom finishes and partitioning. All HVAC, electrical, and plumbing have been completed. Enjoy easy access to freeways, restaurants, and shopping, along with professionally managed association services.
Listing Information
Property Type: Commercial
Status: Active
Lot Size: 0.16 Acres
Square Feet: 2,244 sq ft
Year Built: 1985
Foundation: 1,122 sq ft
Subdivision: Condo 0529 Blvd Plaza Condo
Number Of Units Total: 1
Current Use: Office,Other,Professional Service
County: Hennepin
Days On Market: 25
Construction Status: Previously Owned
School Information
District: 279 - Osseo
Interior Features
Appliances: Refrigerator, Gas Water Heater
Basement: Full, Partial Finished
Accessibility: Grab Bars In Bathroom, Hallways 42+
Utilities
Water: City Water/Connected
Sewer: City Sewer/Connected
Other Utilities: Electric Separate,Heating Separate,Hot Water Separate
Cooling: Central
Heating: Forced Air, Natural Gas
Exterior / Lot Features
Parking Description: Paved Lot, Garage Sq Ft - 0.00
Exterior: Brick/Stone
Lot Dimensions: Irregular
Zoning: Business/Commercial
Additional Exterior/Lot Features: Land Inclusions - Building,Leases
Driving Directions
Brooklyn Blvd to Brooklyn Plaza parking lot.
Financial Considerations
Tax/Property ID: 2711921330086
Tax Amount: 7717.28
Tax Year: 2025
HomeStead Description: Non-Homesteaded
The data relating to real estate for sale on this web site comes in part from the Broker Reciprocity℠ Program of the Regional Multiple Listing Service of Minnesota, Inc. Real estate listings held by brokerage firms other than Edina Realty, Inc. are marked with the Broker Reciprocity℠ logo or the Broker Reciprocity℠ thumbnail and detailed information about them includes the name of the listing brokers. Edina Realty, Inc. is not a Multiple Listing Service (MLS), nor does it offer MLS access. This website is a service of Edina Realty, Inc., a broker Participant of the Regional Multiple Listing Service of Minnesota, Inc. IDX information is provided exclusively for consumers personal, non-commercial use and may not be used for any purpose other than to identify prospective properties consumers may be interested in purchasing. Open House information is subject to change without notice. Information deemed reliable but not guaranteed.
Copyright 2026 Regional Multiple Listing Service of Minnesota, Inc. All Rights Reserved.
Payment Calculator
Interest rate and annual percentage rate (APR) are based on current market conditions, are for informational purposes only, are subject to change without notice and may be subject to pricing add-ons related to property type, loan amount, loan-to-value, credit score and other variables. Estimated closing costs used in the APR calculation are assumed to be paid by the borrower at closing. If the closing costs are financed, the loan, APR and payment amounts will be higher. If the down payment is less than 20%, mortgage insurance may be required and could increase the monthly payment and APR. Contact us for details. Additional loan programs may be available. Accuracy is not guaranteed, and all products may not be available in all borrower's geographical areas and are based on their individual situation. This is not a credit decision or a commitment to lend.
Sales History & Tax Summary for 7046 Brooklyn Boulevard
Sales History
| Date | Price | |
|---|---|---|
| Currently not available. | ||
Tax Summary
| Tax Year | Estimated Market Value | Total Tax |
|---|---|---|
| Currently not available. | ||
Data powered by ATTOM Data Solutions. Copyright© 2026. Information deemed reliable but not guaranteed.
Schools
Schools nearby 7046 Brooklyn Boulevard
| Schools in attendance boundaries | Grades | Distance | Rating |
|---|---|---|---|
| Loading... | |||
| Schools nearby | Grades | Distance | Rating |
|---|---|---|---|
| Loading... | |||
Data powered by ATTOM Data Solutions. Copyright© 2026. Information deemed reliable but not guaranteed.
The schools shown represent both the assigned schools and schools by distance based on local school and district attendance boundaries. Attendance boundaries change based on various factors and proximity does not guarantee enrollment eligibility. Please consult your real estate agent and/or the school district to confirm the schools this property is zoned to attend. Information is deemed reliable but not guaranteed.
SchoolDigger ® Rating
The SchoolDigger rating system is a 1-5 scale with 5 as the highest rating. SchoolDigger ranks schools based on test scores supplied by each state's Department of Education. They calculate an average standard score by normalizing and averaging each school's test scores across all tests and grades.
Coming soon properties will soon be on the market, but are not yet available for showings.