$162,600
718 Washington Avenue N #201 Minneapolis, MN 55401
Active Contingent MLS# 6673186
1,626 sq ft Commercial
Details for 718 Washington Avenue N #201
MLS# 6673186
Description for 718 Washington Avenue N #201, Minneapolis, MN, 55401
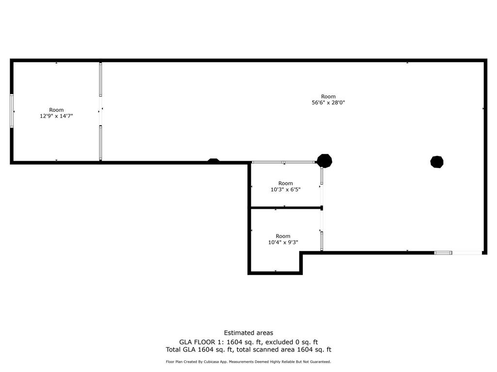
Fantastic value opportunity to own a 2nd floor business condo at an incredible price in the Soho building located in the Warehouse District of Minneapolis. For Sale or Lease – 1, 626 sq. ft. of office space - perfect for small business or startup. Two offices, glass conference room, and additional large open co-working space. Association dues include heat, A/C, management, reserves and insurance. Set in the heart of the North Loop in downtown Minneapolis.
Listing Information
Property Type: Commercial, Apartments and Retail
Status: Active Contingent-Inspection
Lot Size: 0.51 Acres
Square Feet: 1,626 sq ft
Year Built: 1922
Foundation: 1,626 sq ft
Subdivision: Cic 1674 Soho Comm
Number Of Units Total: 1
Current Use: Office
County: Hennepin
Days On Market: 376
Construction Status: Previously Owned
School Information
District: 1 - Minneapolis
Interior Features
Accessibility: Elevator
Utilities
Water: City Water/Connected
Sewer: City Sewer - In Street
Other Utilities: Electric Common,Heating Common
Cooling: Central
Heating: Forced Air, Natural Gas
Exterior / Lot Features
Parking Description: On-Street Parking Only, Garage Dimensions - 0, Garage Door Height - 0, Garage Door Width - 0, Garage Sq Ft - 0.00
Exterior: Brick/Stone
Zoning: Business/Commercial,Residential-Multi-Family
Additional Exterior/Lot Features: Land Inclusions - Building
Driving Directions
On Washington Ave between 7th & 8th
Financial Considerations
Tenant Pays: See Remarks
Tax/Property ID: 2202924120568
Tax Amount: 7259.4
Tax Year: 2024
HomeStead Description: Non-Homesteaded
A broker reciprocity listing courtesy: Engel & Volkers Minneapolis Downtown
The data relating to real estate for sale on this web site comes in part from the Broker Reciprocity℠ Program of the Regional Multiple Listing Service of Minnesota, Inc. Real estate listings held by brokerage firms other than Edina Realty, Inc. are marked with the Broker Reciprocity℠ logo or the Broker Reciprocity℠ thumbnail and detailed information about them includes the name of the listing brokers. Edina Realty, Inc. is not a Multiple Listing Service (MLS), nor does it offer MLS access. This website is a service of Edina Realty, Inc., a broker Participant of the Regional Multiple Listing Service of Minnesota, Inc. IDX information is provided exclusively for consumers personal, non-commercial use and may not be used for any purpose other than to identify prospective properties consumers may be interested in purchasing. Open House information is subject to change without notice. Information deemed reliable but not guaranteed.
Copyright 2026 Regional Multiple Listing Service of Minnesota, Inc. All Rights Reserved.
Payment Calculator
Interest rate and annual percentage rate (APR) are based on current market conditions, are for informational purposes only, are subject to change without notice and may be subject to pricing add-ons related to property type, loan amount, loan-to-value, credit score and other variables. Estimated closing costs used in the APR calculation are assumed to be paid by the borrower at closing. If the closing costs are financed, the loan, APR and payment amounts will be higher. If the down payment is less than 20%, mortgage insurance may be required and could increase the monthly payment and APR. Contact us for details. Additional loan programs may be available. Accuracy is not guaranteed, and all products may not be available in all borrower's geographical areas and are based on their individual situation. This is not a credit decision or a commitment to lend.
Sales History & Tax Summary for 718 Washington Avenue N #201
Sales History
| Date | Price | |
|---|---|---|
| Currently not available. | ||
Tax Summary
| Tax Year | Estimated Market Value | Total Tax |
|---|---|---|
| Currently not available. | ||
Data powered by ATTOM Data Solutions. Copyright© 2026. Information deemed reliable but not guaranteed.
Schools
Schools nearby 718 Washington Avenue N #201
| Schools in attendance boundaries | Grades | Distance | Rating |
|---|---|---|---|
| Loading... | |||
| Schools nearby | Grades | Distance | Rating |
|---|---|---|---|
| Loading... | |||
Data powered by ATTOM Data Solutions. Copyright© 2026. Information deemed reliable but not guaranteed.
The schools shown represent both the assigned schools and schools by distance based on local school and district attendance boundaries. Attendance boundaries change based on various factors and proximity does not guarantee enrollment eligibility. Please consult your real estate agent and/or the school district to confirm the schools this property is zoned to attend. Information is deemed reliable but not guaranteed.
SchoolDigger ® Rating
The SchoolDigger rating system is a 1-5 scale with 5 as the highest rating. SchoolDigger ranks schools based on test scores supplied by each state's Department of Education. They calculate an average standard score by normalizing and averaging each school's test scores across all tests and grades.
Coming soon properties will soon be on the market, but are not yet available for showings.