$960,000
7630 145th Street W Apple Valley, MN 55124
For Sale MLS# 7000725
8,236 sq ft Commercial
Details for 7630 145th Street W
MLS# 7000725
Description for 7630 145th Street W, Apple Valley, MN, 55124
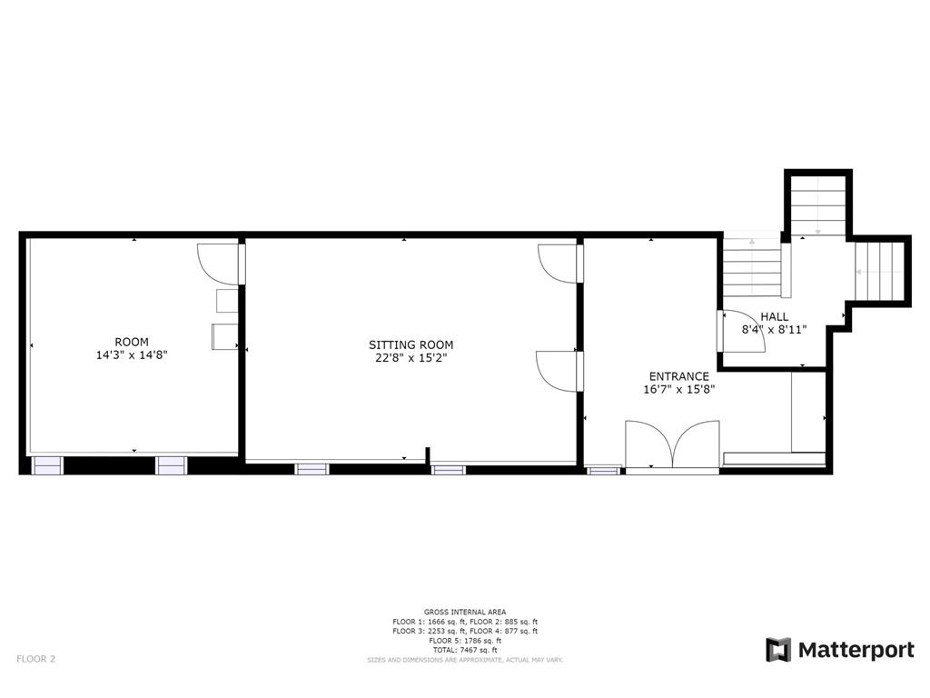
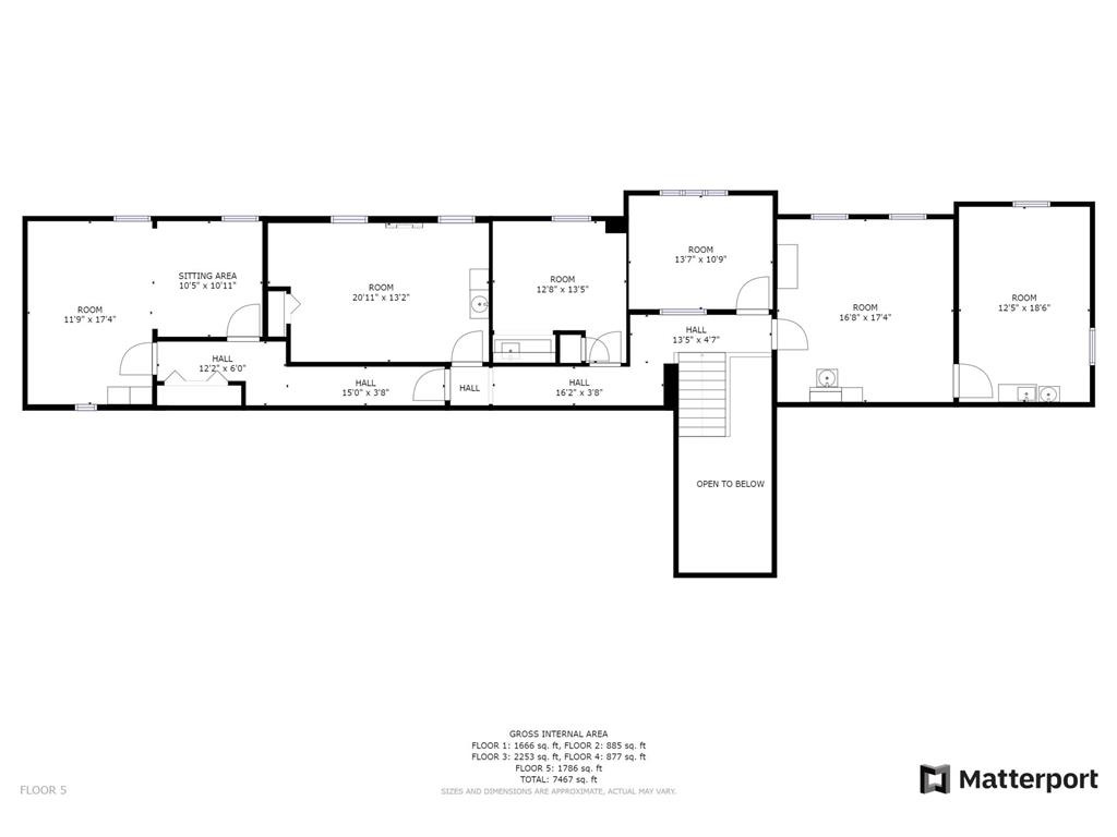
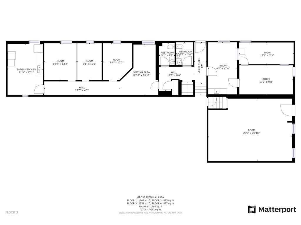
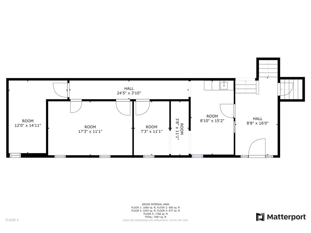
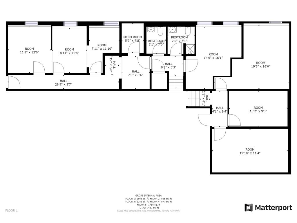
Positioned for immediate cash flow with built-in upside, this commercial retail and office building presents a compelling acquisition in a high-traffic, high-demand Apple Valley location, featuring 14 individual retail/office suites with 27 surface parking stalls that provide strong visibility, accessibility, and functionality for a wide range of tenants; situated on a flat, commercially zoned 0.52-acre lot, the property benefits from a newer concrete driveway and recently updated parking area, helping minimize near-term capital expenditures, while detailed floorplans are included in the listing photos to clearly outline suite layouts and dimensions; from an investment standpoint, the numbers tell a strong story with current total rental income of $9,555 per month, below-market rents across existing tenants, and multiple vacant units, creating a clear value-add opportunity through lease-up and rent optimization in one of Apple Valley’s most active commercial corridors. New roof in the past year, and electrical panels were updated in the past 2 years. All tenants are month-to-month.
Listing Information
Property Type: Commercial, Business Opportunity,Office,Retail/Shopping Center
Status: Active
Lot Size: 0.52 Acres
Square Feet: 8,236 sq ft
Year Built: 1979
Foundation: 2,344 sq ft
Stories: Three Or More
Subdivision: Valley Comm Park 2nd
Number Of Units Total: 14
Current Use: Beauty/Barber Shop,Business Service,Commercial,Office,Other,Professional Service,Retail,Vacant
County: Dakota
Days On Market: 87
Construction Status: Previously Owned
School Information
District: 196 - Rosemount-Apple Valley-Eagan
Interior Features
Basement: Full, Walkout
Accessibility: Wheelchair Ramp, Other
Utilities
Water: City Water/Connected
Sewer: City Sewer/Connected
Other Utilities: Electric Common,Heating Common,Hot Water Common
Cooling: Central
Heating: Forced Air, Baseboard, Natural Gas
Exterior / Lot Features
Open Parking: 27
Parking Description: Unassigned, Uncovered/Open, Driveway - Concrete, Parking Lot, Paved Lot
Exterior: Wood
Roof: Age 8 Years or Less, Asphalt Shingles, Pitched
Lot Dimensions: 197x115
Zoning: Business/Commercial
Topography: Level
Additional Exterior/Lot Features: Tree Coverage - Light, Public Transit (w/in 6 blks), Land Inclusions - Building,Land,Leases, Road Frontage - Paved Streets, City, Sidewalks, Street Lights, Storm Sewer
Driving Directions
Hwy 42 & Cedar Avenue
Financial Considerations
Owner Pays: All Utilities,Electric,Fuel,Insurance,Janitorial,Lawn,Maintenance/Repair,Snow,Taxes,Trash
Gross Income: 114660
Expense: 26586
Tax/Property ID: 018120105040
Tax Amount: 19866
Tax Year: 2025
HomeStead Description: Non-Homesteaded
A broker reciprocity listing courtesy: RE/MAX Results
The data relating to real estate for sale on this web site comes in part from the Broker Reciprocity℠ Program of the Regional Multiple Listing Service of Minnesota, Inc. Real estate listings held by brokerage firms other than Edina Realty, Inc. are marked with the Broker Reciprocity℠ logo or the Broker Reciprocity℠ thumbnail and detailed information about them includes the name of the listing brokers. Edina Realty, Inc. is not a Multiple Listing Service (MLS), nor does it offer MLS access. This website is a service of Edina Realty, Inc., a broker Participant of the Regional Multiple Listing Service of Minnesota, Inc. IDX information is provided exclusively for consumers personal, non-commercial use and may not be used for any purpose other than to identify prospective properties consumers may be interested in purchasing. Open House information is subject to change without notice. Information deemed reliable but not guaranteed.
Copyright 2026 Regional Multiple Listing Service of Minnesota, Inc. All Rights Reserved.
Payment Calculator
Interest rate and annual percentage rate (APR) are based on current market conditions, are for informational purposes only, are subject to change without notice and may be subject to pricing add-ons related to property type, loan amount, loan-to-value, credit score and other variables. Estimated closing costs used in the APR calculation are assumed to be paid by the borrower at closing. If the closing costs are financed, the loan, APR and payment amounts will be higher. If the down payment is less than 20%, mortgage insurance may be required and could increase the monthly payment and APR. Contact us for details. Additional loan programs may be available. Accuracy is not guaranteed, and all products may not be available in all borrower's geographical areas and are based on their individual situation. This is not a credit decision or a commitment to lend.
Sales History & Tax Summary for 7630 145th Street W
Sales History
| Date | Price | |
|---|---|---|
| Currently not available. | ||
Tax Summary
| Tax Year | Estimated Market Value | Total Tax |
|---|---|---|
| Currently not available. | ||
Data powered by ATTOM Data Solutions. Copyright© 2026. Information deemed reliable but not guaranteed.
Schools
Schools nearby 7630 145th Street W
| Schools in attendance boundaries | Grades | Distance | Rating |
|---|---|---|---|
| Loading... | |||
| Schools nearby | Grades | Distance | Rating |
|---|---|---|---|
| Loading... | |||
Data powered by ATTOM Data Solutions. Copyright© 2026. Information deemed reliable but not guaranteed.
The schools shown represent both the assigned schools and schools by distance based on local school and district attendance boundaries. Attendance boundaries change based on various factors and proximity does not guarantee enrollment eligibility. Please consult your real estate agent and/or the school district to confirm the schools this property is zoned to attend. Information is deemed reliable but not guaranteed.
SchoolDigger ® Rating
The SchoolDigger rating system is a 1-5 scale with 5 as the highest rating. SchoolDigger ranks schools based on test scores supplied by each state's Department of Education. They calculate an average standard score by normalizing and averaging each school's test scores across all tests and grades.
Coming soon properties will soon be on the market, but are not yet available for showings.