$899,000
816 NE 4th Street Grand Rapids, MN 55744
For Sale MLS# 6799971
8,900 sq ft Commercial
Details for 816 NE 4th Street
MLS# 6799971
Description for 816 NE 4th Street, Grand Rapids, MN, 55744
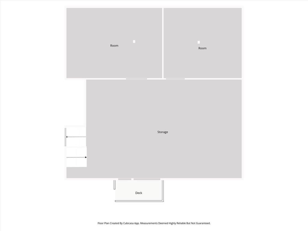
For over 44 years, this location has been the successful home of a furniture store. The asking price includes the inventory making it a turn-key opportunity! Located on a bustling stretch of US Highway with over 10,000 vehicles passing daily, this spacious retail and warehouse property offers exceptional visibility and accessibility. The property includes: 9,000 sq. ft. of Showroom Space: Perfect for displaying products in a high-traffic, customer-friendly environment. 5,000 sq. ft. of Warehouse Space: Featuring convenient loading docks, ideal for storage and operations. Real estate available separate from the business for a reduced price.
Listing Information
Property Type: Commercial, Business Opportunity
Status: Active
Lot Size: 0.96 Acres
Square Feet: 8,900 sq ft
Year Built: 1945
Foundation: 14,200 sq ft
Subdivision: Third Div Of Grand Rapids
Number Of Units Total: 1
Current Use: Retail
County: Itasca
Days On Market: 161
Construction Status: Previously Owned
School Information
District: 318 - Grand Rapids
Interior Features
Flooring: Carpet,Concrete Slab,Luxury Vinyl Plank
Basement: Poured Concrete
Accessibility: No Stairs External
Utilities
Water: City Water - In Street
Sewer: City Sewer - In Street
Other Utilities: Electric Common
Cooling: Central
Heating: Natural Gas, Forced Air
Exterior / Lot Features
Open Parking: 16
Parking Description: Parking Lot, Storage
Exterior: Metal, Brick/Stone
Roof: Metal, Flat, Tar/Gravel
Lot Dimensions: 50X 120 & 180 X 200
Zoning: Business/Commercial
Additional Exterior/Lot Features: Corner Lot, Land Inclusions - Building,Land, Road Frontage - US Highway
Driving Directions
Highway 169 Grand Rapids
Financial Considerations
Tax/Property ID: 914251450
Tax Amount: 4349
Tax Year: 2025
HomeStead Description: Non-Homesteaded
A broker reciprocity listing courtesy: GRAND PROPERTIES REAL ESTATE
The data relating to real estate for sale on this web site comes in part from the Broker Reciprocity℠ Program of the Regional Multiple Listing Service of Minnesota, Inc. Real estate listings held by brokerage firms other than Edina Realty, Inc. are marked with the Broker Reciprocity℠ logo or the Broker Reciprocity℠ thumbnail and detailed information about them includes the name of the listing brokers. Edina Realty, Inc. is not a Multiple Listing Service (MLS), nor does it offer MLS access. This website is a service of Edina Realty, Inc., a broker Participant of the Regional Multiple Listing Service of Minnesota, Inc. IDX information is provided exclusively for consumers personal, non-commercial use and may not be used for any purpose other than to identify prospective properties consumers may be interested in purchasing. Open House information is subject to change without notice. Information deemed reliable but not guaranteed.
Copyright 2026 Regional Multiple Listing Service of Minnesota, Inc. All Rights Reserved.
Payment Calculator
Interest rate and annual percentage rate (APR) are based on current market conditions, are for informational purposes only, are subject to change without notice and may be subject to pricing add-ons related to property type, loan amount, loan-to-value, credit score and other variables. Estimated closing costs used in the APR calculation are assumed to be paid by the borrower at closing. If the closing costs are financed, the loan, APR and payment amounts will be higher. If the down payment is less than 20%, mortgage insurance may be required and could increase the monthly payment and APR. Contact us for details. Additional loan programs may be available. Accuracy is not guaranteed, and all products may not be available in all borrower's geographical areas and are based on their individual situation. This is not a credit decision or a commitment to lend.
Sales History & Tax Summary for 816 NE 4th Street
Sales History
| Date | Price | |
|---|---|---|
| Currently not available. | ||
Tax Summary
| Tax Year | Estimated Market Value | Total Tax |
|---|---|---|
| Currently not available. | ||
Data powered by ATTOM Data Solutions. Copyright© 2026. Information deemed reliable but not guaranteed.
Schools
Schools nearby 816 NE 4th Street
| Schools in attendance boundaries | Grades | Distance | Rating |
|---|---|---|---|
| Loading... | |||
| Schools nearby | Grades | Distance | Rating |
|---|---|---|---|
| Loading... | |||
Data powered by ATTOM Data Solutions. Copyright© 2026. Information deemed reliable but not guaranteed.
The schools shown represent both the assigned schools and schools by distance based on local school and district attendance boundaries. Attendance boundaries change based on various factors and proximity does not guarantee enrollment eligibility. Please consult your real estate agent and/or the school district to confirm the schools this property is zoned to attend. Information is deemed reliable but not guaranteed.
SchoolDigger ® Rating
The SchoolDigger rating system is a 1-5 scale with 5 as the highest rating. SchoolDigger ranks schools based on test scores supplied by each state's Department of Education. They calculate an average standard score by normalizing and averaging each school's test scores across all tests and grades.
Coming soon properties will soon be on the market, but are not yet available for showings.