8725 N Us 27 Highway Fort White, FL 32038
Pending MLS# GC533096
6,794 sq ft Commercial
Details for 8725 N Us 27 Highway
MLS# GC533096
Description for 8725 N Us 27 Highway, Fort White, FL, 32038
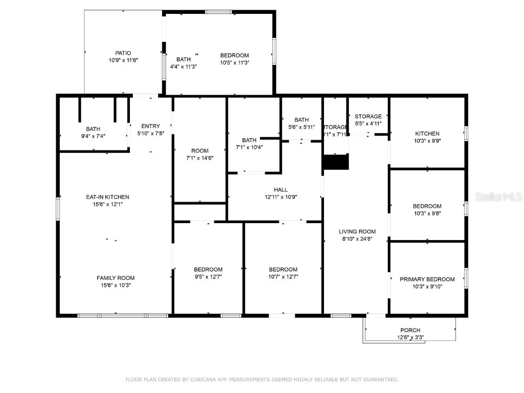
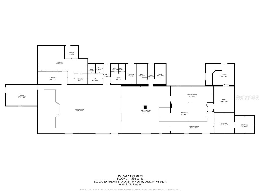
Under contract-accepting backup offers. Owner's are motivated sellers. ATTRACTIVE owner financing available. 9+ acres. 1000' frontage on US 27, Located 1 mile west of Ft. White. a rapidly growing area in North Central Florida. Multi-sourced incomes. An established nightclub. an newly upgraded diner/restaurant & and 5 residential rental units (rooms & Apt in one building) Both buildings have new metal roofs. Purchased in mid 2024, the owner has invested over $150,000 in repairs, upgrades and improvements. The nightclub/diner has (all new in 2024, unless noted) Repainted inside and out building features a "tropical" look.. New 5 ton HVAC on the restaurant building. Some improvements include: security cameras. Signage, and an 80'x80' outside enclosed eating/entertainment area, lighted stage, ample seating and tiki hut. Ample parking on both sides and along US 27, an hookup spot for an R/V or food truck.. In the lounge, the walk in cooler has been refurbished. Behind the bar, Both 8' coolers are new, plus a smaller beverage cooler, kegerator, icemaker, and frozen drink machine. The wrap around bar and tables seat approximately 40. There is a dance floor and stage through doors which can be opened of closed, depending on usage. As a diner/restaurant, currently there is seating for approximately 40. In the kitchen, a new (2024) char grill, flat top cooker, gas oven and 2 fryers. An Ansell fire suppression system. New 1.5 ton mini-split a/c April 2025, and a new salad prep table Aug. 2025. Currently the lounge operates with a beer and wine license, but the owner has met most of the requirements to obtain a class 5 liquor license. for a fraction of it's value. Information upon request. , could be converted other uses. At 3 miles to Itchnetucknee State Park, the rentals could be easily converted to an Air BnB
Listing Information
Property Type: Commercial, Business
Status: Pending
Lot Size: 9.17 Acres
Square Feet: 6,794 sq ft
Year Built: 1950
Stories: 1 Story
Construction: Cement Siding
Construction Display: New Construction
Foundation: Slab
County: Columbia
Construction Status: New Construction
Interior Features
Appliances: Refrigerator
Flooring: Concrete
Additional Interior Features: Furnished, Storage
Utilities
Water: Public
Sewer: Septic Tank
Other Utilities: Electricity Available,Municipal Utilities,Phone Available,Water Connected
Cooling: Central Air, Ductless, Wall/Window Unit(s)
Heating: Heat Pump
Exterior / Lot Features
Parking Description: Parking Space(s)
Roof: Metal
Lot Dimensions: irregular
Additional Exterior/Lot Features: Trees
Community Features
Security Features: Security Lights, Closed Circuit Camera(s)
Driving Directions
From the intersection of US 27 and US 47 (the light in the center of Fort white) go north in US 27. Property is one mile of right side of US27
Financial Considerations
Terms: Cash,Conventional,Owner May Carry
Tax/Property ID: 29-6S-16-03983-000
Tax Amount: 3488.61
Tax Year: 2024
A broker reciprocity listing courtesy: BHHS FLORIDA REALTY - HIGH SPRINGS
Based on information provided by Stellar MLS as distributed by the MLS GRID. Information from the Internet Data Exchange is provided exclusively for consumers’ personal, non-commercial use, and such information may not be used for any purpose other than to identify prospective properties consumers may be interested in purchasing. This data is deemed reliable but is not guaranteed to be accurate by Edina Realty, Inc., or by the MLS. Edina Realty, Inc., is not a multiple listing service (MLS), nor does it offer MLS access.
Copyright 2025 Stellar MLS as distributed by the MLS GRID. All Rights Reserved.
Sales History & Tax Summary for 8725 N Us 27 Highway
Sales History
| Date | Price | Change |
|---|---|---|
| Currently not available. | ||
Tax Summary
| Tax Year | Estimated Market Value | Total Tax |
|---|---|---|
| Currently not available. | ||
Data powered by ATTOM Data Solutions. Copyright© 2025. Information deemed reliable but not guaranteed.
Schools
Schools nearby 8725 N Us 27 Highway
| Schools in attendance boundaries | Grades | Distance | Rating |
|---|---|---|---|
| Loading... | |||
| Schools nearby | Grades | Distance | Rating |
|---|---|---|---|
| Loading... | |||
Data powered by ATTOM Data Solutions. Copyright© 2025. Information deemed reliable but not guaranteed.
The schools shown represent both the assigned schools and schools by distance based on local school and district attendance boundaries. Attendance boundaries change based on various factors and proximity does not guarantee enrollment eligibility. Please consult your real estate agent and/or the school district to confirm the schools this property is zoned to attend. Information is deemed reliable but not guaranteed.
SchoolDigger ® Rating
The SchoolDigger rating system is a 1-5 scale with 5 as the highest rating. SchoolDigger ranks schools based on test scores supplied by each state's Department of Education. They calculate an average standard score by normalizing and averaging each school's test scores across all tests and grades.
Coming soon properties will soon be on the market, but are not yet available for showings.