8911 N 12th Street Tampa, FL 33604
For Sale MLS# TB8340388
13,272 sq ft Commercial
Details for 8911 N 12th Street
MLS# TB8340388
Description for 8911 N 12th Street, Tampa, FL, 33604
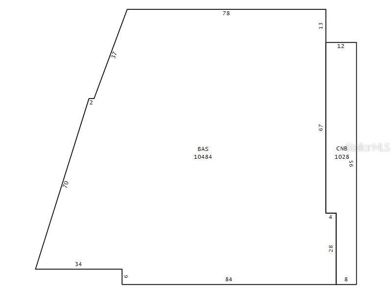
Florida Commercial Group presents industrial property for sale! Here is a perfect site for warehouse, manufacturing, light industrial or distribution businesses. Building 1 is an 11,521 +/- SF concrete building with a metal roof comprised of storage space and room for semi and large truck deliveries. There is also a drive-in-loading door that fronts 12th Street. The building’s clear height is 20’. Building 2 is 1,760+/- SF, is concrete block, with 20’ ceilings, two drive in bay doors and concrete floors. The property is fully fenced as well. The space of these buildings allows for plenty of room for vertical storage of inventory or high-volume material/ product deliveries and manufacturing/ assembling. The buildings sit on just under an acre (.80 acres) and offer direct visibility from Busch Blvd. This is a great opportunity for an investor seeking an opportunity to own/ use an industrial piece of property. There is also plenty of onsite parking. Call today for a showing.
Listing Information
Property Type: Commercial, Industrial
Status: Active
Lot Size: 0.80 Acres
Square Feet: 13,272 sq ft
Year Built: 1950
Stories: 1 Story
Construction: Block
Construction Display: New Construction
Subdivision: Orange Terrace
Foundation: Slab
County: Hillsborough
Construction Status: New Construction
Interior Features
Flooring: Concrete
Additional Interior Features: Storage
Exterior / Lot Features
Parking Description: Secured, Common
Roof: Metal
Additional Exterior/Lot Features: Storage
Driving Directions
From Downtown Tampa, take 275 northbound towards Busch Blvd./ Temple Terrace. Take exit 50. Head eastbound on Busch Blvd. At N. 12th Street, turn right. Arrive at the property on the left 8911 N. 12th Street.
Financial Considerations
Tax/Property ID: A-19-28-19-45A-000005-00001.0
Tax Amount: 13462.3
Tax Year: 2024
A broker reciprocity listing courtesy: FLORIDA COMMERCIAL GROUP
Based on information provided by Stellar MLS as distributed by the MLS GRID. Information from the Internet Data Exchange is provided exclusively for consumers’ personal, non-commercial use, and such information may not be used for any purpose other than to identify prospective properties consumers may be interested in purchasing. This data is deemed reliable but is not guaranteed to be accurate by Edina Realty, Inc., or by the MLS. Edina Realty, Inc., is not a multiple listing service (MLS), nor does it offer MLS access.
Copyright 2025 Stellar MLS as distributed by the MLS GRID. All Rights Reserved.
Payment Calculator
Interest rate and annual percentage rate (APR) are based on current market conditions, are for informational purposes only, are subject to change without notice and may be subject to pricing add-ons related to property type, loan amount, loan-to-value, credit score and other variables. Estimated closing costs used in the APR calculation are assumed to be paid by the borrower at closing. If the closing costs are financed, the loan, APR and payment amounts will be higher. If the down payment is less than 20%, mortgage insurance may be required and could increase the monthly payment and APR. Contact us for details. Additional loan programs may be available. Accuracy is not guaranteed, and all products may not be available in all borrower's geographical areas and are based on their individual situation. This is not a credit decision or a commitment to lend.
Sales History & Tax Summary for 8911 N 12th Street
Sales History
| Date | Price | Change |
|---|---|---|
| Currently not available. | ||
Tax Summary
| Tax Year | Estimated Market Value | Total Tax |
|---|---|---|
| Currently not available. | ||
Data powered by ATTOM Data Solutions. Copyright© 2025. Information deemed reliable but not guaranteed.
Schools
Schools nearby 8911 N 12th Street
| Schools in attendance boundaries | Grades | Distance | Rating |
|---|---|---|---|
| Loading... | |||
| Schools nearby | Grades | Distance | Rating |
|---|---|---|---|
| Loading... | |||
Data powered by ATTOM Data Solutions. Copyright© 2025. Information deemed reliable but not guaranteed.
The schools shown represent both the assigned schools and schools by distance based on local school and district attendance boundaries. Attendance boundaries change based on various factors and proximity does not guarantee enrollment eligibility. Please consult your real estate agent and/or the school district to confirm the schools this property is zoned to attend. Information is deemed reliable but not guaranteed.
SchoolDigger ® Rating
The SchoolDigger rating system is a 1-5 scale with 5 as the highest rating. SchoolDigger ranks schools based on test scores supplied by each state's Department of Education. They calculate an average standard score by normalizing and averaging each school's test scores across all tests and grades.
Coming soon properties will soon be on the market, but are not yet available for showings.