$6,000,000
910 Old Camp Road #110 The Villages, FL 32162
For Sale MLS# G5105105
11,798 sq ft Commercial
Details for 910 Old Camp Road #110
MLS# G5105105
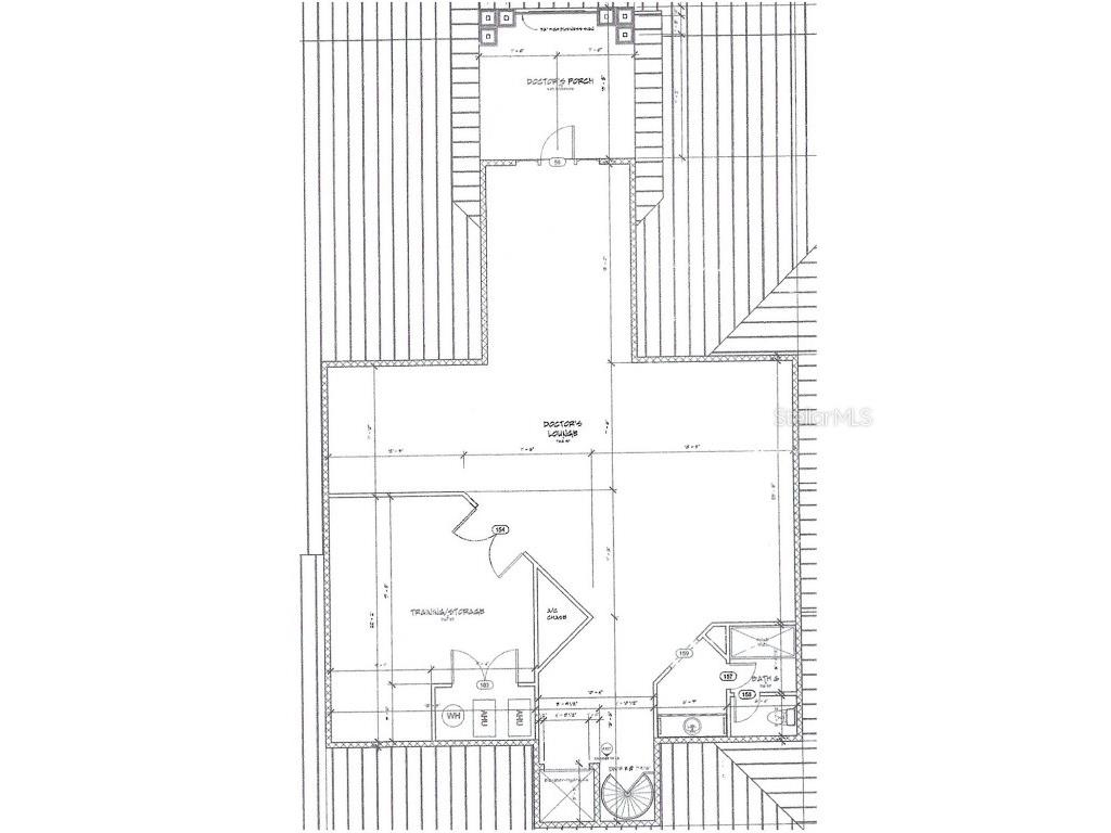
Description for 910 Old Camp Road #110, The Villages, FL, 32162
RARE OPPORTUNITY to purchase and have Fee Simple Title to a medical office building in The Villages. Sumter Landing Professional Plaza is located directly to the south of Lake Sumter Landing, the 2nd Town Square developed by The Villages. Convenient location in the heart of The Villages with golf cart access and plenty of parking. The Owners currently occupy 9,672 SF (75%) of the building and will close their respective medical practices upon a sale. The Owners share a common lobby along with X-ray room and MRI room. The space currently occupied by a Chiropractic practice has a reception desk, private waiting room, 6 semi-private therapy rooms, 4 private exam rooms, and 2 doctors offices with a shared bathroom between the two offices. The space occupied by an Orthopedic practice has a larger reception desk, private waiting area, RN station, 3 bathrooms (1 is handicap), break room, and a doctors office. The 2nd floor space has an open work area, private office, bathroom, and large storage area. It is accessible by stairs or elevator. The other separate unit totaling 3,231 SF (includes 271 SF front porch) is occupied by an urgent care practice with a 5 year lease (11/1/2024 - 10/31/2029). The lease started at $36/SF (2% annual escalators) and tenant pays 30% of CAM expense to The Villages. This space has a private lobby, reception desk, 3 bathrooms (2 are handicap), procedure room, 6 private exam rooms, RN station, lab, pharmacy, break room, X-ray room and a doctors office. See floor plan in pictures.
Listing Information
Property Type: Commercial, Office
Status: Active
Lot Size: 0.34 Acres
Square Feet: 11,798 sq ft
Year Built: 2007
Stories: 2 Story
Construction: HardiPlank Type
Foundation: Slab
County: Sumter
Interior Features
Flooring: Ceramic Tile,Engineered Hardwood
Doors/Windows: Window Treatments
Utilities
Water: Public
Sewer: Public Sewer
Other Utilities: Municipal Utilities,Underground Utilities
Cooling: Central Air
Heating: Individual, Central
Exterior / Lot Features
Parking Description: Common, Lighted
Roof: Metal
Community Features
Community Features: Sidewalks, Street Lights
Driving Directions
From the intersection of CR 466 and Morse Blvd., go south on Morse Blvd. for 2/3 of a mile, turn right (west) on Lake Sumter Landing and go 1/10 of a mile, turn left (south) on Old Camp Road and subject is 1/4 mile on the left.
Financial Considerations
Terms: Cash
Tax/Property ID: D23-2110
Tax Amount: 25789
Tax Year: 2025
A broker reciprocity listing courtesy: GRIZZARD COMMERCIAL REALESTATE
Based on information provided by Stellar MLS as distributed by the MLS GRID. Information from the Internet Data Exchange is provided exclusively for consumers’ personal, non-commercial use, and such information may not be used for any purpose other than to identify prospective properties consumers may be interested in purchasing. This data is deemed reliable but is not guaranteed to be accurate by Edina Realty, Inc., or by the MLS. Edina Realty, Inc., is not a multiple listing service (MLS), nor does it offer MLS access.
Copyright 2025 Stellar MLS as distributed by the MLS GRID. All Rights Reserved.
Payment Calculator
Interest rate and annual percentage rate (APR) are based on current market conditions, are for informational purposes only, are subject to change without notice and may be subject to pricing add-ons related to property type, loan amount, loan-to-value, credit score and other variables. Estimated closing costs used in the APR calculation are assumed to be paid by the borrower at closing. If the closing costs are financed, the loan, APR and payment amounts will be higher. If the down payment is less than 20%, mortgage insurance may be required and could increase the monthly payment and APR. Contact us for details. Additional loan programs may be available. Accuracy is not guaranteed, and all products may not be available in all borrower's geographical areas and are based on their individual situation. This is not a credit decision or a commitment to lend.
Sales History & Tax Summary for 910 Old Camp Road #110
Sales History
| Date | Price | Change |
|---|---|---|
| Currently not available. | ||
Tax Summary
| Tax Year | Estimated Market Value | Total Tax |
|---|---|---|
| Currently not available. | ||
Data powered by ATTOM Data Solutions. Copyright© 2025. Information deemed reliable but not guaranteed.
Schools
Schools nearby 910 Old Camp Road #110
| Schools in attendance boundaries | Grades | Distance | Rating |
|---|---|---|---|
| Loading... | |||
| Schools nearby | Grades | Distance | Rating |
|---|---|---|---|
| Loading... | |||
Data powered by ATTOM Data Solutions. Copyright© 2025. Information deemed reliable but not guaranteed.
The schools shown represent both the assigned schools and schools by distance based on local school and district attendance boundaries. Attendance boundaries change based on various factors and proximity does not guarantee enrollment eligibility. Please consult your real estate agent and/or the school district to confirm the schools this property is zoned to attend. Information is deemed reliable but not guaranteed.
SchoolDigger ® Rating
The SchoolDigger rating system is a 1-5 scale with 5 as the highest rating. SchoolDigger ranks schools based on test scores supplied by each state's Department of Education. They calculate an average standard score by normalizing and averaging each school's test scores across all tests and grades.
Coming soon properties will soon be on the market, but are not yet available for showings.