$2,400,000
917 SE 47th Terrace Cape Coral, FL 33904
For Sale MLS# C7521062
Commercial
Details for 917 SE 47th Terrace
MLS# C7521062
Description for 917 SE 47th Terrace, Cape Coral, FL, 33904
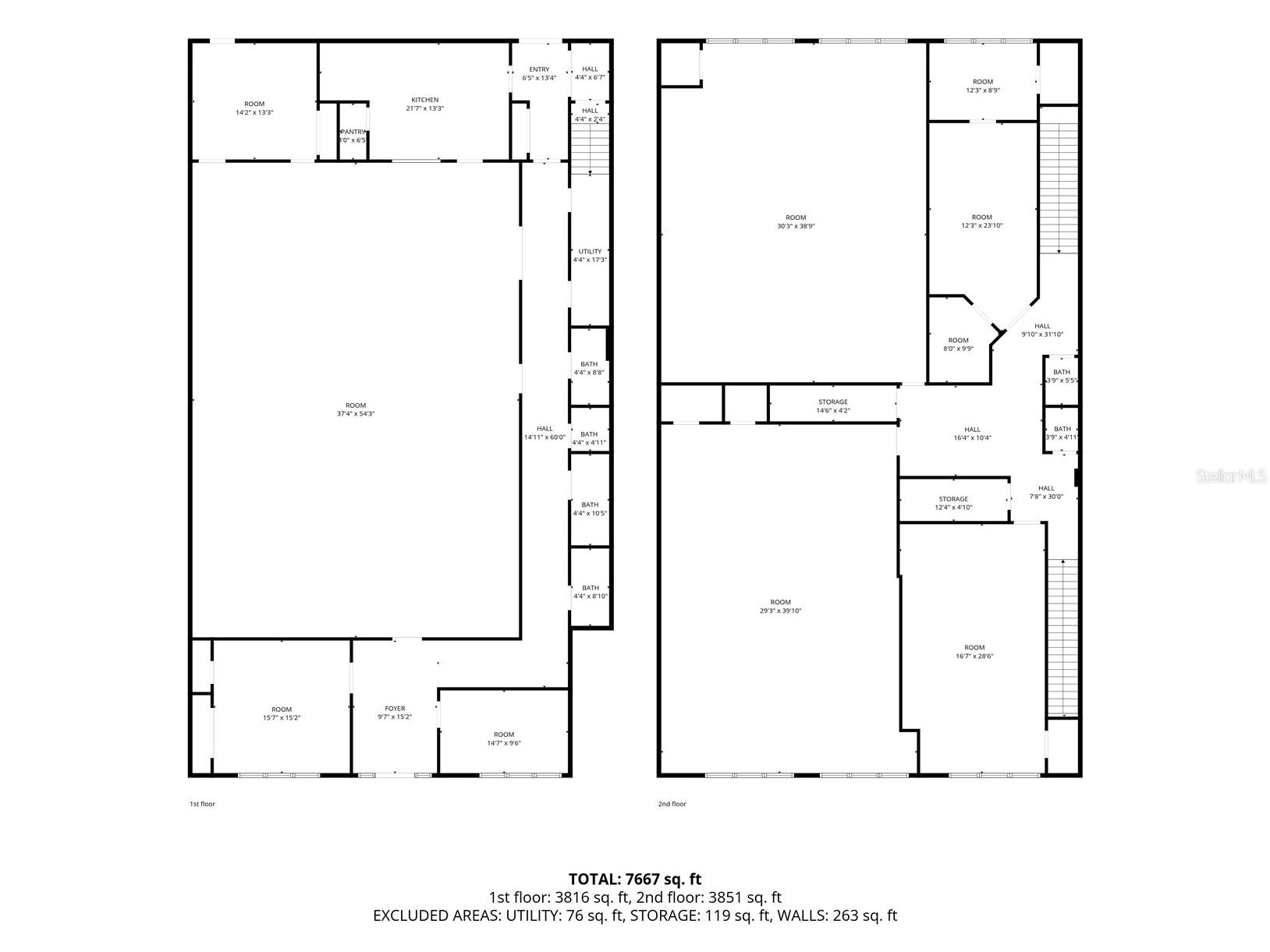
For Sale – Prime Downtown Cape Coral Opportunity Located in the heart of Cape Coral’s vibrant and rapidly growing downtown district, this well-maintained landmark building presents an exceptional opportunity for investors, owner-users, or developers seeking a versatile commercial asset in a high-visibility location. Offering approximately 8,600 square feet, this two-story concrete building is efficiently designed and thoughtfully configured to support a wide range of uses. The first floor is currently operated as a banquet hall and features a full commercial kitchen with pantry, making it ideal for events, hospitality, restaurant, or adaptive commercial use. Additional first-floor amenities include a conference room, reception/office area, four restrooms, and ample storage, providing both functionality and flexibility. The second floor consists of three large classrooms, additional office space, and two restrooms, making it well suited for professional offices, educational facilities, medical or wellness uses, or co-working space. Notably, the second floor can be easily separated from the first floor, as the building offers two separate entrances and two stairways, allowing an owner to occupy one level while leasing the other for supplemental income. Parking is plentiful with ample spaces available both in the front and rear of the property, a rare and valuable feature in the downtown core. This solidly constructed building boasts concrete trusses and has seen numerous recent capital improvements, including a new roof (2023), new AC units, impact-resistant glass, and new flooring and ceiling tiles on the second floor, ensuring long-term durability and reduced near-term maintenance costs. Adding to its appeal, the seller is open to financing options and would also consider a leaseback of a portion of the space, providing immediate income potential for a new owner. With its prime location, flexible layout, strong construction, and multiple exit strategies, this property offers endless possibilities to bring your vision to life. Opportunities like this in downtown Cape Coral are rare—act quickly.
Listing Information
Property Type: Commercial, Mixed Use
Status: Active
Lot Size: 0.14 Acres
Year Built: 1975
Stories: 2 Story
Construction: Concrete,Stucco
Subdivision: Cape Coral
Foundation: Slab
County: Lee
Interior Features
Appliances: Refrigerator
Utilities
Water: Public
Sewer: Public Sewer
Other Utilities: Electricity Available,Phone Available,Water Connected
Cooling: Other, Central Air
Heating: Central, Electric
Exterior / Lot Features
Parking Description: Parking Space(s), Lighted, Common
Lot Dimensions: 50x125
Additional Exterior/Lot Features: Central Business District
Driving Directions
From the intersection of Cape Coral Pkwy E and Santa Barbara Blvd S, Travel East on Cape Coral Pkwy E. Turn Left on SE 9th Pl. Turn Right on SE 47th Ter to 917 SE 47th Ter.
Financial Considerations
Terms: Cash,Conventional,Lease Back,Owner May Carry,Private Financing Available
Tax/Property ID: 07-45-24-C4-00356.0300
Tax Amount: 1592.47
Tax Year: 2025
A broker reciprocity listing courtesy: CENTURY 21 SELLING PARADISE
Based on information provided by Stellar MLS as distributed by the MLS GRID. Information from the Internet Data Exchange is provided exclusively for consumers’ personal, non-commercial use, and such information may not be used for any purpose other than to identify prospective properties consumers may be interested in purchasing. This data is deemed reliable but is not guaranteed to be accurate by Edina Realty, Inc., or by the MLS. Edina Realty, Inc., is not a multiple listing service (MLS), nor does it offer MLS access.
Copyright 2026 Stellar MLS as distributed by the MLS GRID. All Rights Reserved.
Payment Calculator
Interest rate and annual percentage rate (APR) are based on current market conditions, are for informational purposes only, are subject to change without notice and may be subject to pricing add-ons related to property type, loan amount, loan-to-value, credit score and other variables. Estimated closing costs used in the APR calculation are assumed to be paid by the borrower at closing. If the closing costs are financed, the loan, APR and payment amounts will be higher. If the down payment is less than 20%, mortgage insurance may be required and could increase the monthly payment and APR. Contact us for details. Additional loan programs may be available. Accuracy is not guaranteed, and all products may not be available in all borrower's geographical areas and are based on their individual situation. This is not a credit decision or a commitment to lend.
Sales History & Tax Summary for 917 SE 47th Terrace
Sales History
| Date | Price | |
|---|---|---|
| Currently not available. | ||
Tax Summary
| Tax Year | Estimated Market Value | Total Tax |
|---|---|---|
| Currently not available. | ||
Data powered by ATTOM Data Solutions. Copyright© 2026. Information deemed reliable but not guaranteed.
Schools
Schools nearby 917 SE 47th Terrace
| Schools in attendance boundaries | Grades | Distance | Rating |
|---|---|---|---|
| Loading... | |||
| Schools nearby | Grades | Distance | Rating |
|---|---|---|---|
| Loading... | |||
Data powered by ATTOM Data Solutions. Copyright© 2026. Information deemed reliable but not guaranteed.
The schools shown represent both the assigned schools and schools by distance based on local school and district attendance boundaries. Attendance boundaries change based on various factors and proximity does not guarantee enrollment eligibility. Please consult your real estate agent and/or the school district to confirm the schools this property is zoned to attend. Information is deemed reliable but not guaranteed.
SchoolDigger ® Rating
The SchoolDigger rating system is a 1-5 scale with 5 as the highest rating. SchoolDigger ranks schools based on test scores supplied by each state's Department of Education. They calculate an average standard score by normalizing and averaging each school's test scores across all tests and grades.
Coming soon properties will soon be on the market, but are not yet available for showings.