918 S Adelle Avenue Deland, FL 32720
For Sale MLS# O6344077
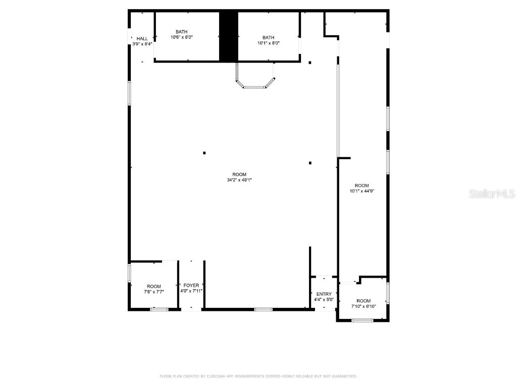
2,340 sq ft Commercial
Details for 918 S Adelle Avenue
MLS# O6344077
Description for 918 S Adelle Avenue, Deland, FL, 32720
**JUST REDUCED** ACT NOW ~ FABULOUS BUSINESS OPPORTUNITY Waiting for you! Bring Your Vision and turn your dreams into a Reality with this Magnificent blank canvas! This 2340 sqft building has so much potential and just needs you to bring it to life! The building features 2 BRAND NEW 5-ton HVAC units, Recently Updated Electrical Panel, Newer Roof only 5 years old! Already Handicap Accessible, Hurricane Shutters are already in place. Minutes from Downtown Deland Historic District, Stetson University and Melching Field at Conrad Park all which brings high traffic flow! Shopping and Restaurants nearby. Current zoning is BPUD/Restaurant. Don't let this Opportunity pass you by! Deland is ready for your Vision! *All information and property details is thought to be correct but not guaranteed and should be independently verified by the buyer/buyer’s agent. Contact the County Planning/Zoning department to confirm any usage restrictions.*
Listing Information
Property Type: Commercial, Business
Status: Active
Lot Size: 0.49 Acres
Square Feet: 2,340 sq ft
Year Built: 1910
Stories: 1 Story
Construction: Block
Subdivision: Lockharts
Foundation: Slab
County: Volusia
Interior Features
Flooring: Concrete,Ceramic Tile
Doors/Windows: Shutters
Accessibility: Visitor Bathroom
Additional Interior Features: Storage
Utilities
Water: Public
Sewer: Public Sewer
Other Utilities: Electricity Available,High Speed Internet Available,Water Connected
Cooling: Central Air
Heating: Central
Exterior / Lot Features
Roof: Shingle
Lot Dimensions: 50x108
Additional Exterior/Lot Features: Corner Lot
Driving Directions
If you are coming South on Woodland, Turn Right on Beresford, left on Adelle, building is on right.
Financial Considerations
Terms: Cash
Tax/Property ID: 7020-06-02-0110
Tax Amount: 2621.38
Tax Year: 2024
A broker reciprocity listing courtesy: MARVIEW INTERNATIONAL REALTY LLC
Based on information provided by Stellar MLS as distributed by the MLS GRID. Information from the Internet Data Exchange is provided exclusively for consumers’ personal, non-commercial use, and such information may not be used for any purpose other than to identify prospective properties consumers may be interested in purchasing. This data is deemed reliable but is not guaranteed to be accurate by Edina Realty, Inc., or by the MLS. Edina Realty, Inc., is not a multiple listing service (MLS), nor does it offer MLS access.
Copyright 2026 Stellar MLS as distributed by the MLS GRID. All Rights Reserved.
Payment Calculator
Interest rate and annual percentage rate (APR) are based on current market conditions, are for informational purposes only, are subject to change without notice and may be subject to pricing add-ons related to property type, loan amount, loan-to-value, credit score and other variables. Estimated closing costs used in the APR calculation are assumed to be paid by the borrower at closing. If the closing costs are financed, the loan, APR and payment amounts will be higher. If the down payment is less than 20%, mortgage insurance may be required and could increase the monthly payment and APR. Contact us for details. Additional loan programs may be available. Accuracy is not guaranteed, and all products may not be available in all borrower's geographical areas and are based on their individual situation. This is not a credit decision or a commitment to lend.
Sales History & Tax Summary for 918 S Adelle Avenue
Sales History
| Date | Price | |
|---|---|---|
| Currently not available. | ||
Tax Summary
| Tax Year | Estimated Market Value | Total Tax |
|---|---|---|
| Currently not available. | ||
Data powered by ATTOM Data Solutions. Copyright© 2026. Information deemed reliable but not guaranteed.
Schools
Schools nearby 918 S Adelle Avenue
| Schools in attendance boundaries | Grades | Distance | Rating |
|---|---|---|---|
| Loading... | |||
| Schools nearby | Grades | Distance | Rating |
|---|---|---|---|
| Loading... | |||
Data powered by ATTOM Data Solutions. Copyright© 2026. Information deemed reliable but not guaranteed.
The schools shown represent both the assigned schools and schools by distance based on local school and district attendance boundaries. Attendance boundaries change based on various factors and proximity does not guarantee enrollment eligibility. Please consult your real estate agent and/or the school district to confirm the schools this property is zoned to attend. Information is deemed reliable but not guaranteed.
SchoolDigger ® Rating
The SchoolDigger rating system is a 1-5 scale with 5 as the highest rating. SchoolDigger ranks schools based on test scores supplied by each state's Department of Education. They calculate an average standard score by normalizing and averaging each school's test scores across all tests and grades.
Coming soon properties will soon be on the market, but are not yet available for showings.