9915 County Road 44 Leesburg, FL 34788
For Sale MLS# OM707341
Commercial
Details for 9915 County Road 44
MLS# OM707341
Description for 9915 County Road 44, Leesburg, FL, 34788
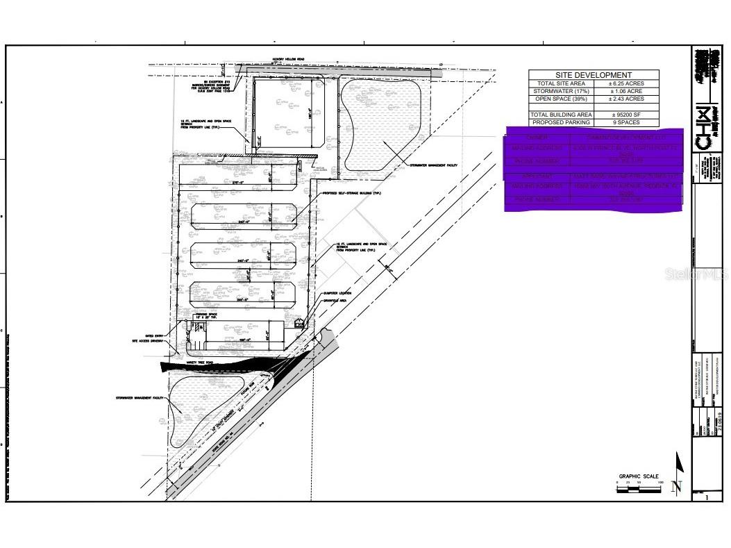
Prime Self-Storage Development Opportunity in Lake County, FL Seize this rare chance to acquire a fully prepared, development-ready parcel in Lake County, Florida, zoned and approved for a state-of-the-art self-storage facility. Comprising four parcels, this property is primed for immediate construction, offering a fast-tracked timeline for investors and developers looking to capitalize on Central Florida’s booming self-storage market. With versatile zoning allowing for multiple uses, this is a unique opportunity in a high-growth region. Property Highlights Development-Ready for Self-Storage: Rezoned to CP (Planned Commercial), with self-storage approved by right, eliminating zoning hurdles. Includes a comprehensive concept plan for a 101,380 sq ft facility (86,175 sq ft net rentable, 95.24 climate-controlled), fully permitted and ready for construction. Completed Due Diligence: Boundary and topographic surveys completed, along with environmental studies, ensuring no delays in development. Strong Financial Projections: Proforma included, projecting a Net Operating Income (NOI) of $994,195. Cap rate valuations: $16.57M (6.0 ), $18.08M (5.5 ), or $19.88M (5.0 ). Gross potential income of $1.58M with a 65.73 cost-to-value ratio at 5.5 cap. Strategic Location: Situated in Lake County, a high-growth area with 4.7 annual population growth, outpacing the national average. Proximity to Orlando, I-75, and the Florida Turnpike ensures excellent accessibility and visibility. Low storage inventory (est. 5.5 sq ft vs. 7–8 sq ft nationally) underscores strong market demand. Versatile Zoning: CP zoning supports self-storage and a variety of other commercial uses, offering flexibility for future development or alternative projects. Business-Friendly Environment: Lake County’s pro-business policies and high-traffic corridors make this an ideal location for a successful self-storage operation. Additional Information Financing Available: Pre-approved financing through Jen Jones Loans LLC; terms and rates vary based on buyer qualifications. Market Advantage: Lake County’s rapid growth and underserved self-storage market create exceptional potential for high returns. This turnkey property offers a unique opportunity to develop a premier self-storage facility in one of Florida’s fastest-growing regions. Don’t miss your chance to invest in a market with strong demand and minimal competition. Contact us today to review the concept plan, proforma, and additional details!
Listing Information
Property Type: Commercial, Mixed Use
Status: Active
Lot Size: 3.33 Acres
Year Built: 2024
Construction: Other
Foundation: Other
County: Lake
Utilities
Cooling: Other
Driving Directions
Head east on Hwy 441 toward Eustis. Turn right onto County Road 44 and continue east. The property is located on the left at the intersection of Variety Tree Road, just before Radio Road. Look for the sign marking the parcel.
Financial Considerations
Tax/Property ID: 03-19-25-0001-000-01400
Tax Amount: 1948
Tax Year: 2024
A broker reciprocity listing courtesy: FLORIDA HOMES REALTY & MORTGAGE
Based on information provided by Stellar MLS as distributed by the MLS GRID. Information from the Internet Data Exchange is provided exclusively for consumers’ personal, non-commercial use, and such information may not be used for any purpose other than to identify prospective properties consumers may be interested in purchasing. This data is deemed reliable but is not guaranteed to be accurate by Edina Realty, Inc., or by the MLS. Edina Realty, Inc., is not a multiple listing service (MLS), nor does it offer MLS access.
Copyright 2025 Stellar MLS as distributed by the MLS GRID. All Rights Reserved.
Payment Calculator
Interest rate and annual percentage rate (APR) are based on current market conditions, are for informational purposes only, are subject to change without notice and may be subject to pricing add-ons related to property type, loan amount, loan-to-value, credit score and other variables. Estimated closing costs used in the APR calculation are assumed to be paid by the borrower at closing. If the closing costs are financed, the loan, APR and payment amounts will be higher. If the down payment is less than 20%, mortgage insurance may be required and could increase the monthly payment and APR. Contact us for details. Additional loan programs may be available. Accuracy is not guaranteed, and all products may not be available in all borrower's geographical areas and are based on their individual situation. This is not a credit decision or a commitment to lend.
Sales History & Tax Summary for 9915 County Road 44
Sales History
| Date | Price | Change |
|---|---|---|
| Currently not available. | ||
Tax Summary
| Tax Year | Estimated Market Value | Total Tax |
|---|---|---|
| Currently not available. | ||
Data powered by ATTOM Data Solutions. Copyright© 2025. Information deemed reliable but not guaranteed.
Schools
Schools nearby 9915 County Road 44
| Schools in attendance boundaries | Grades | Distance | Rating |
|---|---|---|---|
| Loading... | |||
| Schools nearby | Grades | Distance | Rating |
|---|---|---|---|
| Loading... | |||
Data powered by ATTOM Data Solutions. Copyright© 2025. Information deemed reliable but not guaranteed.
The schools shown represent both the assigned schools and schools by distance based on local school and district attendance boundaries. Attendance boundaries change based on various factors and proximity does not guarantee enrollment eligibility. Please consult your real estate agent and/or the school district to confirm the schools this property is zoned to attend. Information is deemed reliable but not guaranteed.
SchoolDigger ® Rating
The SchoolDigger rating system is a 1-5 scale with 5 as the highest rating. SchoolDigger ranks schools based on test scores supplied by each state's Department of Education. They calculate an average standard score by normalizing and averaging each school's test scores across all tests and grades.
Coming soon properties will soon be on the market, but are not yet available for showings.