11594 Scotch Pine Court Eden Prairie, MN 55344
Active Contingent MLS# 6727184
2 beds 2 baths 1,232 sq ft Townhouse/Twinhome
Details for 11594 Scotch Pine Court
MLS# 6727184
Description for 11594 Scotch Pine Court, Eden Prairie, MN, 55344
This exceptionally charming and well-appointed home offers a perfect blend of style and functionality with a refreshed vibe. The floor plan features bright and comfortable living spaces on the main level, while the upper level includes a spacious primary bedroom, 2nd bedroom, and the convenience of second-floor laundry. From the kitchen, step outside to a private deck & yard surrounded by mature trees and peaceful green space. As part of The Preserve HOA, residents enjoy resort-style amenities including a beach & beach bottom pool, diving pool, tennis, pickleball, playgrounds, and over five miles of scenic walking trails. Ideally located within walking distance to Eden Prairie Mall, restaurants, health clubs, grocery stores, and so much more. New roof in 2024!!!
Listing Information
Property Type: Residential, Quad/4 Corners
Status: Active Contingent-Subject to Statutory Rescission
Bedrooms: 2
Bathrooms: 2
Lot Size: 0.02 Acres
Square Feet: 1,232 sq ft
Year Built: 1983
Foundation: 616 sq ft
Garage: Yes
Stories: 2 Stories
Property Attached: Yes
Subdivision: Northmark 3rd Add
County: Hennepin
Days On Market: 122
Construction Status: Previously Owned
School Information
District: Eden Prairie
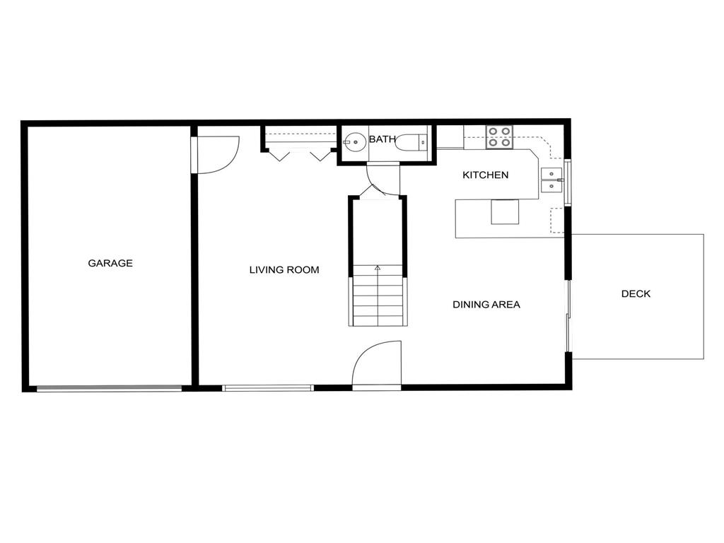
Room Information
Main Floor
Deck: 16x12
Dining Room: 12x12
Kitchen: 12x10
Living Room: 18 x 11
Upper Floor
Bedroom 1: 18x12
Bedroom 2: 12x12
Bathrooms
Full Baths: 1
1/2 Baths: 1
Additonal Room Information
Family: Main Level
Dining: Breakfast Bar,Informal Dining Room
Laundry: Washer Hookup, Laundry Closet, Upper Level
Bath Description: Main Floor 1/2 Bath,Upper Level Full Bath
Interior Features
Square Footage above: 1,232 sq ft
Appliances: Gas Water Heater, Washer, Range, Refrigerator, Microwave, Dryer, Exhaust Fan/Hood, Dishwasher, Disposal
Additional Interior Features: 2nd Floor Laundry
Utilities
Water: City Water/Connected
Sewer: City Sewer/Connected
Cooling: Central
Heating: Forced Air, Natural Gas
Exterior / Lot Features
Attached Garage: Attached Garage
Garage Spaces: 1
Parking Description: Driveway - Asphalt, Garage Door Opener, Attached Garage, Guest Parking, Garage Sq Ft - 264.0
Exterior: Wood
Roof: Asphalt Shingles
Pool: Below Ground, Outdoor, Shared
Lot Dimensions: 25x43
Zoning: Residential-Single Family
Additional Exterior/Lot Features: End Unit
Community Features
Community Features: Community Room
Association Amenities: Trails, Tennis Courts, Other, Beach, Fire Sprinkler System
HOA Dues Include: Building Exterior, Lawn Care, Outside Maintenance, Shared Amenities, Snow Removal, Professional Mgmt, Sanitation
Pets Allowed: Yes
Homeowners Association: Yes
Association Name: rowcal
HOA Dues: $415 / Monthly
Driving Directions
Prairie Center Drive to Preserve Blvd, Left onto Scotch Pine Ct., 2nd Driveway on the left
Financial Considerations
Covenants/Deed Restrictions: Architecture Committee, Rental Restrictions May Apply, Mandatory Owners Assoc, Pets - Number Limit, Pets - Weight/Height Limit, Pets - Dogs Allowed, Pets - Cats Allowed
Tax/Property ID: 1411622440090
Tax Amount: 2534
Tax Year: 2025
HomeStead Description: Homesteaded
A broker reciprocity listing courtesy: Coldwell Banker Realty
The data relating to real estate for sale on this web site comes in part from the Broker Reciprocity℠ Program of the Regional Multiple Listing Service of Minnesota, Inc. Real estate listings held by brokerage firms other than Edina Realty, Inc. are marked with the Broker Reciprocity℠ logo or the Broker Reciprocity℠ thumbnail and detailed information about them includes the name of the listing brokers. Edina Realty, Inc. is not a Multiple Listing Service (MLS), nor does it offer MLS access. This website is a service of Edina Realty, Inc., a broker Participant of the Regional Multiple Listing Service of Minnesota, Inc. IDX information is provided exclusively for consumers personal, non-commercial use and may not be used for any purpose other than to identify prospective properties consumers may be interested in purchasing. Open House information is subject to change without notice. Information deemed reliable but not guaranteed.
Copyright 2025 Regional Multiple Listing Service of Minnesota, Inc. All Rights Reserved.
Payment Calculator
Interest rate and annual percentage rate (APR) are based on current market conditions, are for informational purposes only, are subject to change without notice and may be subject to pricing add-ons related to property type, loan amount, loan-to-value, credit score and other variables. Estimated closing costs used in the APR calculation are assumed to be paid by the borrower at closing. If the closing costs are financed, the loan, APR and payment amounts will be higher. If the down payment is less than 20%, mortgage insurance may be required and could increase the monthly payment and APR. Contact us for details. Additional loan programs may be available. Accuracy is not guaranteed, and all products may not be available in all borrower's geographical areas and are based on their individual situation. This is not a credit decision or a commitment to lend.
Sales History & Tax Summary for 11594 Scotch Pine Court
Sales History
| Date | Price | Change |
|---|---|---|
| Currently not available. | ||
Tax Summary
| Tax Year | Estimated Market Value | Total Tax |
|---|---|---|
| Currently not available. | ||
Data powered by ATTOM Data Solutions. Copyright© 2025. Information deemed reliable but not guaranteed.
Schools
Schools nearby 11594 Scotch Pine Court
| Schools in attendance boundaries | Grades | Distance | Rating |
|---|---|---|---|
| Loading... | |||
| Schools nearby | Grades | Distance | Rating |
|---|---|---|---|
| Loading... | |||
Data powered by ATTOM Data Solutions. Copyright© 2025. Information deemed reliable but not guaranteed.
The schools shown represent both the assigned schools and schools by distance based on local school and district attendance boundaries. Attendance boundaries change based on various factors and proximity does not guarantee enrollment eligibility. Please consult your real estate agent and/or the school district to confirm the schools this property is zoned to attend. Information is deemed reliable but not guaranteed.
SchoolDigger ® Rating
The SchoolDigger rating system is a 1-5 scale with 5 as the highest rating. SchoolDigger ranks schools based on test scores supplied by each state's Department of Education. They calculate an average standard score by normalizing and averaging each school's test scores across all tests and grades.
Coming soon properties will soon be on the market, but are not yet available for showings.