10 Apple Tree Lane Winter Haven, FL 33884
For Sale MLS# P4936277
3 beds 2 baths 2,491 sq ft Single Family
Details for 10 Apple Tree Lane
MLS# P4936277
Description for 10 Apple Tree Lane, Winter Haven, FL, 33884
Discover the perfect blend of country living and modern convenience with this well-maintained property set on over 5 acres. This spacious home offers 3 bedrooms plus a dedicated office, 2 full baths, a welcoming living room, formal dining room, and a bright kitchen with a breakfast nook. Step outside to your own private retreat featuring a screened pool, ideal for relaxing or entertaining. Equestrian enthusiasts will appreciate the horse barn along with fenced and cross-fenced pastures, providing plenty of space for animals. The property combines privacy and wide-open views with easy access to city amenities, shopping, and schools. With its well-cared-for condition and versatile layout, this home is move-in ready and waiting for you to enjoy the best of both worlds—peaceful country living just minutes from town.
Listing Information
Property Type: Residential, Single Family Residence
Status: Active
Bedrooms: 3
Bathrooms: 2
Lot Size: 5.01 Acres
Square Feet: 2,491 sq ft
Year Built: 1997
Garage: Yes
Stories: 1 Story
Construction: Block,Stucco
Subdivision: Sundance Ranch Estates
Foundation: Slab
County: Polk
School Information
Elementary: Chain O Lakes Elem
Middle: Mclaughlin Middle
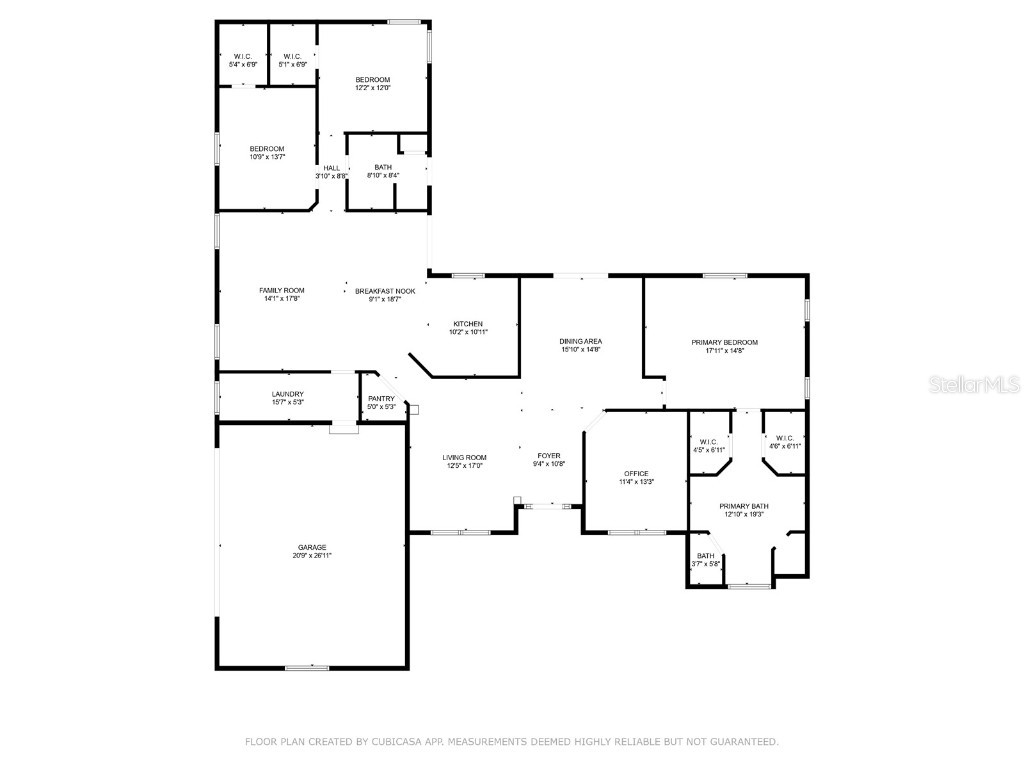
Room Information
Main Floor
Laundry: 5x15
Living Room: 11.25x13.5
Bedroom 3: 11.8x11.8
Bedroom 2: 10.8x13.5
Primary Bedroom:
Family Room: 14.25x17.9
Dinette: 8x8.75
Kitchen: 10x12
Dining Room: 11.75x12.9
Foyer: 8x8
Bathrooms
Full Baths: 2
Additonal Room Information
Laundry: Inside, Laundry Room
Interior Features
Appliances: Range Hood, Electric Water Heater, Range, Refrigerator, Dishwasher, Disposal
Flooring: Carpet,Ceramic Tile,Luxury Vinyl
Additional Interior Features: Separate/Formal Dining Room, Ceiling Fan(s), Separate/Formal Living Room
Utilities
Water: Well
Sewer: Septic Tank
Other Utilities: Cable Connected,Electricity Connected,High Speed Internet Available
Cooling: Ceiling Fan(s), Central Air
Heating: Electric
Exterior / Lot Features
Attached Garage: Attached Garage
Garage Spaces: 2
Roof: Shingle
Pool: Gunite, In Ground, Screen Enclosure
Additional Exterior/Lot Features: Sprinkler/Irrigation, Dog Run, Front Porch, Covered, Flat, Level, Landscaped, Pasture, Outside City Limits
Community Features
Homeowners Association: Yes
HOA Dues: $250 / Annually
Driving Directions
From Cypress Gardens Blvd (CR 540), turn south onto W Lk Ruby Drive, turn right onto Thompson Nursery Road, then left onto CR 653, turn right onto Cunningham Road, turn left onto Cherry Blossom Lane, turn left onto Apple Tree Lane, property is on the right.
Financial Considerations
Terms: Cash,Conventional,FHA,VA Loan
Tax/Property ID: 26-29-23-690590-000100
Tax Amount: 2835
Tax Year: 2024
A broker reciprocity listing courtesy: LOCKHART & ASSOCIATES INC
Based on information provided by Stellar MLS as distributed by the MLS GRID. Information from the Internet Data Exchange is provided exclusively for consumers’ personal, non-commercial use, and such information may not be used for any purpose other than to identify prospective properties consumers may be interested in purchasing. This data is deemed reliable but is not guaranteed to be accurate by Edina Realty, Inc., or by the MLS. Edina Realty, Inc., is not a multiple listing service (MLS), nor does it offer MLS access.
Copyright 2026 Stellar MLS as distributed by the MLS GRID. All Rights Reserved.
Payment Calculator
Interest rate and annual percentage rate (APR) are based on current market conditions, are for informational purposes only, are subject to change without notice and may be subject to pricing add-ons related to property type, loan amount, loan-to-value, credit score and other variables. Estimated closing costs used in the APR calculation are assumed to be paid by the borrower at closing. If the closing costs are financed, the loan, APR and payment amounts will be higher. If the down payment is less than 20%, mortgage insurance may be required and could increase the monthly payment and APR. Contact us for details. Additional loan programs may be available. Accuracy is not guaranteed, and all products may not be available in all borrower's geographical areas and are based on their individual situation. This is not a credit decision or a commitment to lend.
Sales History & Tax Summary for 10 Apple Tree Lane
Sales History
| Date | Price | Change |
|---|---|---|
| Currently not available. | ||
Tax Summary
| Tax Year | Estimated Market Value | Total Tax |
|---|---|---|
| Currently not available. | ||
Data powered by ATTOM Data Solutions. Copyright© 2026. Information deemed reliable but not guaranteed.
Schools
Schools nearby 10 Apple Tree Lane
| Schools in attendance boundaries | Grades | Distance | Rating |
|---|---|---|---|
| Loading... | |||
| Schools nearby | Grades | Distance | Rating |
|---|---|---|---|
| Loading... | |||
Data powered by ATTOM Data Solutions. Copyright© 2026. Information deemed reliable but not guaranteed.
The schools shown represent both the assigned schools and schools by distance based on local school and district attendance boundaries. Attendance boundaries change based on various factors and proximity does not guarantee enrollment eligibility. Please consult your real estate agent and/or the school district to confirm the schools this property is zoned to attend. Information is deemed reliable but not guaranteed.
SchoolDigger ® Rating
The SchoolDigger rating system is a 1-5 scale with 5 as the highest rating. SchoolDigger ranks schools based on test scores supplied by each state's Department of Education. They calculate an average standard score by normalizing and averaging each school's test scores across all tests and grades.
Coming soon properties will soon be on the market, but are not yet available for showings.