$559,000
Off-Market Date: 04/23/202610 Winter Haven Court Palm Coast, FL 32164
Pending MLS# FC317686
3 beds 3 baths 2,866 sq ft Single Family
Details for 10 Winter Haven Court
MLS# FC317686
Description for 10 Winter Haven Court, Palm Coast, FL, 32164
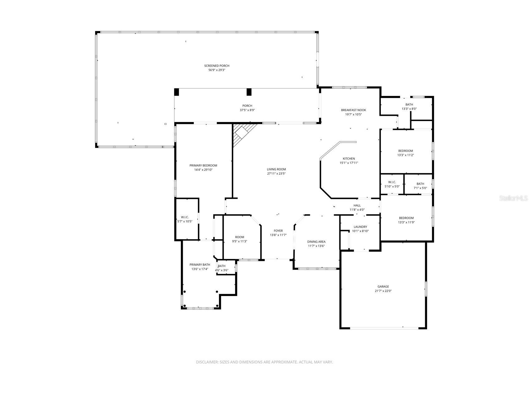
Under contract-accepting backup offers. One or more photo(s) has been virtually staged. Tucked away on a quiet cul-de-sac featuring a collection of Spanish tile roof homes, this 3-bedroom, 3-bath pool home showcases soaring 12-foot ceilings and offers resort-style living in the sought-after Pine Lakes (W Section) of Palm Coast. Combining a luxury feel with no monthly HOA, this property offers a rare opportunity in this part of Palm Coast. Featuring tray ceilings and a light-filled layout, the home offers a spacious great room, formal dining area, and a flexible space ideal for a home office, den, or potential 4th bedroom. The chef’s kitchen with double ovens opens seamlessly to the main living areas, making it ideal for entertaining. The primary suite features French doors leading to the pool, a walk-in closet plus an additional closet, and a spa-inspired bath with a whirlpool tub. Guest bedrooms are privately arranged, with one offering an en-suite bath and another conveniently located near the pool bath with direct access to the lanai. Plantation shutters throughout add style and privacy. Designed for the Florida lifestyle, the home seamlessly blends indoor and outdoor living. Step outside to enjoy a covered lanai with a summer kitchen, including a stove and stainless cabinetry, overlooking the screened pool and spa for effortless year-round enjoyment. A new pool filter adds peace of mind for the next owner. Mature landscaping highlighted by rose bushes and a striking bottlebrush tree enhances the setting, while a recently pressure-washed tile roof and white PVC privacy fence add to the home’s overall appeal. Enjoy the best of Palm Coast living with golf, parks, and pickleball nearby, plus shopping, dining, and the beach just minutes away.
Listing Information
Property Type: Residential, Single Family Residence
Status: Pending
Bedrooms: 3
Bathrooms: 3
Lot Size: 0.29 Acres
Square Feet: 2,866 sq ft
Year Built: 2007
Garage: Yes
Stories: 1 Story
Construction: Block,Stucco
Construction Display: New Construction
Subdivision: Pine Lakes
Foundation: Block
County: Flagler
Construction Status: New Construction
School Information
Elementary: Wadsworth Elementary
Middle: Buddy Taylor Middle
High: Flagler-Palm Coast High
Room Information
Main Floor
Kitchen:
Great Room:
Den:
Bedroom 3:
Bedroom 2:
Primary Bedroom:
Bathrooms
Full Baths: 3
Additonal Room Information
Laundry: Washer Hookup, Inside, Laundry Room
Interior Features
Appliances: Wine Refrigerator, Ice Maker, Built-In Oven, Bar Fridge, Exhaust Fan, Washer, Microwave, Trash Compactor, Dishwasher, Disposal, Dryer, Cooktop, Freezer, Range, Refrigerator
Flooring: Tile,Wood
Doors/Windows: Blinds, Wood Frames, Window Treatments, Aluminum Frames, Drapes, Shutters
Fireplaces: Electric, Family Room
Accessibility: Accessible Approach with Ramp, Accessible Bedroom, Accessible Central Living Area, Accessible Closets, Accessible Common Area, Accessible Doors, Accessible Entrance, Accessible Kitchen, Accessible Kitchen Appliances, Visitor Bathroom
Additional Interior Features: Tray Ceiling(s), Attic, Built-in Features, Window Treatments, High Ceilings, Separate/Formal Dining Room, Crown Molding, Main Level Primary, Ceiling Fan(s), Walk-In Closet(s), Vaulted Ceiling(s), Wet Bar, Kitchen/Family Room Combo, Stone Counters, Open Floorplan, Wood Cabinets
Utilities
Water: Public
Sewer: Public Sewer, Holding Tank
Other Utilities: Cable Available,Cable Connected,Electricity Available,Electricity Connected,Natural Gas Connected,Sewer Connected,Water Available,Water Connected
Cooling: Ceiling Fan(s), Central Air
Heating: Gas, Electric, Central, Heat Recovery System
Exterior / Lot Features
Garage Spaces: 2
Parking Description: Off Street, driveway, on street, Covered
Roof: Concrete, Tile
Pool: In Ground, Screen Enclosure, Heated
Lot View: Garden
Fencing: Vinyl
Additional Exterior/Lot Features: Private Yard, Private Entrance, Rain Gutters, Outdoor Kitchen, Garden, French Patio Doors, Sprinkler/Irrigation, Lighting, Screened, Patio, Covered, Rear Porch, Landscaped, Cul-de-Sac, Dead End, Oversized Lot
Community Features
Security Features: Security System, Fire Alarm, Smoke Detector(s)
Homeowners Association: Yes
Driving Directions
From I-95 take Exit 284 (SR-100), head west. Right on Belle Terre Pkwy, left on Whiteview Pkwy, right on Whippoorwill Dr, left on Winter Haven Ct to cul-de-sac.
Financial Considerations
Terms: Cash,Conventional,FHA,VA Loan
Tax/Property ID: 0711316250000000060
Tax Amount: 4906
Tax Year: 2025
A broker reciprocity listing courtesy: BERKSHIRE HATHAWAY HOMESERVICE
Based on information provided by Stellar MLS as distributed by the MLS GRID. Information from the Internet Data Exchange is provided exclusively for consumers’ personal, non-commercial use, and such information may not be used for any purpose other than to identify prospective properties consumers may be interested in purchasing. This data is deemed reliable but is not guaranteed to be accurate by Edina Realty, Inc., or by the MLS. Edina Realty, Inc., is not a multiple listing service (MLS), nor does it offer MLS access.
Copyright 2026 Stellar MLS as distributed by the MLS GRID. All Rights Reserved.
Sales History & Tax Summary for 10 Winter Haven Court
Sales History
| Date | Price | |
|---|---|---|
| Currently not available. | ||
Tax Summary
| Tax Year | Estimated Market Value | Total Tax |
|---|---|---|
| Currently not available. | ||
Data powered by ATTOM Data Solutions. Copyright© 2026. Information deemed reliable but not guaranteed.
Schools
Schools nearby 10 Winter Haven Court
| Schools in attendance boundaries | Grades | Distance | Rating |
|---|---|---|---|
| Loading... | |||
| Schools nearby | Grades | Distance | Rating |
|---|---|---|---|
| Loading... | |||
Data powered by ATTOM Data Solutions. Copyright© 2026. Information deemed reliable but not guaranteed.
The schools shown represent both the assigned schools and schools by distance based on local school and district attendance boundaries. Attendance boundaries change based on various factors and proximity does not guarantee enrollment eligibility. Please consult your real estate agent and/or the school district to confirm the schools this property is zoned to attend. Information is deemed reliable but not guaranteed.
SchoolDigger ® Rating
The SchoolDigger rating system is a 1-5 scale with 5 as the highest rating. SchoolDigger ranks schools based on test scores supplied by each state's Department of Education. They calculate an average standard score by normalizing and averaging each school's test scores across all tests and grades.
Coming soon properties will soon be on the market, but are not yet available for showings.