$2,500,000
100 1st Avenue N #2703 Saint Petersburg, FL 33701 - TAMPA BAY
For Sale MLS# TB8483247
2 beds 3 baths 1,854 sq ft Condo
Details for 100 1st Avenue N #2703
MLS# TB8483247
Description for 100 1st Avenue N #2703, Saint Petersburg, FL, 33701 - TAMPA BAY
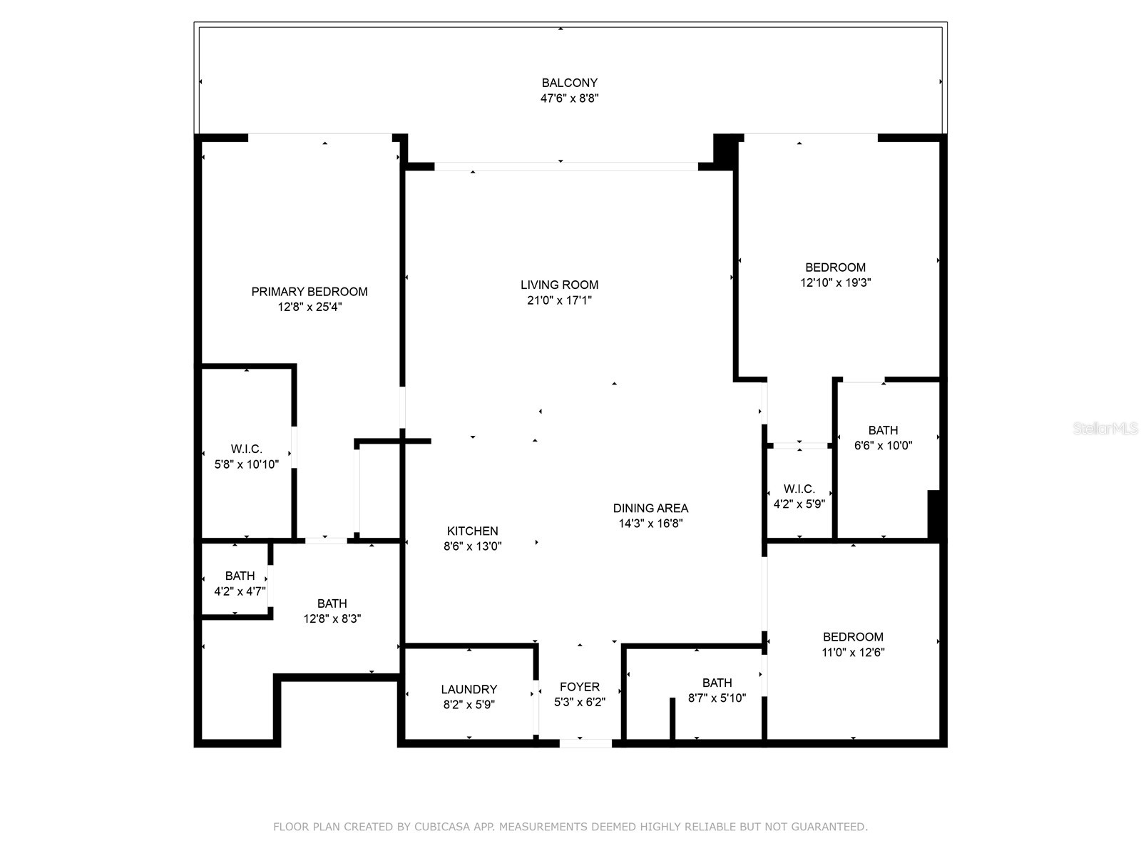
Unobstructed Water Views in a Rare Center Unit at ONE St. Petersburg Step into a realm of unrivaled luxury with this exquisite "03" center unit at ONE St. Petersburg - Step in this stunning 2-bedroom + den, 3-bathroom residence offers awe-inspiring, sky-high views that span the shimmering waters of Tampa Bay. With 1,854 square feet of meticulously designed space, the home captures panoramic vistas of Tampa Bay, the iconic St. Pete Pier, vibrant sunrises, the marina, the airport, and the glittering city skyline, offering an ever-changing canvas of beauty and tranquility. Upon entering, you are greeted by a grand open-concept living area with soaring 10-foot ceilings, full-height windows, and sliders that bathe the space in natural light. The upgraded tile flooring throughout complements the sleek, modern aesthetic. Electric blinds and designer lighting enhance the ambiance in the dining room, owner’s suite, guest suite, and den, adding both functionality and elegance. A highlight of this exceptional home is the expansive 40-foot-wide private terrace, seamlessly integrating indoor and outdoor living. Perfect for entertaining or enjoying peaceful moments overlooking the shimmering waters, this terrace is a rare find in downtown St. Petersburg. The ONE St. Petersburg building itself sets a new standard for luxury living, offering an impressive array of amenities. Residents enjoy concierge services, an activities director, and access to a formal social room, game room, and club room. The 40,000-square-foot amenities deck includes a 75-foot lap pool, cabanas, a spa, lush landscaping, fire pits, ample seating, and an outdoor kitchen ideal for hosting gatherings. Fitness enthusiasts will appreciate the state-of-the-art fitness center and yoga studio. Located in the vibrant heart of downtown St. Petersburg, ONE St. Petersburg offers unparalleled convenience. Enjoy easy access to over 40 restaurants, upscale shopping boutiques, museums, theaters, galleries, and the scenic waterfront. Whether you crave cultural experiences, fine dining, or leisurely walks along the bay, everything is just steps away from your doorstep. Experience the epitome of modern luxury living in downtown St. Petersburg with this stunning condo at ONE St. Petersburg. Schedule your private tour today and immerse yourself in the ultimate waterfront lifestyle.
Listing Information
Property Type: Residential, Condominium
Status: Active
Bedrooms: 2
Bathrooms: 3
Square Feet: 1,854 sq ft
Year Built: 2018
Garage: Yes
Stories: 1 Story
Construction: Block
Subdivision: One St. Petersburg
Foundation: Pillar/Post/Pier,Slab
County: Pinellas
Room Information
Main Floor
Office: 13x10
Primary Bedroom: 13x11
Primary Bathroom: 12x11
Kitchen: 9x10
Great Room: 29x21
Bathrooms
Full Baths: 3
Additonal Room Information
Laundry: Inside
Interior Features
Appliances: Range Hood, Electric Water Heater, Built-In Oven, Washer, Microwave, Range, Refrigerator, Cooktop, Dishwasher, Dryer
Flooring: Porcelain Tile
Additional Interior Features: Split Bedrooms, High Ceilings, Walk-In Closet(s), Solid Surface Counters, Kitchen/Family Room Combo, Living/Dining Room, Open Floorplan
Utilities
Water: Public
Sewer: Public Sewer
Other Utilities: Cable Available,Electricity Connected,Municipal Utilities
Cooling: Central Air
Heating: Central
Exterior / Lot Features
Attached Garage: Attached Garage
Garage Spaces: 2
Parking Description: Covered, Assigned, Off Street
Roof: Membrane
Pool: Association, Gunite, Lap, Community, In Ground
Lot View: Bay,City,Marina,Water
Additional Exterior/Lot Features: Outdoor Kitchen, Lighting, Outdoor Grill, Storage, Balcony, Balcony, Landscaped, Near Public Transit, City Lot, Buyer Approval Required
Out Buildings: Storage
Waterfront Details
Standard Water Body: TAMPA BAY
Community Features
Community Features: Fitness, Pool, Sidewalks
Security Features: Fire Sprinkler System, Lobby Secured, Secured Garage/Parking, Smoke Detector(s), Key Card Entry
Association Amenities: Pool, Cable TV, Elevator(s), Recreation Facilities, Storage, Security, Fitness Center, Spa/Hot Tub, Maintenance Grounds
HOA Dues Include: Pest Control, Reserve Fund, Maintenance Structure, Pool(s), Maintenance Grounds, Insurance, Association Management, Security, Sewer, Water, Recreation Facilities, Cable TV, Trash
Homeowners Association: Yes
HOA Dues: $4,676 / Quarterly
Driving Directions
Corner of First Street North and First Avenue North
Financial Considerations
Terms: Cash,Conventional
Tax/Property ID: 19-31-17-64138-000-2703
Tax Amount: 22478.41
Tax Year: 2025
A broker reciprocity listing courtesy: MICHAEL SAUNDERS & COMPANY
Based on information provided by Stellar MLS as distributed by the MLS GRID. Information from the Internet Data Exchange is provided exclusively for consumers’ personal, non-commercial use, and such information may not be used for any purpose other than to identify prospective properties consumers may be interested in purchasing. This data is deemed reliable but is not guaranteed to be accurate by Edina Realty, Inc., or by the MLS. Edina Realty, Inc., is not a multiple listing service (MLS), nor does it offer MLS access.
Copyright 2026 Stellar MLS as distributed by the MLS GRID. All Rights Reserved.
Payment Calculator
Interest rate and annual percentage rate (APR) are based on current market conditions, are for informational purposes only, are subject to change without notice and may be subject to pricing add-ons related to property type, loan amount, loan-to-value, credit score and other variables. Estimated closing costs used in the APR calculation are assumed to be paid by the borrower at closing. If the closing costs are financed, the loan, APR and payment amounts will be higher. If the down payment is less than 20%, mortgage insurance may be required and could increase the monthly payment and APR. Contact us for details. Additional loan programs may be available. Accuracy is not guaranteed, and all products may not be available in all borrower's geographical areas and are based on their individual situation. This is not a credit decision or a commitment to lend.
Sales History & Tax Summary for 100 1st Avenue N #2703
Sales History
| Date | Price | |
|---|---|---|
| Currently not available. | ||
Tax Summary
| Tax Year | Estimated Market Value | Total Tax |
|---|---|---|
| Currently not available. | ||
Data powered by ATTOM Data Solutions. Copyright© 2026. Information deemed reliable but not guaranteed.
Schools
Schools nearby 100 1st Avenue N #2703
| Schools in attendance boundaries | Grades | Distance | Rating |
|---|---|---|---|
| Loading... | |||
| Schools nearby | Grades | Distance | Rating |
|---|---|---|---|
| Loading... | |||
Data powered by ATTOM Data Solutions. Copyright© 2026. Information deemed reliable but not guaranteed.
The schools shown represent both the assigned schools and schools by distance based on local school and district attendance boundaries. Attendance boundaries change based on various factors and proximity does not guarantee enrollment eligibility. Please consult your real estate agent and/or the school district to confirm the schools this property is zoned to attend. Information is deemed reliable but not guaranteed.
SchoolDigger ® Rating
The SchoolDigger rating system is a 1-5 scale with 5 as the highest rating. SchoolDigger ranks schools based on test scores supplied by each state's Department of Education. They calculate an average standard score by normalizing and averaging each school's test scores across all tests and grades.
Coming soon properties will soon be on the market, but are not yet available for showings.