$1,949,000
1000 Boulevard Of The Arts #1708 Sarasota, FL 34236
For Sale MLS# A4682064
2 beds 3 baths 1,767 sq ft Condo
Details for 1000 Boulevard Of The Arts #1708
MLS# A4682064
Description for 1000 Boulevard Of The Arts #1708, Sarasota, FL, 34236
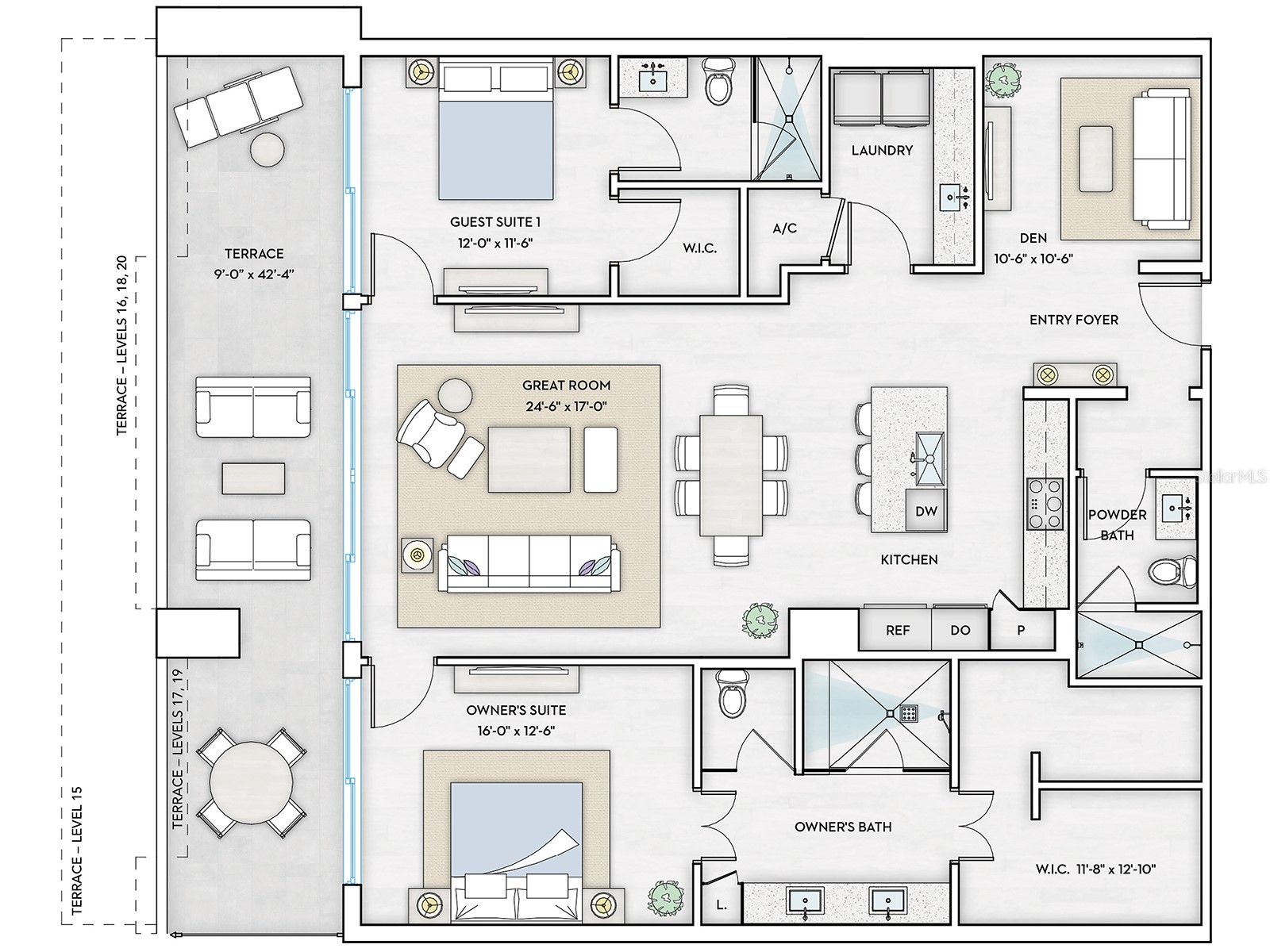
Pre-Construction. To be built. Residence 1708 presents elevated harbor views from the 17th floor, overlooking Quay Harbor, the Ringling Bridge and coastal horizons beyond. As part of the Harbor residence collection, this home captures the energy of the marina and the dramatic light of Sarasota sunsets. The interior features a contemporary open layout with floor-to-ceiling glass, a refined kitchen with European cabinetry and premium appliances, and a private terrace oriented toward the harbor. The primary suite offers a spa-like bath and walk-in closet, while additional bedrooms and a den provide flexible living options. Within 1000 Boulevard of the Arts, residents enjoy a vibrant waterfront lifestyle with access to resort-style amenities, concierge services, and immediate proximity to dining, arts and marina experiences.
Listing Information
Property Type: Residential, Condominium
Status: Active
Bedrooms: 2
Bathrooms: 3
Square Feet: 1,767 sq ft
Year Built: 2026
Garage: Yes
Stories: 1 Story
Construction: Concrete
Construction Display: New Construction
Subdivision: 1000 Boulevard Of The Arts
Builder: Kolter Urban - Construction Manager
Foundation: Other
County: Sarasota
School Information
Elementary: Alta Vista Elementary
Middle: Booker Middle
High: Booker High
Room Information
Main Floor
Porch: 42.4x9
Den: 10.6x10.6
Bedroom 3: 15.2x12
Bedroom 2: 11.6x12
Primary Bedroom: 12.6x16
Kitchen: 10.1x12.9
Great Room: 17x26.6
Bathrooms
Full Baths: 3
Additonal Room Information
Laundry: Laundry Room
Interior Features
Appliances: Ice Maker, Range Hood, Built-In Oven, Microwave, Refrigerator, Washer, Cooktop, Dishwasher, Disposal, Dryer
Flooring: Carpet,Porcelain Tile
Additional Interior Features: Walk-In Closet(s), Stone Counters, High Ceilings, Open Floorplan
Utilities
Water: Public
Sewer: Public Sewer
Other Utilities: Cable Available,Electricity Available,High Speed Internet Available,Municipal Utilities,Phone Available,Sewer Available,Water Available
Cooling: Central Air
Heating: Electric, Central
Exterior / Lot Features
Garage Spaces: 1
Parking Description: Valet, Circular Driveway, Covered, Assigned
Roof: Other
Pool: Heated, Community
Lot View: Bay,Park/Greenbelt,Marina,Water
Additional Exterior/Lot Features: Balcony, Balcony, Landscaped, Near Public Transit, City Lot, Buyer Approval Required
Waterfront Details
Water Front Features: Bay Access
Community Features
Community Features: Fitness, Dog Park, Recreation Area, Pool, Sidewalks
HOA Dues Include: Water, Trash, Association Management, Recreation Facilities, Security, Sewer, Insurance, Maintenance Grounds, Maintenance Structure, Reserve Fund, Pool(s)
Driving Directions
Take Fruitville Road to Main Street and turn right onto Central Avenue. Our Sales Gallery is located at 50 Central Avenue, Suite 110.
Financial Considerations
Terms: Cash
Tax/Property ID: XXXXXXXXXX1708
Tax Year: 2025
A broker reciprocity listing courtesy: PREMIER SOTHEBY'S INTERNATIONAL REALTY
Based on information provided by Stellar MLS as distributed by the MLS GRID. Information from the Internet Data Exchange is provided exclusively for consumers’ personal, non-commercial use, and such information may not be used for any purpose other than to identify prospective properties consumers may be interested in purchasing. This data is deemed reliable but is not guaranteed to be accurate by Edina Realty, Inc., or by the MLS. Edina Realty, Inc., is not a multiple listing service (MLS), nor does it offer MLS access.
Copyright 2026 Stellar MLS as distributed by the MLS GRID. All Rights Reserved.
Payment Calculator
Interest rate and annual percentage rate (APR) are based on current market conditions, are for informational purposes only, are subject to change without notice and may be subject to pricing add-ons related to property type, loan amount, loan-to-value, credit score and other variables. Estimated closing costs used in the APR calculation are assumed to be paid by the borrower at closing. If the closing costs are financed, the loan, APR and payment amounts will be higher. If the down payment is less than 20%, mortgage insurance may be required and could increase the monthly payment and APR. Contact us for details. Additional loan programs may be available. Accuracy is not guaranteed, and all products may not be available in all borrower's geographical areas and are based on their individual situation. This is not a credit decision or a commitment to lend.
Sales History & Tax Summary for 1000 Boulevard Of The Arts #1708
Sales History
| Date | Price | |
|---|---|---|
| Currently not available. | ||
Tax Summary
| Tax Year | Estimated Market Value | Total Tax |
|---|---|---|
| Currently not available. | ||
Data powered by ATTOM Data Solutions. Copyright© 2026. Information deemed reliable but not guaranteed.
Schools
Schools nearby 1000 Boulevard Of The Arts #1708
| Schools in attendance boundaries | Grades | Distance | Rating |
|---|---|---|---|
| Loading... | |||
| Schools nearby | Grades | Distance | Rating |
|---|---|---|---|
| Loading... | |||
Data powered by ATTOM Data Solutions. Copyright© 2026. Information deemed reliable but not guaranteed.
The schools shown represent both the assigned schools and schools by distance based on local school and district attendance boundaries. Attendance boundaries change based on various factors and proximity does not guarantee enrollment eligibility. Please consult your real estate agent and/or the school district to confirm the schools this property is zoned to attend. Information is deemed reliable but not guaranteed.
SchoolDigger ® Rating
The SchoolDigger rating system is a 1-5 scale with 5 as the highest rating. SchoolDigger ranks schools based on test scores supplied by each state's Department of Education. They calculate an average standard score by normalizing and averaging each school's test scores across all tests and grades.
Coming soon properties will soon be on the market, but are not yet available for showings.