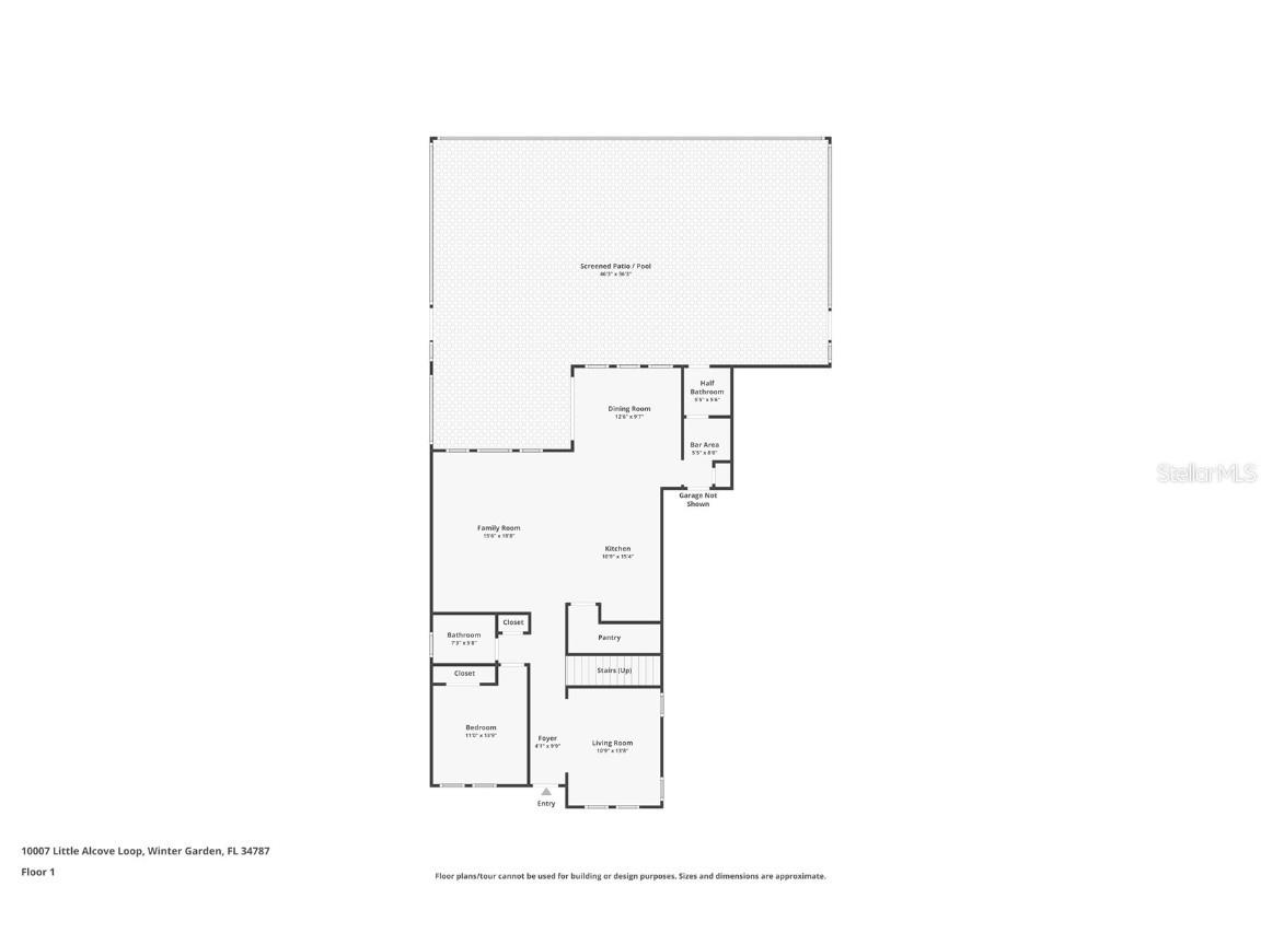
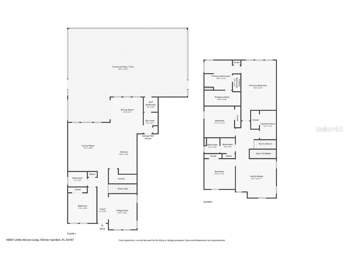
10007 Little Alcove Loop Winter Garden, FL 34787
For Sale MLS# S5132434
4 beds 4 baths 2,921 sq ft Single Family
Details for 10007 Little Alcove Loop
MLS# S5132434
Description for 10007 Little Alcove Loop, Winter Garden, FL, 34787
Stunning Emerald serie house, Selden model built in 2018 well maintained, featuring 4 bedrooms, 3.5 bathrooms, and approximately 2,920 sq ft of living space. Situated on a premium corner lot of about 10,585 sq ft, this home offers a 3-car tandem garage, spacious backyard, private wooded views, and a screen-enclosed private pool—perfect for year-round Florida living. The open-concept design includes a formal dining room, elegant foyer with wrought-iron staircase, and a gourmet kitchen with a large island, 42” cabinets with crown molding, granite countertops, stainless steel appliances, and a convenient drop zone from the garage. The owner’s suite boasts a tray ceiling, a spa-like en-suite bathroom with dual sinks, a garden tub, and a spacious walk-in closet. Additional features include a durable concrete tile roof, dual A/C units, and numerous upgrades: exterior lighting, sealed paver driveway and porch, landscape lighting, decorative stonework, epoxy-finished garage floor, and professional landscaping. Lawn care is included with HOA fee. Located in the highly sought-after Waterleigh community in Winter Garden, residents enjoy resort-style amenities: two community clubhouses, 4 resort-style pools, 2 fitness center, beach volleyball, 2 tennis courts, mini-golf, community garden, dog park, fishing pier, and scenic walking/biking trails. The neighborhood is beautifully landscaped with lakes, green spaces, and planned community events. Conveniently located just minutes from Historic Downtown Winter Garden, Winter Garden Village, and easy access to SR-429 for a quick commute to Orlando and Walt Disney World. Zoned for top-rated schools: Atwater bay Elementary, Water Spring Middle, and Horizon High School.
Listing Information
Property Type: Residential, Single Family Residence
Status: Active
Bedrooms: 4
Bathrooms: 4
Lot Size: 0.24 Acres
Square Feet: 2,921 sq ft
Year Built: 2018
Garage: Yes
Stories: 2 Story
Construction: Block,Concrete,Stucco
Construction Display: New Construction
Subdivision: Waterleigh Ph 2b
Foundation: Slab
County: Orange
Construction Status: New Construction
School Information
Elementary: Water Spring Elementary
Middle: Water Spring Middle
High: Horizon High School
Room Information
Main Floor
Bedroom 4:
Great Room: 19x13
Kitchen: 15x12
Upper Floor
Bedroom 3:
Bedroom 2:
Primary Bedroom: 19x14
Bathrooms
Full Baths: 3
1/2 Baths: 1
Additonal Room Information
Laundry: Inside, Laundry Room, Upper Level
Interior Features
Appliances: Convection Oven, Built-In Oven, Microwave, Refrigerator, Washer, Cooktop, Dishwasher, Disposal, Dryer
Flooring: Carpet,Ceramic Tile
Doors/Windows: Blinds, Window Treatments
Additional Interior Features: Walk-In Closet(s), Window Treatments, Ceiling Fan(s), Built-in Features, Separate/Formal Dining Room, Solid Surface Counters, Wood Cabinets, Kitchen/Family Room Combo, Open Floorplan
Utilities
Water: Public
Sewer: Public Sewer
Other Utilities: Cable Available,Cable Connected,Electricity Connected,High Speed Internet Available
Cooling: Ceiling Fan(s), Central Air
Heating: Electric, Central
Exterior / Lot Features
Attached Garage: Attached Garage
Garage Spaces: 3
Parking Description: Tandem
Roof: Tile
Pool: Heated, Association, Screen Enclosure, Community, In Ground
Lot View: Park/Greenbelt
Additional Exterior/Lot Features: Sprinkler/Irrigation, Front Porch, Patio, Covered, Screened, Corner Lot, Landscaped, Oversized Lot
Community Features
Community Features: Park, Fishing, Fitness, Pool, Tennis Court(s), Playground, Waterfront, Street Lights, Sidewalks
Security Features: Smoke Detector(s)
Association Amenities: Pool, Playground, Clubhouse, Fitness Center, Park
HOA Dues Include: Maintenance Grounds, Pool(s), Recreation Facilities
Homeowners Association: Yes
HOA Dues: $250 / Monthly
Driving Directions
From North Get on Florida's Tpke in Orange County Follow Florida's Tpke and FL-429 S to Schofield Rd in Horizon West. Take exit 13 from FL-429 S Take Avalon Rd to Little Alcove Lp 10007 Little Alcove Lp Winter Garden, FL 34787
Financial Considerations
Terms: Cash,Conventional,FHA,VA Loan
Tax/Property ID: 07-24-27-7502-02-660
Tax Amount: 6381.42
Tax Year: 2024
A broker reciprocity listing courtesy: MBT REALTY LLC
Based on information provided by Stellar MLS as distributed by the MLS GRID. Information from the Internet Data Exchange is provided exclusively for consumers’ personal, non-commercial use, and such information may not be used for any purpose other than to identify prospective properties consumers may be interested in purchasing. This data is deemed reliable but is not guaranteed to be accurate by Edina Realty, Inc., or by the MLS. Edina Realty, Inc., is not a multiple listing service (MLS), nor does it offer MLS access.
Copyright 2026 Stellar MLS as distributed by the MLS GRID. All Rights Reserved.
Payment Calculator
Interest rate and annual percentage rate (APR) are based on current market conditions, are for informational purposes only, are subject to change without notice and may be subject to pricing add-ons related to property type, loan amount, loan-to-value, credit score and other variables. Estimated closing costs used in the APR calculation are assumed to be paid by the borrower at closing. If the closing costs are financed, the loan, APR and payment amounts will be higher. If the down payment is less than 20%, mortgage insurance may be required and could increase the monthly payment and APR. Contact us for details. Additional loan programs may be available. Accuracy is not guaranteed, and all products may not be available in all borrower's geographical areas and are based on their individual situation. This is not a credit decision or a commitment to lend.
Sales History & Tax Summary for 10007 Little Alcove Loop
Sales History
| Date | Price | |
|---|---|---|
| Currently not available. | ||
Tax Summary
| Tax Year | Estimated Market Value | Total Tax |
|---|---|---|
| Currently not available. | ||
Data powered by ATTOM Data Solutions. Copyright© 2026. Information deemed reliable but not guaranteed.
Schools
Schools nearby 10007 Little Alcove Loop
| Schools in attendance boundaries | Grades | Distance | Rating |
|---|---|---|---|
| Loading... | |||
| Schools nearby | Grades | Distance | Rating |
|---|---|---|---|
| Loading... | |||
Data powered by ATTOM Data Solutions. Copyright© 2026. Information deemed reliable but not guaranteed.
The schools shown represent both the assigned schools and schools by distance based on local school and district attendance boundaries. Attendance boundaries change based on various factors and proximity does not guarantee enrollment eligibility. Please consult your real estate agent and/or the school district to confirm the schools this property is zoned to attend. Information is deemed reliable but not guaranteed.
SchoolDigger ® Rating
The SchoolDigger rating system is a 1-5 scale with 5 as the highest rating. SchoolDigger ranks schools based on test scores supplied by each state's Department of Education. They calculate an average standard score by normalizing and averaging each school's test scores across all tests and grades.
Coming soon properties will soon be on the market, but are not yet available for showings.