1002 Pass A Grille Way Saint Pete Beach, FL 33706 - PASS-A-GRILLE CHANNEL
For Sale MLS# TB8420808
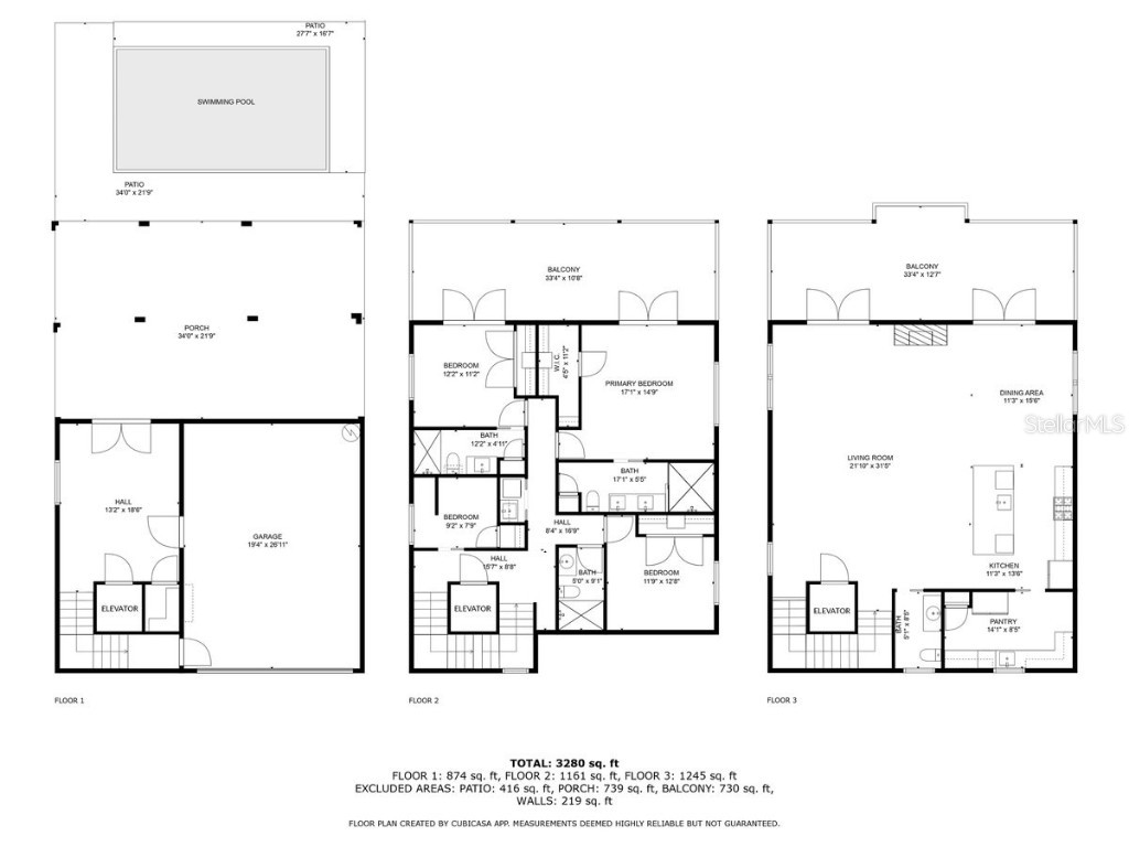
4 beds 4 baths 2,964 sq ft Single Family
Details for 1002 Pass A Grille Way
MLS# TB8420808
Description for 1002 Pass A Grille Way, Saint Pete Beach, FL, 33706 - PASS-A-GRILLE CHANNEL
Welcome Home! WHY WAIT Years To Design, Permit, and Build When You Can Step Right Into Water View Perfection? 1002 Pass A Grille Way sits in the most coveted stretch of St Pete Beach: Pass-A-Grille. Dreamers wish upon the stars for this home’s location. A community where neighbors still gather on 8th Ave, stroll to curated shops, and share cocktails at local favorites just blocks away.(Be sure to check out the virtual tour video of the property) This 2022 raised beauty has it all—4 bedrooms, 3.5 baths, an elevator, and nearly 3,000 sq. ft. of living space (over 5,000 including patios). Toes in the sand, a dip in the Gulf—your day has begun! In less than five minutes you’re back at your private outdoor shower, rinsing off, and heading upstairs to the 3rd floor where the magic happens. This is the heart of the home and the lifestyle that you’ve been craving! The wide-open living space leads to French doors showcasing a front row view of daily waterfront theater: dolphins at play, sailboats drifting by, rainbows arching across the bay, and sunsets that glow long after the last sip of your cocktail. Your 'bay' view surpasses just an intracoastal look, this expansive view of the Pass-A-Grille Channel is at the mouth of the Boca Ciega Bay connecting it to the Gulf of Mexico. Anchored by a custom marble gas fireplace, the great room spills into a chef’s kitchen that absolutely steals the spotlight—hello French La Cornue gas range, custom cabinetry, sleek granite island, and a show-stopping Portuguese tile backsplash. Through an arched entry, the “secret second kitchen” (yes, oversized pantry but so much more) gives you a second fridge, second dishwasher, another sink, granite counters, and gadget-ready shelving. Dinner parties, cookie marathons, cocktail prep—this space makes you look like a hosting pro. Downstairs, the primary suite is a retreat you’ll never want to leave - French doors open to a private balcony overlooking the pool, custom closets, ensuite bathroom with dual vanities, and oversized shower (big enough for you, your chaise lounge and your daydreams). This floor also offers three additional bedrooms each with their own personality, custom finishes, and storage galore. Two additional bathrooms are on this floor (one of them ensuite), and a conveniently located laundry room to keep life effortless. Stairs or elevator down to the garden level, step outside, and the vacation vibe is real! A sparkling pool with a sun shelf, new pool equipment and lush landscaping on irrigation—all wrapped in fresh vinyl fencing— it’s your own tropical hideaway. The details that make it worry-free? A two-car hurricane rated garage door, hurricane-impact windows and doors, modern day building materials, specific designer tile and lighting, a whole-house water filtration system, and a Generac gas generator that keeps the party (and the AC) going even if the power does not. This home is more than move-in ready— it’s an invitation to step into the waterfront lifestyle right now. Bring the champagne. You Are Home...
Listing Information
Property Type: Residential, Single Family Residence
Status: Active
Bedrooms: 4
Bathrooms: 4
Lot Size: 0.10 Acres
Square Feet: 2,964 sq ft
Year Built: 2022
Garage: Yes
Stories: 3 Story
Construction: HardiPlank Type
Construction Display: New Construction
Subdivision: Morey Beach
Foundation: Pillar/Post/Pier
County: Pinellas
Construction Status: New Construction
School Information
Elementary: Azalea Elementary-Pn
Middle: Bay Point Middle-Pn
High: Boca Ciega High-Pn
Room Information
Upper Floor
Porch: 12.7x33.4
Primary Bathroom:
Primary Bedroom: 15x17
Living Room: 31x21
Dining Room: 15x11
Kitchen: 21x25
Bathrooms
Full Baths: 3
1/2 Baths: 1
Additonal Room Information
Laundry: Washer Hookup, Inside, Laundry Closet, Gas Dryer Hookup
Interior Features
Appliances: Water Purifier, Tankless Water Heater, Gas Water Heater, Range Hood, Washer, Microwave, Range, Refrigerator, Cooktop, Dishwasher, Disposal, Dryer
Flooring: Luxury Vinyl,Marble,Porcelain Tile
Doors/Windows: Storm Window(s)
Fireplaces: Stone, Living Room, Gas
Additional Interior Features: Eat-In Kitchen, Ceiling Fan(s), Elevator, Built-in Features, Attic, Walk-In Closet(s), Living/Dining Room, Open Floorplan, Kitchen/Family Room Combo, Wood Cabinets, Solid Surface Counters, Stone Counters
Utilities
Water: Public
Sewer: Public Sewer
Other Utilities: Cable Connected,Electricity Connected,Natural Gas Connected,Sewer Connected,Water Connected
Cooling: Zoned, Attic Fan, Ceiling Fan(s), Central Air, Ductless
Heating: Gas, Central, Zoned
Exterior / Lot Features
Attached Garage: Attached Garage
Garage Spaces: 2
Parking Description: Alley Access, Golf Cart Garage, driveway, on street, Off Street, Garage, Garage Door Opener, Covered, Garage Faces Rear
Roof: Shingle
Pool: Pool Sweep, In Ground, Salt Water, Gunite
Lot View: Bay,Intercoastal,Pool,Water
Lot Dimensions: 42x101
Fencing: Vinyl
Additional Exterior/Lot Features: Rain Gutters, Outdoor Shower, French Patio Doors, Sprinkler/Irrigation, Lighting, Balcony, Balcony, Covered, Deck, Patio, Porch, Front Porch, Landscaped, Flood Zone, Historic District
Waterfront Details
Standard Water Body: PASS-A-GRILLE CHANNEL
Water Front Features: Bay Access
Community Features
Community Features: Fishing, Golf Carts OK, Water Access, Restaurant, Dog Park, Park, Street Lights, Boat Facilities, Tennis Court(s), Sidewalks
Security Features: Fire Alarm, Smoke Detector(s)
Driving Directions
Pinellas Bayway west and turn left at the Don CeSar (Pass A Grille Way), Continue Forward at the 4-way stop to the address, property on your left, parking on the street is available.
Financial Considerations
Terms: Cash,Conventional
Tax/Property ID: 19-32-16-58932-004-0040
Tax Amount: 28014.44
Tax Year: 2024
A broker reciprocity listing courtesy: COMPASS FLORIDA LLC
Based on information provided by Stellar MLS as distributed by the MLS GRID. Information from the Internet Data Exchange is provided exclusively for consumers’ personal, non-commercial use, and such information may not be used for any purpose other than to identify prospective properties consumers may be interested in purchasing. This data is deemed reliable but is not guaranteed to be accurate by Edina Realty, Inc., or by the MLS. Edina Realty, Inc., is not a multiple listing service (MLS), nor does it offer MLS access.
Copyright 2025 Stellar MLS as distributed by the MLS GRID. All Rights Reserved.
Payment Calculator
Interest rate and annual percentage rate (APR) are based on current market conditions, are for informational purposes only, are subject to change without notice and may be subject to pricing add-ons related to property type, loan amount, loan-to-value, credit score and other variables. Estimated closing costs used in the APR calculation are assumed to be paid by the borrower at closing. If the closing costs are financed, the loan, APR and payment amounts will be higher. If the down payment is less than 20%, mortgage insurance may be required and could increase the monthly payment and APR. Contact us for details. Additional loan programs may be available. Accuracy is not guaranteed, and all products may not be available in all borrower's geographical areas and are based on their individual situation. This is not a credit decision or a commitment to lend.
Sales History & Tax Summary for 1002 Pass A Grille Way
Sales History
| Date | Price | Change |
|---|---|---|
| Currently not available. | ||
Tax Summary
| Tax Year | Estimated Market Value | Total Tax |
|---|---|---|
| Currently not available. | ||
Data powered by ATTOM Data Solutions. Copyright© 2025. Information deemed reliable but not guaranteed.
Schools
Schools nearby 1002 Pass A Grille Way
| Schools in attendance boundaries | Grades | Distance | Rating |
|---|---|---|---|
| Loading... | |||
| Schools nearby | Grades | Distance | Rating |
|---|---|---|---|
| Loading... | |||
Data powered by ATTOM Data Solutions. Copyright© 2025. Information deemed reliable but not guaranteed.
The schools shown represent both the assigned schools and schools by distance based on local school and district attendance boundaries. Attendance boundaries change based on various factors and proximity does not guarantee enrollment eligibility. Please consult your real estate agent and/or the school district to confirm the schools this property is zoned to attend. Information is deemed reliable but not guaranteed.
SchoolDigger ® Rating
The SchoolDigger rating system is a 1-5 scale with 5 as the highest rating. SchoolDigger ranks schools based on test scores supplied by each state's Department of Education. They calculate an average standard score by normalizing and averaging each school's test scores across all tests and grades.
Coming soon properties will soon be on the market, but are not yet available for showings.