$400,000
1004 College Avenue Red Wing, MN 55066
Active Contingent MLS# 6822648
3 beds 3 baths 2,072 sq ft Single Family
Details for 1004 College Avenue
MLS# 6822648
Description for 1004 College Avenue, Red Wing, MN, 55066
Welcome to 1004 College Avenue — a home packed with charm & character! Sitting on a big corner lot in a quiet neighborhood just minutes from downtown, this one has so much to love. You’ll notice the beautiful woodwork, crown molding, and stained-glass window the moment you walk in. There’s space for everyone with both a living room and family room (with a cozy electric fireplace!), a formal dining room, and an updated kitchen with stainless steel appliances. Upstairs, the primary suite feels like a retreat with tall ceilings, a fireplace, walk-in closets, and a spa-like bathroom with double sinks, a walk-in shower, soaking tub, and laundry right in the bathroom (so convenient!). Two more bedrooms and another full bath finish off the upper level. Outside, you’ll find not one but two porches plus a deck — perfect for relaxing or entertaining. The oversized garage has a finished upper level currently used as a home gym, but it could be anything you imagine. With updates like a tankless water heater and reverse osmosis drinking system, this home is as functional as it is full of personality!
Listing Information
Property Type: Residential, Single Family
Status: Active Contingent-Sale of Another Property
Bedrooms: 3
Bathrooms: 3
Lot Size: 0.20 Acres
Square Feet: 2,072 sq ft
Year Built: 1907
Foundation: 1,036 sq ft
Garage: Yes
Stories: 2 Stories
Subdivision: Institute Add
County: Goodhue
Days On Market: 93
Construction Status: Previously Owned
School Information
District: 256 - Red Wing
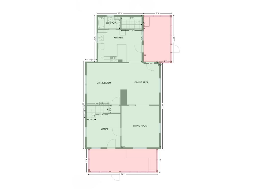
Room Information
Main Floor
Bathroom: 8x4
Dining Room: 13x14
Family Room: 12x14
Foyer: 12x14
Kitchen: 15x11
Living Room: 13x14
Upper Floor
Bathroom: 8x9
Bedroom 1: 17x18
Bedroom 2: 16x11
Bedroom 3: 11x14
Primary Bath: 10x14
Bathrooms
Full Baths: 2
3/4 Baths: 1
Additonal Room Information
Family: Main Level
Dining: Separate/Formal Dining Room
Laundry: Laundry Closet, Upper Level
Bath Description: Full Primary,Main Floor 3/4 Bath,Upper Level Full Bath
Interior Features
Square Footage above: 2,072 sq ft
Appliances: Water Softener - Owned, Tankless Water Heater, Stainless Steel Appliances, Range, Refrigerator, Washer, Microwave, Dishwasher, Dryer
Basement: Unfinished, Storage Space
Fireplaces: 2, Electric, Family Room, Gas Burning, Brick, Primary Bedroom
Additional Interior Features: Ceiling Fan(s), Exercise Room, Natural Woodwork, Hardwood Floors, Kitchen Window, Washer/Dryer Hookup, Walk-In Closet, 3 BR on One Level, Primary Bdr Suite
Utilities
Water: City Water/Connected
Sewer: City Sewer/Connected
Cooling: Central
Heating: Natural Gas, Fireplace, Forced Air
Exterior / Lot Features
Garage Spaces: 2
Parking Description: Detached Garage, Garage Dimensions - 30x24, Garage Sq Ft - 720.0
Exterior: Vinyl
Roof: Age 8 Years or Less, Asphalt Shingles
Lot Dimensions: 140x60
Zoning: Residential-Single Family
Additional Exterior/Lot Features: Porch, Deck, Corner Lot, Tree Coverage - Light, Road Frontage - City
Out Buildings: Studio, Other
Driving Directions
From Main St. Take West Avenue, Right onto College Avenue, house is on your Right.
Financial Considerations
Tax/Property ID: 553001270
Tax Amount: 4460
Tax Year: 2025
HomeStead Description: Homesteaded
A broker reciprocity listing courtesy: Red Wing Homes For Sale
The data relating to real estate for sale on this web site comes in part from the Broker Reciprocity℠ Program of the Regional Multiple Listing Service of Minnesota, Inc. Real estate listings held by brokerage firms other than Edina Realty, Inc. are marked with the Broker Reciprocity℠ logo or the Broker Reciprocity℠ thumbnail and detailed information about them includes the name of the listing brokers. Edina Realty, Inc. is not a Multiple Listing Service (MLS), nor does it offer MLS access. This website is a service of Edina Realty, Inc., a broker Participant of the Regional Multiple Listing Service of Minnesota, Inc. IDX information is provided exclusively for consumers personal, non-commercial use and may not be used for any purpose other than to identify prospective properties consumers may be interested in purchasing. Open House information is subject to change without notice. Information deemed reliable but not guaranteed.
Copyright 2026 Regional Multiple Listing Service of Minnesota, Inc. All Rights Reserved.
Payment Calculator
Interest rate and annual percentage rate (APR) are based on current market conditions, are for informational purposes only, are subject to change without notice and may be subject to pricing add-ons related to property type, loan amount, loan-to-value, credit score and other variables. Estimated closing costs used in the APR calculation are assumed to be paid by the borrower at closing. If the closing costs are financed, the loan, APR and payment amounts will be higher. If the down payment is less than 20%, mortgage insurance may be required and could increase the monthly payment and APR. Contact us for details. Additional loan programs may be available. Accuracy is not guaranteed, and all products may not be available in all borrower's geographical areas and are based on their individual situation. This is not a credit decision or a commitment to lend.
Sales History & Tax Summary for 1004 College Avenue
Sales History
| Date | Price | |
|---|---|---|
| Currently not available. | ||
Tax Summary
| Tax Year | Estimated Market Value | Total Tax |
|---|---|---|
| Currently not available. | ||
Data powered by ATTOM Data Solutions. Copyright© 2026. Information deemed reliable but not guaranteed.
Schools
Schools nearby 1004 College Avenue
| Schools in attendance boundaries | Grades | Distance | Rating |
|---|---|---|---|
| Loading... | |||
| Schools nearby | Grades | Distance | Rating |
|---|---|---|---|
| Loading... | |||
Data powered by ATTOM Data Solutions. Copyright© 2026. Information deemed reliable but not guaranteed.
The schools shown represent both the assigned schools and schools by distance based on local school and district attendance boundaries. Attendance boundaries change based on various factors and proximity does not guarantee enrollment eligibility. Please consult your real estate agent and/or the school district to confirm the schools this property is zoned to attend. Information is deemed reliable but not guaranteed.
SchoolDigger ® Rating
The SchoolDigger rating system is a 1-5 scale with 5 as the highest rating. SchoolDigger ranks schools based on test scores supplied by each state's Department of Education. They calculate an average standard score by normalizing and averaging each school's test scores across all tests and grades.
Coming soon properties will soon be on the market, but are not yet available for showings.